Milborne St Andrew, Blandford Forum, Dorset

Guide Price
£335,000

3 Bedroom End of Terrace House for sale in Blandford Forum

1 3 1

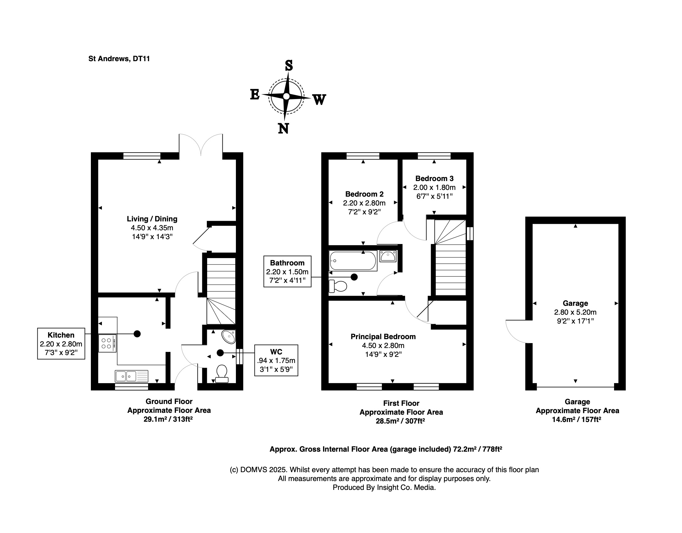
This modern and beautifully finished home offers a stylish and comfortable living space in a sought-after location. The property is arranged over two floors, with the GROUND FLOOR featuring a bright and welcoming SITTING / DINING ROOM. This generous space benefits from a large rear-facing window and French doors that open directly to the garden, allowing an abundance of natural light to flood the room and creating an inviting atmosphere. The KITCHEN, situated at the front of the house, is fitted with smart, contemporary units and quality work surfaces, with space for the usual appliances. Completing the ground floor is a practical W.C.

Upstairs, the PRINCIPAL BEDROOM is a spacious double positioned at the front of the property. BEDROOM TWO offers good proportions and would suit either a single bed or small double, while BEDROOM THREE is ideal as a child's room, guest space or home office. The BATHROOM is well appointed with a modern suite including a bath with shower over, wash hand basin and W.C.

The home is tastefully decorated throughout with a fresh, elegant finish that enhances the sense of light and space in every room. Careful attention to detail and a harmonious colour palette make this a property that feels warm, welcoming and ready to enjoy from the moment you step inside.

Outside
The property enjoys an ENCLOSED REAR GARDEN, laid mainly to lawn, offering a private and secure outdoor space perfect for relaxing, entertaining or for children to play. To the side, there is a driveway providing off-road parking, along with a separate single GARAGE for additional storage or further parking options. This combination of a well-proportioned garden, practical parking and useful outbuilding makes the outside space as appealing as the interior.

Location
This charming property is nestled within a quiet no-through road within the village of Milborne St Andrew. The village itself is ideally located within close proximity of the main route between the County town of Dorchester, with its mainline railway station (London Waterloo), famous weekly market and reputable schools, and Blandford Forum with its boutique-style shops, tea rooms and riverside walks.

Directions
Use what3words.com to navigate to the exact spot. Search using: generated.normal.strange

Stylish, modern home in a sought-after location
Bright sitting/dining room with French doors to the garden
Contemporary kitchen with quality finishes
Three well-proportioned bedrooms and modern bathroom
Enclosed rear garden, driveway and garage

ROOM MEASUREMENTS Please refer to floor plan.

SERVICES Mains drainage, electricity & gas. Gas central heating.

LOCAL AUTHORITY Dorset Council. Tax band C.

BROADBAND Standard download 21 Mbps, upload 1 Mbps. Superfast download 299 Mbps, upload 49 Mbps. Please note all available speeds quoted are 'up to'.

MOBILE PHONE COVERAGE For further information please go to Ofcom website.

TENURE Freehold.

LETTINGS Should you be interested in acquiring a Buy-to-Let investment, and would appreciate advice regarding the current rental market, possible yields, legislation for landlords and how to make a property safe and compliant for tenants, then find out about our Investor Club from our expert, Alexandra Holland. Alexandra will be pleased to provide you with additional, personalised support; just call her on the branch telephone number to take the next step.

IMPORTANT NOTICE DOMVS and its Clients give notice that: they have no authority to make or give any representations or warranties in relation to the property. These particulars do not form part of any offer or contract and must not be relied upon as statements or representations of fact. Any areas, measurements or distances are approximate. The text, photographs (including any AI photography) and plans are for guidance only and are not necessarily comprehensive. It should not be assumed that the property has all necessary Planning, Building Regulation or other consents, and DOMVS has not tested any services, equipment or facilities. Purchasers must satisfy themselves by inspection or otherwise. DOMVS is a member of The Property Ombudsman scheme and subscribes to The Property Ombudsman Code of Practice.

Property Ref: NDO250040

Share:

Similar Properties

Stratton, Dorchester, Dorset

3 Bedroom Terraced House | Guide Price £330,000

Well-presented, three-bedroom, terraced property in the highly sought-after village of Stratton, with a garage and delig...

Milton Abbas, Dorset

Detached House | £330,000

An expansive Grade II Listed barn with auxiliary haylofts, access to water and 19 acres of certified organic arable land...

Bradford Peverell, Dorchester, Dorset

2 Bedroom End of Terrace House | Guide Price £325,000

Owners say, 'This has been a much-loved family home for over 30 years, filled with happy memories and character at every...

Dewlish, Dorset

3 Bedroom Semi-Detached House | £345,000

Owner says, 'We've loved the character of the cottage and the peaceful setting. The roof terrace has been a favourite sp...

Pimperne, Blandford Forum

3 Bedroom Semi-Detached Bungalow | Guide Price £345,000

Spacious three-bedroom bungalow in a sought-after village near Blandford and Salisbury. With bay-fronted sitting room, g...

Cerne Abbas, Dorchester, Dorset

3 Bedroom Penthouse | Guide Price £350,000

Owners say, "We have truly appreciated all that Cerne Abbas offers, particularly the ease of having wonderful countrysid...

DOMVS Mid Dorset (Dorchester)

Dorchester, Dorset, DT1 1UW

01305 757300

How much is your home worth?

Use our short form to request a valuation of your property.

Request a Valuation

Mortgage Calculator

Amount Borrowed: £
Total Amount Repayable: £
Total Monthly Payment: £
©2026 The Guild of Property Professionals. All rights reserved. Terms and Conditions | Privacy Policy | Cookie Policy | Complaints Policy | Members Login
The Guild of Property Professionals Trading Address: 121 Park Lane, London W1K 7AG. GPEA Limited. Registered in England & Wales.  Company No: 02819824.  Registered Office Address: 2 St. Stephen's Court, St. Stephen's Road, Bournemouth, Dorset, England, BH2 6LA.  VAT Registration No: 576 8795 61
Book a Property Valuation Update Cookies Preferences