Barnet Lane, Elstree, Borehamwood, Hertfordshire, WD6

Offers in excess of
£2,000,000
SSTC
This property listing is now SSTC

6 Bedroom Detached House for sale in Borehamwood

3 6 6

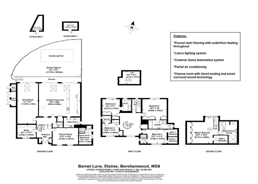
Set along the prestigious Barnet Lane in Elstree, Hither Cottage is an exceptional contemporary residence offering an impressive blend of scale, design and technology, extending to approximately 4576 sq ft including outbuildings. The house is thoughtfully arranged to suit both everyday family living and high-end entertaining.The ground floor is centred around generous, light-filled living spaces that flow effortlessly from one to another. A substantial kitchen and family area opens onto the terrace and landscaped garden, creating a seamless connection between indoors and out, while a formal dining room provides an elegant setting for entertaining. Additional accommodation on this level includes a private study, utility room and a spectacular cinema room, thoughtfully designed with tiered seating and smart surround sound technology. Throughout the house, poured resin flooring with underfloor heating provides both comfort and a sleek modern aesthetic.The property benefits from a sophisticated Lutron lighting system alongside a Crestron home automation setup, allowing seamless control of lighting, audio and environmental settings, while partial air conditioning enhances comfort in key areas of the home.Upstairs, the first floor offers a superb collection of bedrooms arranged around a central landing, with several benefitting from en suite facilities. The second floor is dedicated to an impressive principal suite, featuring a large bedroom, walk-in wardrobe and a luxurious en suite bathroom, creating a private retreat within the house.Outside, the rear garden is a standout feature, offering a large terrace, a beautifully proportioned garden and a swimming pool, ideal for both relaxation and entertaining. Two outbuildings provide additional flexible space, perfect for storage, a gym, studio or home office.Situated in one of Elstree’s most sought-after locations, Barnet Lane offers excellent access to local amenities, transport links and well-regarded schools. It should be noted that the house now requires a degree of refurbishment and ongoing maintenance, presenting an opportunity for a purchaser to restore Hither Cottage to its former glory and tailor it to their own requirements.

Important Information

  • This is a Freehold property.

Property Ref: LUM230212

Share:

Similar Properties

Watford Road, Radlett, Hertfordshire, WD7

5 Bedroom Semi-Detached House | Offers in excess of £2,000,000

Ivy Grove is a boutique development of just four thoughtfully designed four/five bedroom semi-detached homes, located in...

Newberries Avenue, Radlett, Hertfordshire, WD7

5 Bedroom Detached House | £2,000,000

Nestled on the prestigious Newberries Avenue, this exceptional residence showcases refined living across three expansive...

The Warren, Radlett, Hertfordshire, WD7

4 Bedroom Detached Bungalow | £1,900,000

Nestled along the highly regarded The Warren in Radlett, this substantial detached bungalow offers generous and versatil...

Newberries Avenue, Radlett, Hertfordshire, WD7

5 Bedroom Detached House | £2,150,000

Set along the highly desirable Newberries Avenue in Radlett, this exceptional detached family home has been thoughtfully...

Watford Road, Radlett, Hertfordshire, WD7

6 Bedroom Detached House | £2,200,000

Situated on the prestigious Watford Road in the heart of Radlett, this impressive detached family home offers over 4,100...

Beech Avenue, Radlett, Hertfordshire, WD7

6 Bedroom Detached House | £2,250,000

This impressive six-bedroom detached family home occupies a prime position on Beech Avenue in the highly sought-after vi...

Lumley Estates (Radlett)

72 Watling Street, Radlett, Hertfordshire, WD7 7NP

01923 853366

How much is your home worth?

Use our short form to request a valuation of your property.

Request a Valuation

Mortgage Calculator

Amount Borrowed: £
Total Amount Repayable: £
Total Monthly Payment: £
©2026 The Guild of Property Professionals. All rights reserved. Terms and Conditions | Privacy Policy | Cookie Policy | Complaints Policy | Members Login
The Guild of Property Professionals Trading Address: 121 Park Lane, London W1K 7AG. GPEA Limited. Registered in England & Wales.  Company No: 02819824.  Registered Office Address: 2 St. Stephen's Court, St. Stephen's Road, Bournemouth, Dorset, England, BH2 6LA.  VAT Registration No: 576 8795 61
Book a Property Valuation Update Cookies Preferences