Fortune Lane, Elstree, Borehamwood, Hertfordshire, WD6

Offers in excess of
£1,200,000
SSTC
This property listing is now SSTC

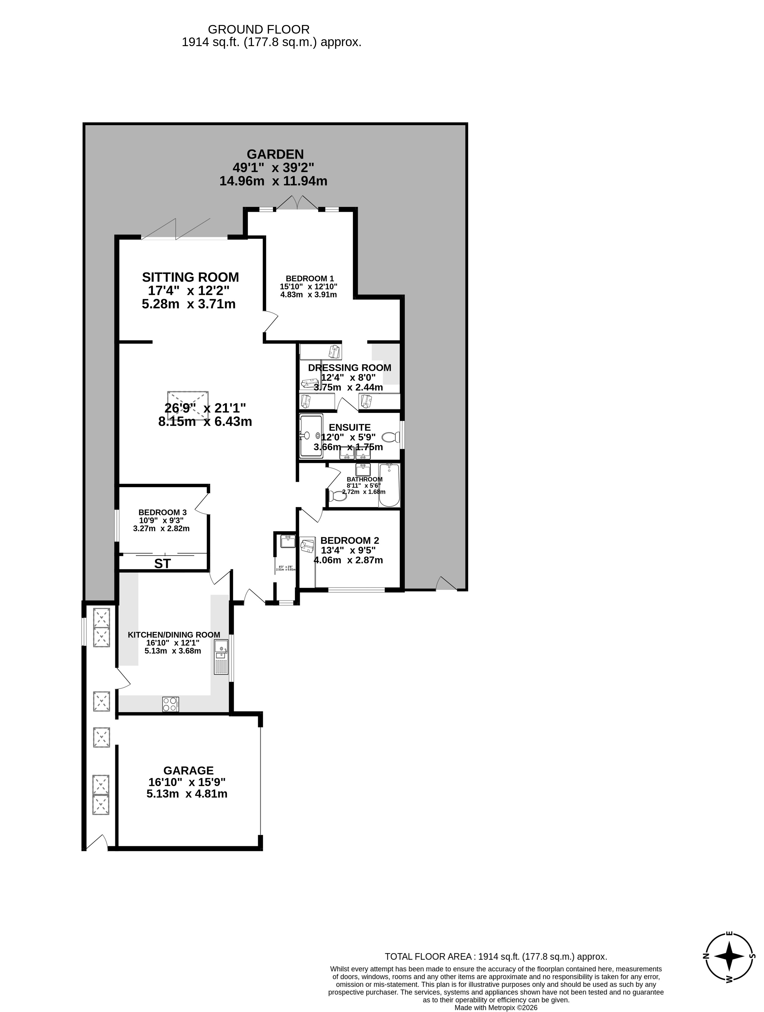
3 Bedroom Bungalow for sale in Borehamwood

2 3 2

Set discreetly behind electric gates, this beautifully presented detached bungalow offers contemporary living on one level, combining privacy, space and comfort in an enviable village setting.The accommodation is thoughtfully arranged and filled with natural light throughout. Three generously sized bedrooms provide excellent flexibility, with the principal suite enjoying direct garden access, a stylish dressing area and a modern en suite shower room. The remaining bedrooms are ideal for family, guests or home working.At the heart of the home is an impressive open-plan living space designed for both everyday living and entertaining. Flowing effortlessly between reception, dining and sitting areas, the layout creates a welcoming and sociable environment. A well-appointed kitchen/breakfast room complements the living space, offering ample storage and workspace for modern lifestyles.Externally, the landscaped rear garden offers a peaceful and secluded setting, perfect for relaxing or outdoor dining. The property further benefits from air conditioning throughout, ample off-street parking and a double garage, providing both practicality and security.Positioned just off Barnet Lane in the heart of Elstree Village, the home enjoys the best of both worlds a semi-rural atmosphere with excellent access to local amenities, picturesque countryside and woodland walks. Outstanding transport connections provide easy routes into Central London and surrounding areas. A selection of highly regarded schools including Haberdashers’, Aldenham School, Yavneh College and Primary School, and Radlett Prep are all within convenient reach, as are a variety of places of worship.This is a rare opportunity to acquire a stylish, low-maintenance home in one of the area’s most desirable locations.

Important Information

  • This is a Freehold property.

Property Ref: LUM260017

Share:

Similar Properties

Otterspool Lane, Aldenham, Watford, Hertfordshire, WD25

4 Bedroom Terraced House | Guide Price £1,200,000

Milne House is a beautifully presented and characterful home, thoughtfully arranged across multiple levels and offering...

The Close, Radlett, Hertfordshire, WD7

3 Bedroom Detached House | £1,200,000

Tucked away in the peaceful cul-de-sac of The Close in the sought-after village of Radlett, this impressive and spacious...

Elm Walk, Radlett, Hertfordshire, WD7

3 Bedroom Detached Bungalow | Guide Price £1,100,000

This well-proportioned home on Elm Walk, Radlett offers approximately 1,291 sq ft of accommodation, excluding the garage...

Middle Down, Aldenham, Watford, Hertfordshire, WD25

4 Bedroom House | Offers in excess of £1,250,000

This magnificent four double bedroom family home forms part of the award winning Wall Hall development, located in the r...

Williams Way, Radlett, Hertfordshire, WD7

5 Bedroom Detached Bungalow | Guide Price £1,395,000

This exquisite five-bedroom detached bungalow is situated behind a spacious, well-kept green on a highly desirable road,...

Hanstead House, Bricket Wood, St Albans, AL2

2 Bedroom Apartment | Guide Price £1,400,000

Set on the ground floor, this impressive apartment offers an exceptional 1,785 sq. ft. of beautifully designed living sp...

Lumley Estates (Radlett)

72 Watling Street, Radlett, Hertfordshire, WD7 7NP

01923 853366

How much is your home worth?

Use our short form to request a valuation of your property.

Request a Valuation

Mortgage Calculator

Amount Borrowed: £
Total Amount Repayable: £
Total Monthly Payment: £
©2026 The Guild of Property Professionals. All rights reserved. Terms and Conditions | Privacy Policy | Cookie Policy | Complaints Policy | Members Login
The Guild of Property Professionals Trading Address: 121 Park Lane, London W1K 7AG. GPEA Limited. Registered in England & Wales.  Company No: 02819824.  Registered Office Address: 2 St. Stephen's Court, St. Stephen's Road, Bournemouth, Dorset, England, BH2 6LA.  VAT Registration No: 576 8795 61
Book a Property Valuation Update Cookies Preferences