Tucked away in the peaceful cul-de-sac of The Close in the sought-after village of Radlett, this impressive and spacious detached family home offers over 2,300 sq.ft of beautifully arranged living space, combining versatile interiors with breathtaking countryside views.
The property is positioned at the end of this quiet residential road, enjoying an exceptionally private setting that backs directly onto open fields. From the rear of the home, especially from the upper floors, the views stretch out across lush green farmland, providing a truly idyllic backdrop and a rare sense of tranquillity that is hard to find so close to town amenities.
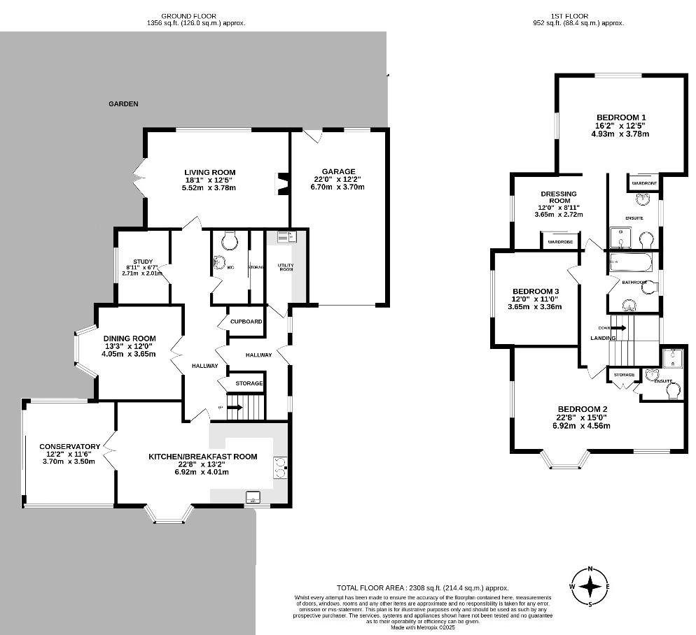
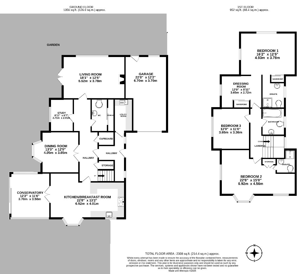
Inside, the ground floor is arranged to suit modern family life. A generous kitchen/breakfast room, measuring an impressive 22'8" x 13'2", sits at the heart of the home and opens out into a charming conservatory with garden access, ideal for relaxed dining or morning coffee with uninterrupted views. 
The ground floor also offers a formal dining room, a living room with garden access, a study, WC, utility room and plenty of storage including a large garage.
Upstairs, the accommodation continues to impress with three large double bedrooms, including a principal suite with its own dressing room and ensuite bathroom. 
Bedroom two is particularly spacious and features beautiful bay windows that perfectly frame the sweeping views over the open fields. There is also a well-appointed family bathroom and ample built-in wardrobes throughout.
Set on a generous plot, the propertys garden opens directly onto rolling countryside, making it perfect for nature lovers, families, or those seeking a semi-rural lifestyle within easy reach of Radlett's station, high street, and highly regarded schools.
This is a rare opportunity to acquire a substantial home in one of Radletts most peaceful and private locations, with views that will never fail to inspire.
Important Information
Property Ref: 603603_LUM250287
Middle Down, Aldenham, Watford, Hertfordshire, WD25
4 Bedroom House | £1,275,000
This magnificent four double bedroom family home forms part of the award winning Wall Hall development, located in the r...
5 Bedroom Detached House | £1,250,000
Set in the sought-after location of Mill Hill, this impressive five-bedroom detached family home, built circa 10 years a...
Links Drive, Radlett, Hertfordshire, WD7
2 Bedroom Detached Bungalow | £1,200,000
This beautifully presented bungalow on Links Drive, Radlett, offers spacious and versatile accommodation extending to ap...
Gills Hill Lane, Radlett, Hertfordshire, WD7
4 Bedroom Detached House | Guide Price £1,350,000
Set on the desirable Gills Hill Lane in Radlett, this beautifully arranged detached family home offers spacious and vers...
Stables End, Aldenham, Watford, Hertfordshire, WD25
6 Bedroom Detached House | £1,400,000
Nestled within the highly sought-after village of Aldenham, this impressive six-bedroom detached residence is situated o...
Hale Grove Gardens, London, NW7
5 Bedroom House | Offers in excess of £1,420,000
This exquisite 5-bedroom family residence has recently undergone a complete renovation to the highest standards.
 
                            Lumley Estates (Radlett)
72 Watling Street, Radlett, Hertfordshire, WD7 7NP
Use our short form to request a valuation of your property.
Request a Valuation