Tarragon Way, Bourne

Offers in excess of
£425,000
Sold
This property listing is now Sold

4 Bedroom Detached House for sale in Bourne

2 4 2
  • Generously Sized Detached Family Home
  • 4 Double Bedrooms
  • Quiet Residential Location
  • Close to Town Centre and Amenities
  • 2 Reception Rooms
  • Good Sized Kitchen Breakfast Room
  • En Suite & Dressing Room to Bedroom 1
  • Double Garage & Driveway Parking for 4/5 Vehicles
  • Please refer to attached Key Facts for Buyers for Material Information Disclosures


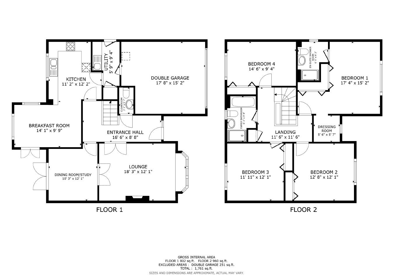
Briefly the accommodation comprises; Ground Floor - Entrance Hall, Cloakroom, Lounge, Dining Room/Study, Kitchen Breakfast Room, and Utility. First Floor - Galleried Landing, Bedroom 1 with Dressing Room & En Suite Shower Room, 3 Further Large Double Bedrooms, and a Family Bathroom. Outside - To the front is a large driveway that provides off road parking for 4/5 vehicles which leads to an integral Double Garage. The rear Garden has been beautifully landscaped, with an artificial lawn, well stocked borders, and maturing trees that create privacy. There is also a covered patio area to the side of the garden.

Internal Viewing Is Highly Recommended to Fully Appreciate the Size of This Family Home

Agents Note:
Local Authority – South Kesteven District Council
Council Tax Band – E
EPC Rating - C
This property is currently owned by a family member of one of the Goodwins team.

Entrance Hall
5.03m x 2.64m (16'6" x 8'8")

Cloakroom
0.94m x 1.70m (3'1" x 5'7")

Lounge
5.56m x 3.68m (18'3" x 12'1")

Dining Room/Study
3.12m x 3.68m (10'3" x 12'1")

Kitchen
3.40m x 3.71m (11'2" x 12'2")

Breakfast Room
4.29m x 2.97m (14'1" x 9'9")

Utility Room
1.75m x 2.84m (5'9" x 9'4")

Landing
3.51m x 3.51m (11'6" x 11'6")

Bedroom 1
5.28m x 4.62m (17'4" x 15'2")

Dressing Room
1.65m x 1.70m (5'5" x 5'7")

En Suite Shower Room
1.96m x 2.49m (6'5" x 8'2")

Bedroom 2
3.86m x 3.68m (12'8" x 12'1")

Bedroom 3
3.63m x 3.68m (11'11" x 12'1")

Bedroom 4
4.42m x 2.84m (14'6" x 9'4")

Family Bathroom
1.85m x 2.95m (6'1" x 9'8")

Double Garage
5.38m x 4.62m (17'8" x 15'2")


Sizes and dimensions are calculated using a laser measuring modelling device and as such whilst representative it must be noted that they are all approximate, actual sizes may vary.

Important Information

  • This is a Freehold property.
  • This Council Tax band for this property is: E
  • EPC Rating is C

Property Ref: 34125243

Share:

Similar Properties

Home Farm Close, Great Casterton

3 Bedroom Detached House | £425,000

'The Barn' is a charming 3-bedroom stone property which forms part of a small and exclusive development in the heart of...

Sovereign Way, Stamford

4 Bedroom Town House | Offers Over £425,000

This Superb 4 Bedroom Modern Town House is located on the new Stamford Gardens Development, which is ideally positioned...

Recreation Ground Road, Stamford

3 Bedroom End of Terrace House | £400,000

3-Bedroom Victorian Townhouse | 4 Floors | Enviable Central Location | Period Charm with Modern LivingThis beautifully p...

Highgrove Gardens, STAMFORD, Lincolnshire

4 Bedroom Detached House | £450,000

Well-presented detached family home situated in a cul-de-sac location, just off Empingham Road and close to the Malcolm...

Main Street, Caldecott, Market Harborough

3 Bedroom Cottage | £450,000

3 Bedrooms | 2 Bathrooms | 3 Reception RoomsA beautifully presented recently extended and fully renovated village home f...

Church Street, Northborough, Peterborough

3 Bedroom Detached House | £450,000

A rare opportunity to acquire an attractive stone cottage with a substantial converted barn, offering versatile addition...

Goodwin Property (Stamford)

St Johns Street, Stamford, Lincolnshire, PE9 2DA

01780 750000

How much is your home worth?

Use our short form to request a valuation of your property.

Request a Valuation

Mortgage Calculator

Amount Borrowed: £
Total Amount Repayable: £
Total Monthly Payment: £
©2026 The Guild of Property Professionals. All rights reserved. Terms and Conditions | Privacy Policy | Cookie Policy | Complaints Policy | Members Login
The Guild of Property Professionals Trading Address: 121 Park Lane, London W1K 7AG. GPEA Limited. Registered in England & Wales.  Company No: 02819824.  Registered Office Address: 2 St. Stephen's Court, St. Stephen's Road, Bournemouth, Dorset, England, BH2 6LA.  VAT Registration No: 576 8795 61
Book a Property Valuation Update Cookies Preferences