Home Farm Close, Great Casterton

£425,000
Sold
This property listing is now Sold

3 Bedroom Detached House for sale in Great Casterton

2 3 2
  • Charming 3-Bedroom Stone Property
  • Popular Rutland Village
  • Part of a Small & Exclusive Development
  • Close to Local Schooling
  • 2 Reception Rooms
  • Kitchen
  • Flexible Accomodation
  • Courtyard Garden & Double Garage
  • Please Refer to Attached KFB For Material Information Disclosures


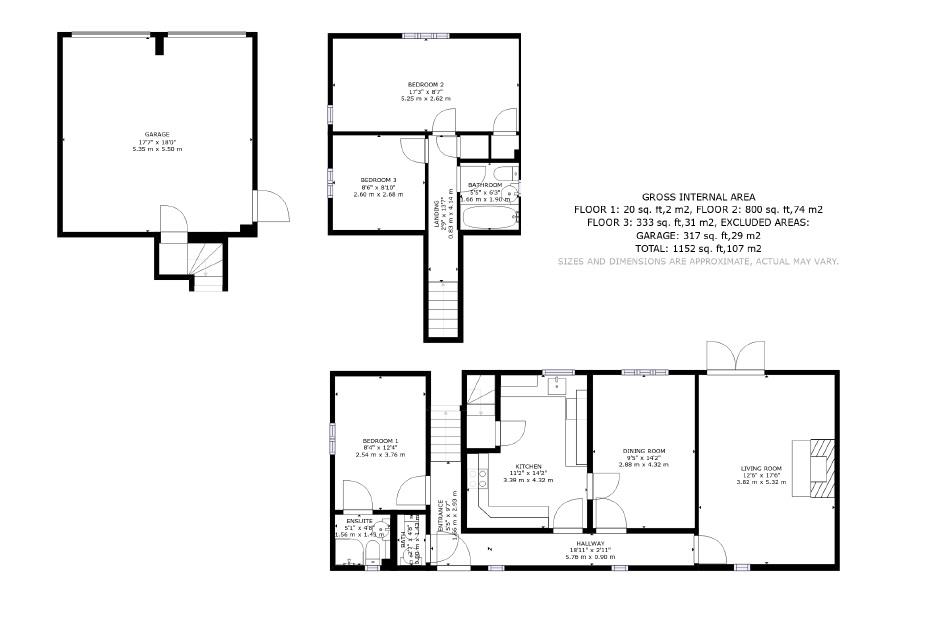
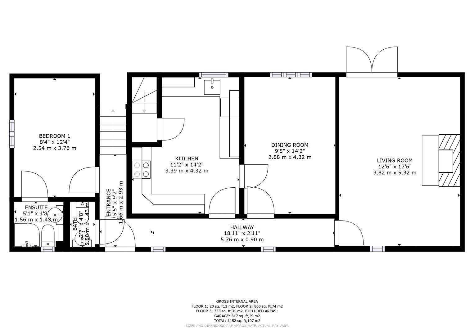
The accommodation is set over two floors and briefly comprises; Ground floor - Entrance hall, cloakroom, dining room, living room, kitchen and bedroom with en-suite shower room. On the First floor: Landing, two further double bedrooms, and the family bathroom.

Outside, to the front and side there are mature planted borders whilst to the rear you will find a courtyard style garden which is enclosed by a stone wall and fence. Also to the rear is a driveway providing off road parking for 2 vehicles which in turn leads to the double garage.

Agents Note:
Local Authority – Rutland County Council
Council Tax Band – E
EPC Rating - C

Entrance Hall

Living Room
12' 6'' x 17' 6'' (3.81m x 5.33m)

Dining Room
9' 5'' x 14' 2'' (2.87m x 4.31m)

Kitchen
11' 2'' x 14' 2'' (3.40m x 4.31m)

Cloakroom

Master Bedroom
8' 4'' x 12' 4'' (2.54m x 3.76m)

En Suite

Landing

Bedroom 2
17' 3'' x 8' 7'' (5.25m x 2.61m)

Bedroom 3
8' 6'' x 8' 10'' (2.59m x 2.69m)

Bathroom

Double Garage
17' 7'' x 18' 0'' (5.36m x 5.48m)


Sizes and dimensions are calculated using a laser measuring modelling device and as such whilst representative it must be noted that they are all approximate, actual sizes may vary.

Important Information

  • This is a Freehold property.
  • This Council Tax band for this property is: E
  • EPC Rating is C

Property Ref: GPS03722

Share:

Similar Properties

Tarragon Way, Bourne

4 Bedroom Detached House | Offers in excess of £425,000

This generously sized 4 Bedroom Detached Family Home is well presented throughout and is located in a quiet residential...

Western Avenue, Easton on the Hill

3 Bedroom Detached House | Offers Over £400,000

Charming Three-Bedroom Home with Generous Living Space & Large TerraceSituated in the highly sought-after village of Eas...

Recreation Ground Road, Stamford

3 Bedroom End of Terrace House | £375,000

3-Bedroom Victorian Townhouse | 4 Floors | Enviable Central Location | Period Charm with Modern LivingThis beautifully p...

Church Street, Northborough, Peterborough

3 Bedroom Detached House | £450,000

A rare opportunity to acquire an attractive stone cottage with a substantial converted barn, offering versatile addition...

Main Street, Caldecott, Market Harborough

3 Bedroom Cottage | £450,000

3 Bedrooms | 2 Bathrooms | 3 Reception RoomsA beautifully presented recently extended and fully renovated village home f...

Cambridge Road, Stamford

3 Bedroom Bungalow | £470,000

This deceptively spacious three-bedroom detached bungalow offers an exceptional amount of versatile living accommodation...

Goodwin Property (Stamford)

St Johns Street, Stamford, Lincolnshire, PE9 2DA

01780 750000

How much is your home worth?

Use our short form to request a valuation of your property.

Request a Valuation

Mortgage Calculator

Amount Borrowed: £
Total Amount Repayable: £
Total Monthly Payment: £
©2026 The Guild of Property Professionals. All rights reserved. Terms and Conditions | Privacy Policy | Cookie Policy | Complaints Policy | Members Login
The Guild of Property Professionals Trading Address: 121 Park Lane, London W1K 7AG. GPEA Limited. Registered in England & Wales.  Company No: 02819824.  Registered Office Address: 2 St. Stephen's Court, St. Stephen's Road, Bournemouth, Dorset, England, BH2 6LA.  VAT Registration No: 576 8795 61
Book a Property Valuation Update Cookies Preferences