Church Street, Northborough, Peterborough

£450,000
SSTC
This property listing is now SSTC

3 Bedroom Detached House for sale in Northborough

3 3 2
  • Grade II Listed Stone Cottage
  • Converted Barn to Workshop & Hobby Rooms
  • Versatile Accommodation
  • Cottage - 2/3 Double Bedrooms - 3/4 Reception Rooms
  • Bespoke Kitchen Breakfast Room
  • Popular Village Location
  • Mature Gardens
  • Ample Off Road Parking & Single Garage
  • Please refer to attached Key Facts for Buyers for Material Information Disclosures


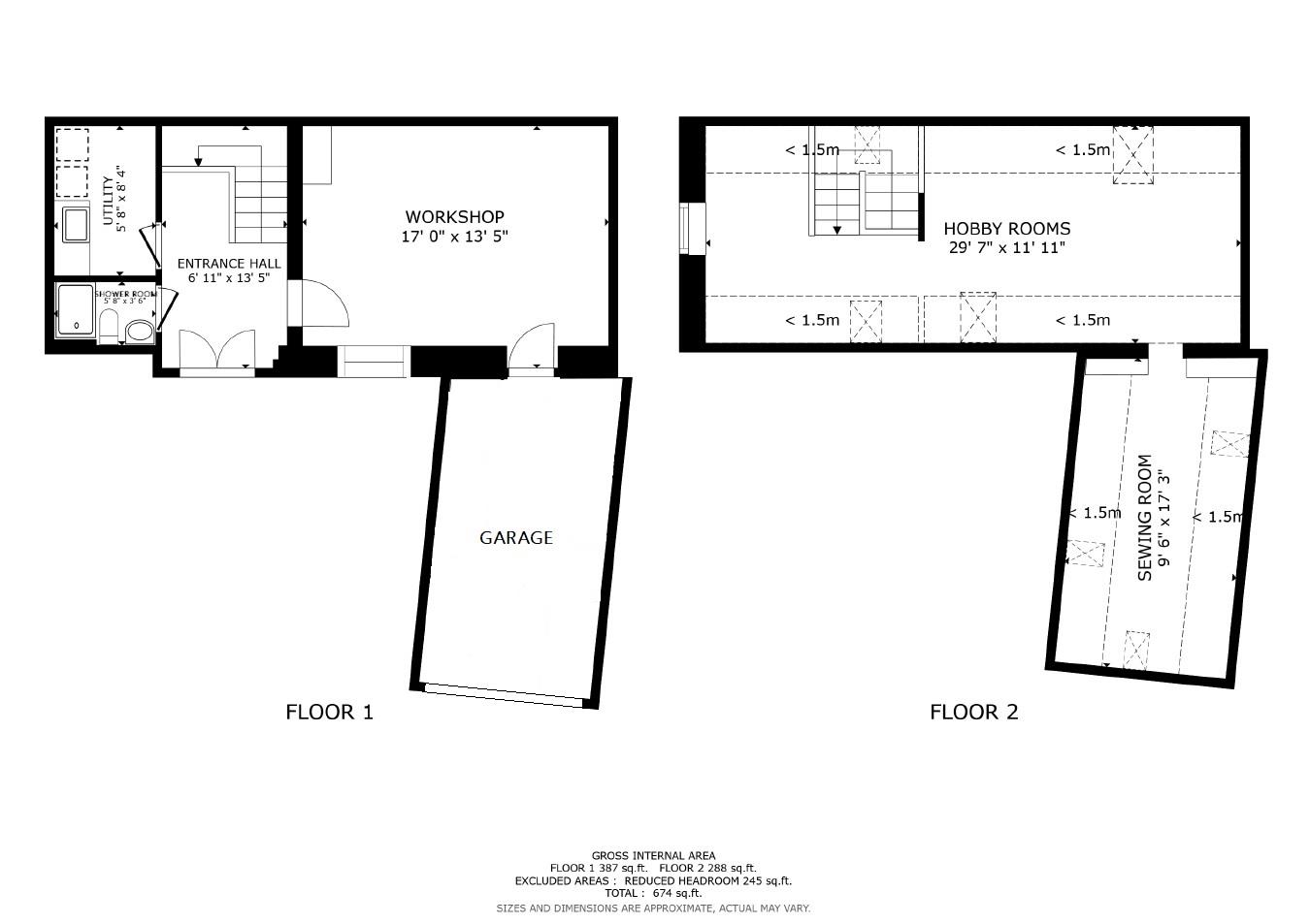
Briefly the accommodation comprises; Cottage - Ground Floor - Entrance Porch, Living Room, Dining Room, Hallway, Family Bathroom, Study, Bedroom 3/Sitting Room, Kitchen Breakfast Room, Utility, and Rear lobby. First Floor - Landing, 2 Double Bedrooms, Bedroom 1 with En-Suite Shower Room and good sized Cupboard. The Barn - The barn currently has planning permission to be used as a workshop and hobby rooms - for residential use, the property would need to obtain planning permission to convert usage. Current layout of Barn - Ground Floor - Hallway, Shower Room, Utility, Workshop and Single Garage. First Floor - 29' Hobby Room, and Sewing Room.

Outside - To the front the property there is a good sized lawned area and a driveway that provides off road parking for several vehicles which in turn leads to the Single Garage. To the rear is a private rear garden and patio area, mature planting and an outside store.

Internal Viewing Is Highly Recommended To Fully Appreciate The Accommodation On Offer

Agents Note:
Local Authority – Peterborough City Council
Council Tax Band – D
EPC Rating - Exempt

Cottage

Porch
1.22m x 1.42m (4'0" x 4'8")

Living Room
4.24m x 5.51m (13'11" x 18'1")

Dining Room
4.24m x 2.90m (13'11" x 9'6")

Hallway
1.63m x 3.84m (5'4" x 12'7")

Kitchen Breakfast Room
3.86m x 3.53m (12'8" x 11'7")

Utility
1.85m x 1.96m (6'1" x 6'5")

Rear Lobby
1.02m x 0.97m (3'4" x 3'2")

Bathroom
1.37m x 2.84m (4'6" x 9'4")

Hallway
2.49m x 0.97m (8'2" x 3'2")

Study
2.11m x 2.90m (6'11" x 9'6")

Bedroom 3/Sitting Room
2.44m x 3.96m (8'0" x 13'0")

Landing

Bedroom 1
4.52m x 3.66m (14'10" x 12'0")

En -Suite
2.01m x 1.12m (6'7" x 3'8")

Bedroom 2
4.52m x 2.97m (14'10" x 9'9")

The Barn

Entrance Hall
2.11m x 4.09m (6'11" x 13'5")

Shower Room
1.73m x 1.07m (5'8" x 3'6")

Utility
1.73m x 2.54m (5'8" x 8'4")

Workshop
5.18m x 4.09m (17'0" x 13'5")

Single Garage

First Floor

Hobby Rooms
9.02m x 3.63m (29'7" x 11'11")

Sewing Room
2.90m x 5.26m (9'6" x 17'3")


Sizes and dimensions are calculated using a laser measuring modelling device and as such whilst representative it must be noted that they are all approximate, actual sizes may vary.

Important Information

  • This is a Freehold property.
  • This Council Tax band for this property is: D

Property Ref: 34224531

Share:

Similar Properties

Main Street, Caldecott, Market Harborough

3 Bedroom Cottage | £450,000

3 Bedrooms | 2 Bathrooms | 3 Reception RoomsA beautifully presented recently extended and fully renovated village home f...

Camrose Close, Oakham

4 Bedroom Detached House | £450,000

Spacious 4-Bedroom Detached Family Home - Camrose Close, Oakham. Nestled in a quiet cul-de-sac in the highly sought-afte...

Highgrove Gardens, STAMFORD, Lincolnshire

4 Bedroom Detached House | £450,000

Well-presented detached family home situated in a cul-de-sac location, just off Empingham Road and close to the Malcolm...

Station Road, Morton, Bourne

4 Bedroom Detached House | Offers Over £467,500

Situated in the heart of this popular village of Morton, Cobwebs is a deceptively spacious, double fronted, period famil...

Cambridge Road, Stamford

3 Bedroom Bungalow | £480,000

This deceptively spacious three-bedroom detached bungalow offers an exceptional amount of versatile living accommodation...

Barnack Road, Stamford

4 Bedroom Town House | £500,000

An immaculate four double bedroom townhouse, ideally positioned opposite Burghley Park and just a short stroll from Stam...

Goodwin Property (Stamford)

St Johns Street, Stamford, Lincolnshire, PE9 2DA

01780 750000

How much is your home worth?

Use our short form to request a valuation of your property.

Request a Valuation

Mortgage Calculator

Amount Borrowed: £
Total Amount Repayable: £
Total Monthly Payment: £
©2026 The Guild of Property Professionals. All rights reserved. Terms and Conditions | Privacy Policy | Cookie Policy | Complaints Policy | Members Login
The Guild of Property Professionals Trading Address: 121 Park Lane, London W1K 7AG. GPEA Limited. Registered in England & Wales.  Company No: 02819824.  Registered Office Address: 2 St. Stephen's Court, St. Stephen's Road, Bournemouth, Dorset, England, BH2 6LA.  VAT Registration No: 576 8795 61
Book a Property Valuation Update Cookies Preferences