Brunel Mews The Wharf

Guide Price
£375,000

2 Bedroom Terraced House for sale in Box

1 2 1
  • Beautifully Presented Mews House Dating Back To The 19th Century
  • Contemporary High Specification Finish Throughout
  • Garage & Allocated Parking
  • Studio/Workshop - Ideal Work From Home Space
  • Open Plan Living Arrangement
  • Conveniently Located For Access To Bath, Chippenham Station, BOA Station & The M4

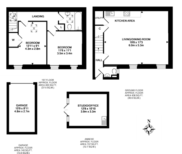
A polished Mews House dating back to the 19th century, subsequently offering a charming stone facade, and a contemporary open plan living arrangement, blending the old and the new seamlessly. The property comprises an entrance hall which provides access to the cloakroom, first floor landing and the main open plan living space. The open plan set up offers a modern kitchen with splashback tiling, built in appliances and a mixture of base level and eye level cabinetry - a generous entertaining space measuring 19'8 x 17'3. The first floor accommodation offers two generous bedrooms with exceptional views and the family bathroom.

Externally the property benefits from a courtyard garden to the front which our vendors regularly enjoy the evening sunshine from. Additionally, the property is supported by a garage, allocated parking and a garden studio which would make a fantastic work home space / annexe subject to the necessary permissions.

The property is located in the heart of this sought-after village. It is well situated for access to Bath & Corsham with village amenities including an excellent primary school, village hall with library, Budgens, family butcher, church, pub, post office/store, curry house, doctor’s surgery & the excellent ”Rec” – an impressive open space resource with cricket, football, bowling club, tennis courts & playground. Corsham is located close by and caters for most day-to-day needs with a range of national and bespoke shops, coffee houses, boutiques, restaurants, and a variety of public houses. There are very good Primary and Secondary schools and the new Corsham Leisure Centre.

Box has excellent communication links to the beautiful city of Bath, just 5 miles away as well as London, Swindon and Bristol via the M4 motorway junctions 17 & 18, with high
speed rail service to London (Paddington - approx 90 mins from Bath) and
Chippenham. There is also a regular bus service which stops outside of the
property providing easy access to Bath and Chippenham.

Important Information

  • This is a Freehold property.
  • This Council Tax band for this property is: D
  • EPC Rating is C

Property Ref: DDB_DDB250240

Share:

Similar Properties

Kingston Avenue Bradford On Avon

3 Bedroom Semi-Detached House | Asking Price £375,000

SOLD PRIOR TO MARKETING: A well placed family home, benefitting from a large plot offering extendability, ample driveway...

Greenland Mills Bradford On Avon

2 Bedroom Flat | Asking Price £375,000

The ‘Applegate Woollen Factory’ has been transformed into a monumental apartment spanning the entire 1st floor of this h...

Duffield Lane

2 Bedroom Coach House | Asking Price £360,000

A bright and stylish two bedroom detached coach house on the fringes of Bradford On Avon town centre offering spacious l...

The Old Batch Bradford on Avon

4 Bedroom End of Terrace House | Offers Over £400,000

A well presented, practical family home situated in a sought after cul-de-sac location within walking distance to nearby...

Fitzmaurice Close Bradford On Avon

3 Bedroom Semi-Detached House | Asking Price £400,000

A well placed family home situated in a quiet cul-de-sac location, close to amenities and schooling benefitting from dri...

Trowbridge Road Bradford On Avon

2 Bedroom Detached House | Guide Price £420,000

A double fronted detached home on the outskirts of Bradford-On-Avon, occupying an incredibly substantial plot offering a...

Davies & Davies (Bradford on Avon)

Bradford on Avon, Wiltshire, BA15 1JY

01225 867 555

How much is your home worth?

Use our short form to request a valuation of your property.

Request a Valuation

Mortgage Calculator

Amount Borrowed: £
Total Amount Repayable: £
Total Monthly Payment: £
©2025 The Guild of Property Professionals. All rights reserved. Terms and Conditions | Privacy Policy | Cookie Policy | Complaints Policy | Members Login
The Guild of Property Professionals Trading Address: 121 Park Lane, London W1K 7AG. GPEA Limited. Registered in England & Wales.  Company No: 02819824.  Registered Office Address: 2 St. Stephen's Court, St. Stephen's Road, Bournemouth, Dorset, England, BH2 6LA.  VAT Registration No: 576 8795 61
Book a Property Valuation Update Cookies Preferences