Saffron Gardens, Wethersfield, Braintree

Offers Over
£400,000
SSTC
This property listing is now SSTC

4 Bedroom Semi-Detached House for sale in Braintree

2 4 3
  • No Onward Chain
  • Four Bedrooms & Study
  • Semi-detached Family Home
  • Single Integral Garage
  • Driveway Parking For Two Vehicles
  • Kitchen/Breakfast Room
  • Study & Utility Room
  • Living Room & Dining Room
  • En-suite & Family Bathroom
  • Rear & Front Gardens

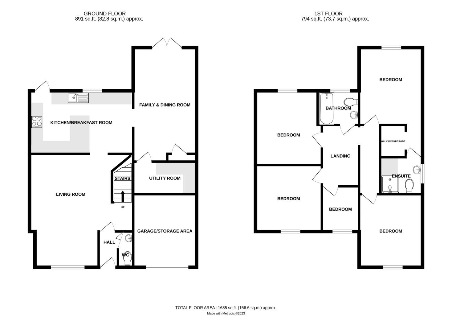
Located on an established residential road in a quiet village is this stunning four bedroom semi-detached family home offering a modern living layout over two floors of accommodation. the ground floor comprises:- entrance hall, cloakroom, living room, kitchen/breakfast room, dining room, and utility room. On the first floor are four bedrooms with en-suite facilities to the principal bedroom, and a family bathroom. Externally the property benefits from front and rear gardens, with driveway parking, and an integral single garage.

Entrance Hall - 1.5mx 1.2m (4'11"x 3'11") - Frosted partially glazed UPVC front door, tiled flooring, ceiling mounted light fixture, various power points.

Cloakroom - Frosted double glazed UPVC window to front aspect, low level WC, corner wall mounted wash hand basin with mixer tap and splashback tiling, tiled flooring, wall mounted radiators, ceiling mounted light fixture.

Living Room - 5.6m x 5.2m (18'4" x 17'0") - Double glazed UPVC window to front aspect, stairway access to first floor, wall mounted radiator, carpeted flooring, ceiling mounted light fixtures, various power points.

Kitchen/Breakfast Room - 5.3m x 3.2m (17'4" x 10'5") - Partially double glazed UPVC door to rear, UPVC double glazed window to rear, various base and eye level units with granite effect worksurfaces over, break bar seating for three people. one and a half unit composite sink with mixer tap, space for dishwasher, space for low level fridge/washing machine, integrated double Zanussi fan oven, four ring electric hob with extractor fan over, access to utility box, wall mounted radiator, partially tiled walls, vinyl flooring, ceiling mounted light fixtures, various power points.

Dining Room - 5.7m x 3.2m (18'8" x 10'5") - Double glazed UPVC French doors to rear, access to storage cupboard, wall mounted radiators, wood laminate flooring, ceiling mounted light fixtures, various power points.

Utility Room - 2.9m x 1.4m (9'6" x 4'7") - Various base and eye level units with wood effect worksurfaces over, access to electric box, access to immersion heater, vinyl flooring, ceiling mounted light fixture, various power points, extractor fan.

First Floor Landing - 3.2m x 3.1m (10'5" x 10'2") - Carpeted stairway with timber bannister, access to loft, wall mounted radiator, carpeted flooring, ceiling mounted light fixture, various power points.

Principal Bedroom - 3.9m x 3.2m (12'9" x 10'5") - Double glazed UPVC window to rear aspect, wall mounted radiator, carpeted flooring, ceiling mounted light fixture with fan, inset spotlight, TV point, various power points. Opening to dressing room, door to en-suite.

En-Suite - Frosted double glazed UPVC window to side aspect, three-piece suite, tile enclosed wet room shower with rainfall head and hand held attachment, wall mounted wash hand basin with mixer tap, low level WC, wall mounted heated towel rail, partially tiled walls, tiled floor, shaver port, ceiling mounted light fixture, extractor fan.

Bedroom Two - 3.6m x 3.2m (11'9" x 10'5") - Double glazed UPVC window to front aspect, access to loft area, wall mounted radiator, carpeted flooring, ceiling mounted light fixture, various power points.

Family Bathroom - Double glazed UPVC frosted window to rear aspect, three-piece suite, low level WC, timber panel enclosed bath with mixer tap and rainfall shower, vanity wash hand basin with low level storage, wall mounted radiator, partially tiled walls, vinyl flooring, ceiling mounted light fixture.

Bedroom Three - 3.6m x 3.2m (11'9" x 10'5") - Double glazed UPVC window to rear aspect, various inbuilt wardrobes, wall mounted radiator, carpeted flooring, ceiling mounted light fixture, various power points.

Bedroom Four - 3.3m x 3.3m (10'9" x 10'9") - Double glazed UPVC window to front aspect, wall mounted radiator, carpeted flooring, ceiling mounted light fixture, various power points.

Study - 2.1m x 1.8m (6'10" x 5'10") - Double glazed UPVC window to front aspect, wall mounted radiator, wood laminate flooring, ceiling mounted light fixture, various power points.

Front Gardens - Small frontage, sleeper enclosed, multi level laid to lawn, flagstone path with steps leading to stone shingle seating area, various mature shrubs, entrance porchway.

Garage & Parking - 3.6m x 3.2m (11'9" x 10'5") - Driveway parking for 2 vehicles, electric roller shutter garage.

Rear Garden - Multi-level laid to lawn, large flagstone patio entertaining area, raised suntrap area, fully enclosed with timber panel fencing, various shrubs and bushes throughout, timber shed.

Property Ref: 34204405

Share:

Similar Properties

Rayfield Close, Barnston, DUNMOW

3 Bedroom Semi-Detached House | Offers Over £400,000

Located at the end of a quiet close is this immaculate three bedroom semi-detached family home boasting a modern open pl...

Almond Road, Dunmow

3 Bedroom End of Terrace House | Offers Over £400,000

Located on the award winning "Woodlands Park" development is this spacious three double bedroom end of terrace town hous...

The Downs, Stebbing, Dunmow, Essex

4 Bedroom Semi-Detached House | £400,000

***No Onward Chain***Located on a quiet close in the heart of the highly sought-after village of Stebbing, this well-pro...

Ainsworth Drive, Felsted, Dunmow, Essex

3 Bedroom Detached House | Offers Over £415,000

We are pleased to offer this well presented three bedroom detached family home situated on a quiet development on the ou...

Blackwater Drive, Dunmow, Essex

3 Bedroom Semi-Detached House | Offers Over £415,000

Nestled on the border of Dunmow in Blackwater Drive, this delightful semi-detached house offers a perfect blend of comfo...

Deer Park View, Great Bardfield, Braintree, Essex

3 Bedroom Semi-Detached House | Offers Over £425,000

Located on a desirable small development in the highly sought after village 'Great Bardfield' is this spacious three bed...

Daniel Brewer Estate Agents (Great Dunmow)

51 High Street, Great Dunmow, Essex, CM6 1AE

01371 856 585

How much is your home worth?

Use our short form to request a valuation of your property.

Request a Valuation

Mortgage Calculator

Amount Borrowed: £
Total Amount Repayable: £
Total Monthly Payment: £
©2026 The Guild of Property Professionals. All rights reserved. Terms and Conditions | Privacy Policy | Cookie Policy | Complaints Policy | Members Login
The Guild of Property Professionals Trading Address: 121 Park Lane, London W1K 7AG. GPEA Limited. Registered in England & Wales.  Company No: 02819824.  Registered Office Address: 2 St. Stephen's Court, St. Stephen's Road, Bournemouth, Dorset, England, BH2 6LA.  VAT Registration No: 576 8795 61
Book a Property Valuation Update Cookies Preferences