Woodlands Park Drive, Dunmow, Essex

Offers Over
£425,000
SSTC
This property listing is now SSTC

3 Bedroom Link Detached House for sale in Dunmow

1 3 2
  • Three Bedroom Link-Detached Family Home
  • Kitchen/Dining Room
  • Lounge
  • Cloakroom
  • En-Suite & Family Bathroom
  • Generous Rear Garden
  • Driveway Parking For Various Vehicles
  • Single Garage
  • Desirable Development
  • Viewing advised

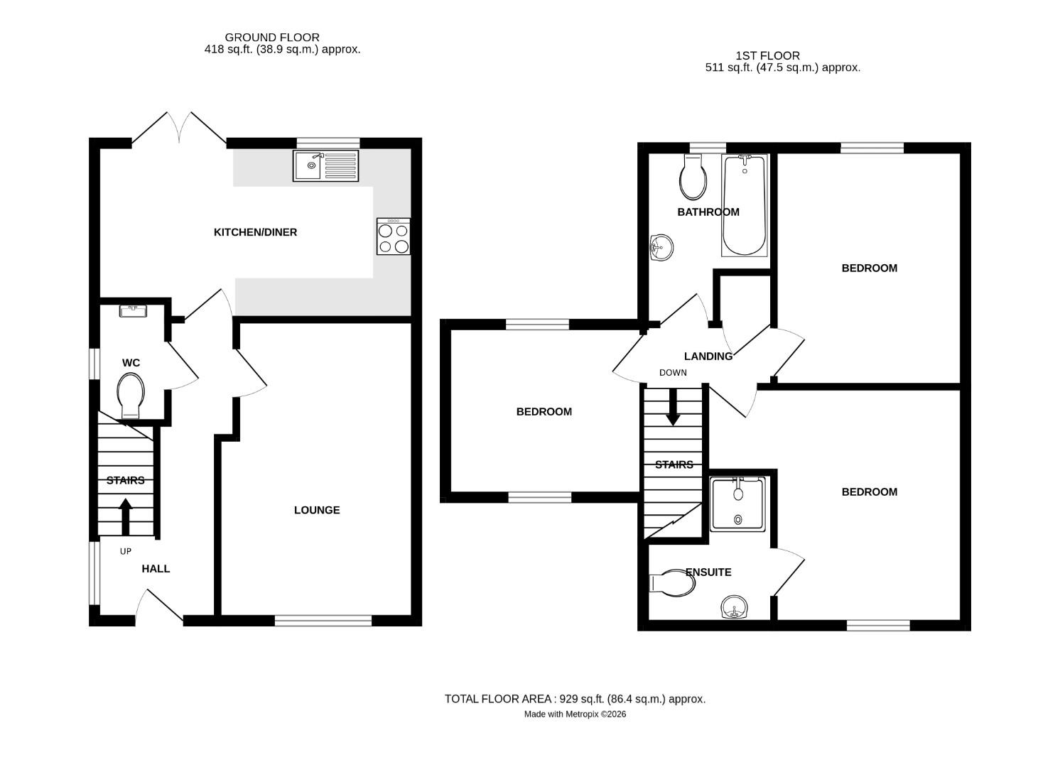
Located on the award winning "Woodlands Park" development is this well-presented three double bedroom link-detached family home boasting a generous rear garden. The ground floor accommodation comprises:- lounge, kitchen/dining room, cloakroom and entrance hall. On the first floor are three double bedrooms with en-suite to the principal bedroom and a family bathroom. Externally the property further boasts a single garage with covered driveway and additional driveway parking.

Entrance Hall - Entered via front door, window to side aspect, doors leading to:-

Kitchen/Dining Room - 5.11m x 2.64m (16'9" x 8'7") - UPVC double glazed window to rear aspect, UPVC double glazed French doors leading to the rear garden, base and eye level units with complimentary working surfaces over, inset 1 1/2 bowl sink with drainer unit, four ring hob with extractor over, inset double oven, integrated fridge/freezer, integrated dishwasher, inset spotlights.

Lounge - 4.88m x 2.90m (16'0" x 9'6") - UPVC double glazed window to front aspect, radiator, power points, T.V point.

Cloakroom - Opaque window to side aspect, low level W.C, wash hand basin with mixer tap.

First Floor Landing - Doors leading to:-

Bedroom One - 3.78m x 4.11m (12'4" x 13'5") - UPVC double glazed window to front aspect, radiator, power points, T.V point, door to.

En-Suite - UPVC double glazed window to front aspect, enclosed shower with glass enclosure & Aqualisa digital button, W.C, wash hand basin with pedestal, heated towel rail, part tiled walls, inset spotlights, extractor fan.

Bedroom Two - 3.78m x 3.00m (12'4" x 9'10") - UPVC double glazed window to rear aspect, radiator, power points.

Bedroom Three - 2.67m x 3.07m (8'9" x 10'0") - UPVC double glazed windows to duel aspects, radiator, power points.

Family Bathroom - UPVC double glazed opaque window to rear aspect, enclosed bath with mixer taps & shower attachment, W.C, was hand basin with pedestal, radiator, part tiled walls, inset spotlights, extractor fan.

Rear Garden - To the rear of the property is a patio area whilst the remainder is made up of mainly lawn with a woodchipped play area to the foot of the garden. Side access is granted via a timber gate.

Single Garage - To the side of the property is a single garage with up and over door, power and lighting.

Driveway Parking - To the front and side of the property is a block paved driveway proving parking for several vehicles.

Town Summary - This market town of Great Dunmow is a bustling town full of independent shops, restaurants and public houses/bars. The town centre is full of historic buildings with some stunning seating areas which include the renowned "Doctors Pond" at Talberds Ley. Some of Great Dunmow's facilities include:- leisure centre, various additional gyms, supermarkets, fantastic primary & secondary schools, parks and much more. The town offers fantastic transport links to Stansted Airport, Chelmsford City and Bishop's Stortford. The town is well known for its four-yearly ritual of the "Flitch Trials", famously mentioned in Chaucer's The Canterbury Tales. Couples must convince a jury of six local bachelors and six local maidens that they have never wished themselves un-wed for a year and a day. If successful the couple are paraded along the High Street and receive a flitch of bacon.

Property Ref: 34416381

Share:

Similar Properties

Counting House Lane, Dunmow, Essex

3 Bedroom Detached House | £425,000

Daniel Brewer are pleased to market this three bedroom detached family home located down a quiet cul-de-sac backing onto...

Vicarage Road, Finchingfield, Braintree, Essex

3 Bedroom Terraced House | Offers Over £425,000

Daniel Brewer are pleased to market this spacious three bedroom terrace family home located in the desirable village 'Fi...

Vauxhall Drive, Braintree, Essex

3 Bedroom Detached Bungalow | Offers in excess of £425,000

***No Onward Chain*** Commanding a corner plot position on an established residential road in the commuter town of Brain...

Hawkspur Green, Little Bardfield, Braintree

6 Bedroom Land | Offers in excess of £440,000

This attractive building plot, measuring approximately one third of an acre, enjoys an elevated position in the peaceful...

London Road, Saffron Walden

2 Bedroom Cottage | Offers Over £450,000

Nestled in the heart of Saffron Walden, a charming commuter town celebrated as the best place to live by "The Sunday Tim...

High Street, Debden, Saffron Walden, Essex

3 Bedroom Detached House | Offers Over £450,000

Nestled in the charming village of Debden, Saffron Walden, this beautifully refurbished Grade II Listed detached house o...

Daniel Brewer Estate Agents (Great Dunmow)

51 High Street, Great Dunmow, Essex, CM6 1AE

01371 856 585

How much is your home worth?

Use our short form to request a valuation of your property.

Request a Valuation

Mortgage Calculator

Amount Borrowed: £
Total Amount Repayable: £
Total Monthly Payment: £
©2026 The Guild of Property Professionals. All rights reserved. Terms and Conditions | Privacy Policy | Cookie Policy | Complaints Policy | Members Login
The Guild of Property Professionals Trading Address: 121 Park Lane, London W1K 7AG. GPEA Limited. Registered in England & Wales.  Company No: 02819824.  Registered Office Address: 2 St. Stephen's Court, St. Stephen's Road, Bournemouth, Dorset, England, BH2 6LA.  VAT Registration No: 576 8795 61
Book a Property Valuation Update Cookies Preferences