Woodlands Close, Knowle, Braunton

Guide Price
£870,000
SSTC
This property listing is now SSTC

4 Bedroom Detached House for sale in Braunton

2 4 3
  • QUALITY SELF-BUILT HOME IN 2014
  • QUIET LOCATION
  • HIGH SPECIFICATION FITTINGS THROUGHOUT
  • UNDERFLOOR HEATING TO GROUND FLOOR
  • 15 MINUTE WALK OF BRAUNTON
  • POPULAR VILLAGE OF KNOWLE
  • 4 DOUBLE BEDROOMS
  • VERSATILE ACCOMMODATION
  • ANNEXE WITH KITCHEN/LIVING AREA
  • STUDY AND UTILITY

QUALITY SELF-BUILT HOME IN 2014
QUIET LOCATION
HIGH SPECIFICATION FITTINGS THROUGHOUT
UNDERFLOOR HEATING TO GROUND FLOOR
15 MINUTE WALK OF BRAUNTON
POPULAR VILLAGE OF KNOWLE
4 DOUBLE BEDROOMS
VERSATILE ACCOMMODATION
ANNEXE WITH KITCHEN/LIVING AREA
STUDY AND UTILITY
LARGE SOUTH FACING REAR GARDEN
IMPRESSIVE DOUBLE GARAGE AND DRIVEWAY PARKING FOR 6-7 VEHICLES

Tucked away in a peaceful cul-de-sac within the sought-after village of Knowle, this remarkable four double bedroom self-build home is a rare offering. Just a 15-minute walk from the heart of Braunton, and only a short drive to the stunning North Devon coastline with its world-class beaches, the property combines a semi-rural setting with exceptional build quality, contemporary design, and generous living space, with the added benefit of a study and utility.

Constructed to an exacting specification, the home boasts superior insulation, high-performance windows, and a thoughtful layout that blends elegance with functionality. Its design cleverly lends itself to dual occupancy, offering versatility for extended family living or guest accommodation.

At the heart of the home lies an impressive open-plan kitchen and dining room, complete with high-quality integral appliances and anchored by a striking dual-faced wood burner that also serves the adjoining lounge. This separate reception space offers a refined, light-filled retreat, ideal for entertaining or quiet evenings.

Upstairs, four beautifully proportioned bedrooms await. The principal suite enjoys an en-suite shower room, while Bedrooms One and Two have Juliet balconies, capturing delightful views of the landscaped garden. Bedroom Two further benefits from a unique mezzanine level — perfect for a private workspace, reading nook, or creative hideaway. The self-contained annexe hosts the 4th bedroom, ensuite and separate kitchen/living Area.

Externally, the property features a generous paved driveway providing comfortable parking for a six – seven cars, alongside a large, insulated double garage with potential to incorporate additional living space if desired. To the rear, an expansive patio flows onto a south facing manicured lawns with fruit trees and shrubs, complemented by useful outbuildings for storage or hobbies.

VIEWINGS    Strictly by appointment with the Sole Selling Agent

SERVICES    All Main Services Supplied

COUNCIL TAX BAND    F - North Devon Coucil

TENURE    Freehold

EPC RATING    C

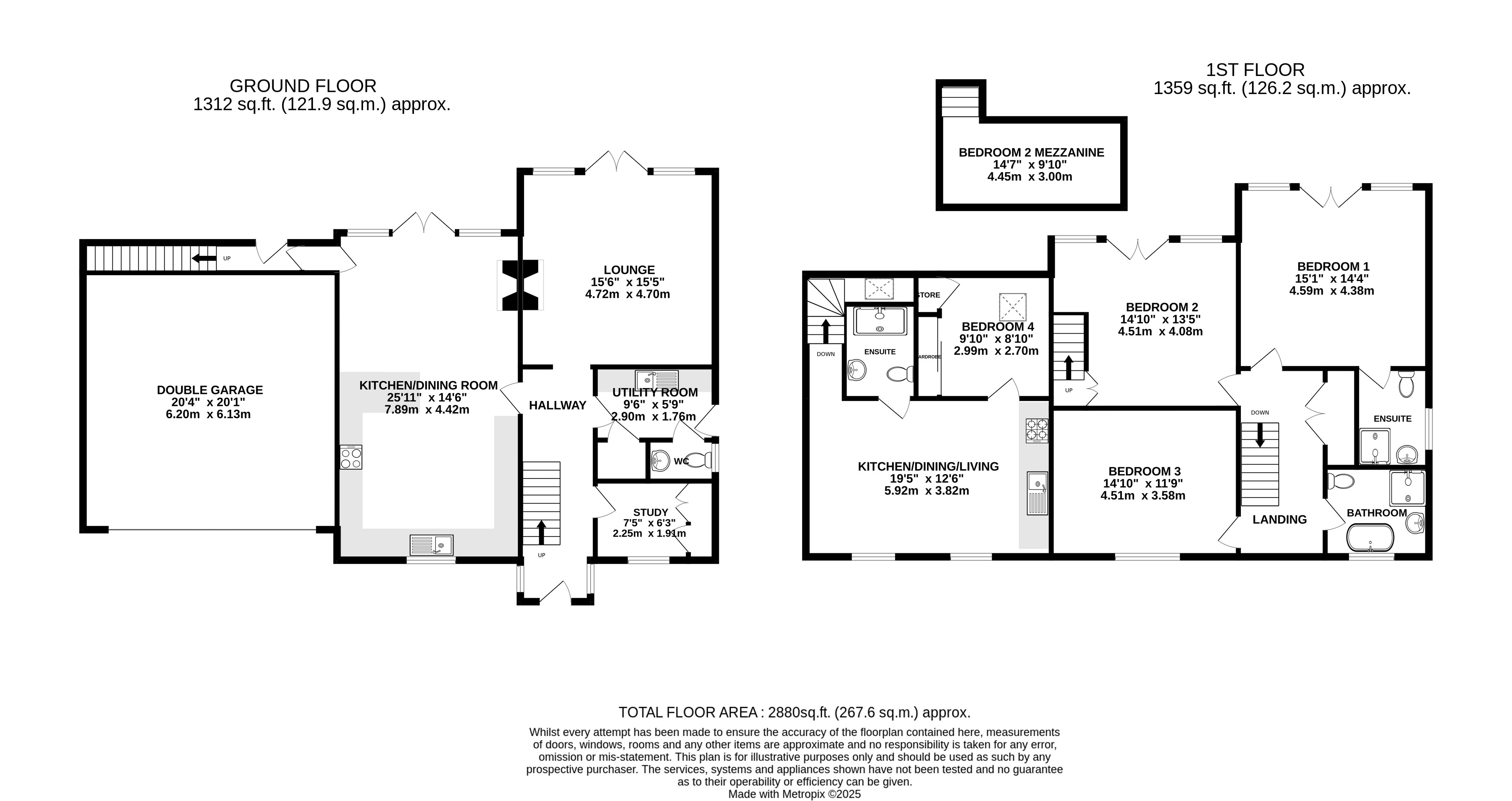
Ground Floor

Hallway

Study 7'5" x 6'3" (2.26m x 1.9m).

Utility Room 9'6" x 5'9" (2.9m x 1.75m).

Lounge 15'6" x 15'5" (4.72m x 4.7m).

Kitchen/Dining 25'11" x 14'6" (7.9m x 4.42m).

Double Garage 20'4" x 20'1" (6.2m x 6.12m).

First Floor

Bedroom 1 15'1" x 14'4" (4.6m x 4.37m).

Ensuite Bathroom

Bathroom

Bedroom 2 14'10" x 13'5" (4.52m x 4.1m).

Bedroom 2 Mezzanine 14'7" x 9'10" (4.45m x 3m).

Bedroom 3 14'10" x 11'9" (4.52m x 3.58m).

Annexe

Bedroom 4 9'10" x 8'10" (3m x 2.7m).

Ensuite Bathroom

Kitchen/Dining/Living Area 19'5" x 12'6" (5.92m x 3.8m).

From the main set of traffic lights in Braunton, with our office on your right, continue straight across heading for Knowle, Woolacombe and Ilfracombe. Upon reaching Knowle, continue past the garage on your right and then continue into the village, turning left where signposted for Wilde Restoration and the property can be found on the cul-de-sac to the left of the lane.

Important Information

  • This is a Freehold property.

Property Ref: BRA250126

Share:

Similar Properties

Higher Park Road, Braunton, Devon

4 Bedroom Detached House | Guide Price £850,000

A beautiful detached chalet-style home with versatile living and benefiting from an extensive overhaul to create a moder...

Halsinger, Braunton, Devon

6 Bedroom Detached House | Guide Price £850,000

A charming and versatile Granary conversion occupying approximately 1 acre of gardens and grounds, gently sloping with a...

Home Farm Close, Croyde, Braunton

4 Bedroom Detached House | Guide Price £830,000

An impressive, high specification family home in Croyde, with lovely views surrounding - perfectly positioned to the vil...

Willoway Lane, Braunton, Devon

5 Bedroom Detached House | Guide Price £875,000

A remarkable Grade II listed detached residence, thought to have been built in 1905 Cobblestones is one of the original...

Hammados Court, Knowle, Braunton

5 Bedroom Detached House | Guide Price £895,000

A beautifully proportioned, classical 5/6 bedroom, 3 bathroom, detached family home with outstanding versatility and ver...

Lower Park Road, Braunton, Devon

4 Bedroom Detached House | Guide Price £950,000

A stunning 4/5 Bedroom detached residence with south facing rear garden, within Lower Park Road, one of Brauntons most s...

Webbers Braunton (Braunton)

Braunton, Devon, EX33 2JF

01271 812263

How much is your home worth?

Use our short form to request a valuation of your property.

Request a Valuation

Mortgage Calculator

Amount Borrowed: £
Total Amount Repayable: £
Total Monthly Payment: £
©2026 The Guild of Property Professionals. All rights reserved. Terms and Conditions | Privacy Policy | Cookie Policy | Complaints Policy | Members Login
The Guild of Property Professionals Trading Address: 121 Park Lane, London W1K 7AG. GPEA Limited. Registered in England & Wales.  Company No: 02819824.  Registered Office Address: 2 St. Stephen's Court, St. Stephen's Road, Bournemouth, Dorset, England, BH2 6LA.  VAT Registration No: 576 8795 61
Book a Property Valuation Update Cookies Preferences