Woodlands Avenue, Talgarth, Brecon, LD3

£265,000

3 Bedroom Semi-Detached House for sale in Brecon

1 3 2
  • Three Bedrooms
  • Semi-Detached House
  • Great Family Home
  • Ready To Move Straight Into
  • Popular Residential Area
  • Parking & Garage
  • Living/Dining Room
  • Kitchen
  • Cloakroom & Bathroom
  • Conservatory

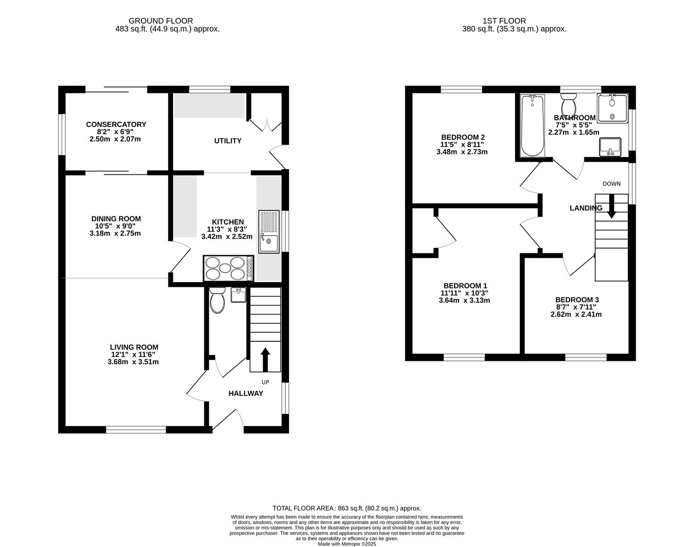
This great semi-detached house is an ideal family home in a popular location. Attractively finished and ready to move straight into, it ticks all the boxes. On the ground floor accommodation comprises of an entrance hall, convenient cloakroom and good size living/dining room. The kitchen is fitted with a range of attractive base and wall units, a range cooker. There is also a handy utility room with plumbing for a washing machine and dishwasher and a conservatory. Upstairs, there are three bedrooms and a bathroom with bath and separate shower. Outside at the front garden there is a lawned area and driveway leading to the garage. The rear garden is level and made up of a patio area, lawn and raised boarders. The property also benefits from gas central heating and uPVC double glazing.

The property is situated in a popular residential area within the charming market town of Talgarth. Known as the “Gateway to the Black Mountains, Talgarth is nestled within the Brecon Beacons National Park and offers a welcoming community, scenic surroundings and a range of local amenities including independent shops, cafés, a post office, doctors’ surgery, pharmacy and primary school. Talgarth is well regarded for its beautiful countryside walks, with the nearby Pwll-y-Wrach Nature Reserve and River Ennig providing peaceful spots to explore. The town is also home to the restored Talgarth Mill, a working watermill with a popular riverside café. For commuters, Talgarth enjoys excellent road links to the surrounding towns of Brecon, Hay-on-Wye and Abergavenny, while the A470 provides easy access further afield. The area is perfect for outdoor enthusiasts, with endless opportunities for hiking, cycling and other country pursuits right on the doorstep.

Council Tax: We have been informed that this property has been placed under council tax band ‘D’.

Important Information

  • This is a Freehold property.

Property Ref: 7754001_29395686

Share:

Similar Properties

Llys Meillion, Llyswen, Brecon, LD3

3 Bedroom Semi-Detached House | £265,000

An attractive, well presented, three bed, semi-detached family home in a quiet residential area benefitting from parking...

Libanus, Brecon, LD3

3 Bedroom Detached Bungalow | £265,000

A three bed, detached bungalow occupying a good size plot and enjoying stunning views of the Brecon Beacons.

Camden Road, Brecon, LD3

3 Bedroom Detached House | £265,000

In a sought after location is this detached, three bed house enjoying parking, a garage and a good size, south facing re...

Coedwaungar, Sennybridge, Brecon, LD3

3 Bedroom Semi-Detached Bungalow | £269,000

LOOKS CAN BE DECEIVING! Much larger than it looks from the front, this modern, three bed bungalow is ready to move strai...

Hoggan Park, Brecon, LD3

2 Bedroom Semi-Detached House | £269,500

PLOT 78 This property is the Sycamore which is a two en-suite bed, semi-detached house benefitting from parking, a garag...

Parc Tarell, Brecon, LD3

3 Bedroom End of Terrace House | £269,500

An attractively presented, three bed family home in a popular location enjoying gardens and parking.

James Dean The Estate Agents Brecon (Brecon)

Brecon, Powys, LD3 9AD

01874 624 757

How much is your home worth?

Use our short form to request a valuation of your property.

Request a Valuation

Mortgage Calculator

Amount Borrowed: £
Total Amount Repayable: £
Total Monthly Payment: £
©2026 The Guild of Property Professionals. All rights reserved. Terms and Conditions | Privacy Policy | Cookie Policy | Complaints Policy | Members Login
The Guild of Property Professionals Trading Address: 121 Park Lane, London W1K 7AG. GPEA Limited. Registered in England & Wales.  Company No: 02819824.  Registered Office Address: 2 St. Stephen's Court, St. Stephen's Road, Bournemouth, Dorset, England, BH2 6LA.  VAT Registration No: 576 8795 61
Book a Property Valuation Update Cookies Preferences