Bwlch, Brecon, LD3

£475,000
SSTC
This property listing is now SSTC

3 Bedroom Detached House for sale in Brecon

1 3 1
  • two/three double bedrooms
  • lovely detached house
  • stunning views
  • parking and garage
  • popular location just outside the village of Bwlch
  • fabulous gardens with wooded area
  • kitchen/diner with Rayburn
  • living room
  • shower room
  • character features

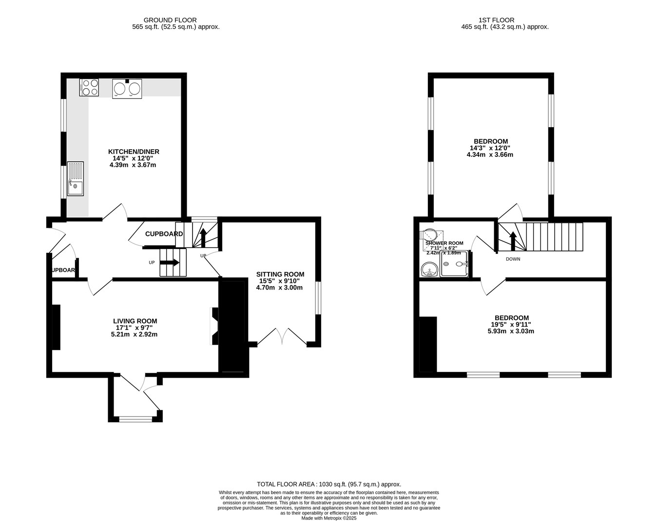
Nestled in a picturesque setting, this charming detached home enjoys breathtaking countryside views and offers a wonderful blend of character, comfort and outdoor space. Stepping inside, you are welcomed into an entrance hall which has a tiled floor and a handy understairs cupboard. The living room is at the front of the property and features a stone chimney breast wall and a brick fireplace with an open fire. The heart of the home is the kitchen/diner, where rustic charm meets practicality with a tiled floor, exposed ceiling beams, a range of base and wall cupboards, an integrated oven and hob, traditional Rayburn and plumbing for both a washing machine and dishwasher. A few steps lead up to a versatile sitting room/third bedroom, a bright and airy space with patio doors opening onto a small patio area, perfect for enjoying a morning coffee. Upstairs, there are two generous bedrooms, each offering its own unique appeal. The front bedroom boasts stunning views, the rear bedroom, bathed in natural light from four windows, has an open aspect to the underside of the roof, adding to its sense of space and character. A shower room completes the first floor. Outside, the gardens are a true delight, offering something for both keen gardeners and those who simply love to relax in nature. Off the sitting room there is a patio area with small covered area which leads to a lawned area, terraced by natural stone walls and mature shrubs and flower borders. A second patio area in the bottom corner of the garden, sits beside a gentle babbling brook, creating a peaceful sanctuary. Moving up through the garden, a decked and paved seating area offers the perfect vantage point to admire the far-reaching views of the rolling countryside and at the very top, a natural wooded area provides a wonderful space to explore and enjoy. The property also benefits from a useful stone store, garage (2.74 x 4.84) and parking.

The property is situated just outside the popular village of Bwlch, in an elevated position making the most of the breathtaking views. Within the Brecon Beacons National Park, Bwlch and has a lovely community spirit, popular pub and countless wonderful walks on your doorstep. It is only 2 miles from Llangynidr, 4 miles from Llangors, 6 miles from Crickhowell and 8 miles from Brecon. Crickhowell is a thriving town full of independent shops which consistently gets named as one of the best places to live in Wales and was voted The UK’s best high street in 2018. There are also primary and secondary schools, a doctor’s surgery, library and community leisure centre. The larger towns of Brecon and Abergavenny have a further range of shops and amenities including leisure centres and cinemas. Abergavenny also have a train station.

Council Tax: We have been informed that this property has been placed under council tax band ‘E’.

Services: Mains electricity and water. Private drainage. LPG gas central heating. Please note we have not tested the appliances, central heating or services.

Important Information

  • This is a Freehold property.

Property Ref: 7754001_28631730

Share:

Similar Properties

Llanelieu, Talgarth, Brecon, LD3

3 Bedroom Detached House | £475,000

A spacious, three bed, detached family home situated in a wonderful rural location and enjoying a large, pretty garden.

Dan Y Wern, Pwllgloyw, Brecon, LD3

4 Bedroom Detached House | £475,000

Enjoying superb countryside views is this immaculately presented and spacious, four bed, detached family home benefittin...

Camden Road, Brecon, LD3

4 Bedroom Terraced House | £475,000

In a convenient location is this lovely, Grade II listed, period town hose with lots of original features. Enjoying spac...

Hoggan Park, Brecon, LD3

4 Bedroom Detached House | £495,000

An immaculately presented, detached, modern four bed house enjoying parking, a double garage and good size gardens. Read...

Sennybridge, Brecon, LD3

3 Bedroom Detached House | £499,500

An attractively finished, three bed, detached house with parking, garage, good size wrap around gardens and delightful c...

Beacons Park, Brecon, LD3

5 Bedroom Detached House | £500,000

Set in a peaceful residential neighbourhood is this spacious, attractively presented, five bed, detached house enjoying...

James Dean The Estate Agents Brecon (Brecon)

Brecon, Powys, LD3 9AD

01874 624 757

How much is your home worth?

Use our short form to request a valuation of your property.

Request a Valuation

Mortgage Calculator

Amount Borrowed: £
Total Amount Repayable: £
Total Monthly Payment: £
©2026 The Guild of Property Professionals. All rights reserved. Terms and Conditions | Privacy Policy | Cookie Policy | Complaints Policy | Members Login
The Guild of Property Professionals Trading Address: 121 Park Lane, London W1K 7AG. GPEA Limited. Registered in England & Wales.  Company No: 02819824.  Registered Office Address: 2 St. Stephen's Court, St. Stephen's Road, Bournemouth, Dorset, England, BH2 6LA.  VAT Registration No: 576 8795 61
Book a Property Valuation Update Cookies Preferences