Cathedine, Brecon, LD3

£500,000

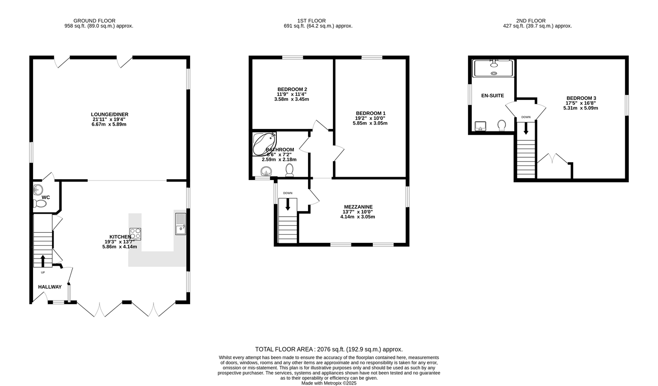
3 Bedroom Detached House for sale in Brecon

1 3 2
  • detached barn conversion
  • superbly finished and ready to move straight in to
  • open plan kitchen/living/dining room
  • cloakroom, bathroom and en-suite
  • stunning countryside views
  • parking
  • select courtyard development just outside the village of Bwlch
  • gardens
  • three bedrooms
  • office/4th bedroom

Enjoying a stunning countryside setting, this superb detached barn conversion combines character, space, and style, perfect for families or those looking to entertain. Attractively presented, the ground floor features a spacious open-plan layout with oak and tiled flooring, a well-equipped kitchen offering a range of cupboard space, a breakfast bar and integrated oven and hob. Two sets of glazed patio doors flood space with natural light and open onto a paved patio creating seamless indoor-outdoor living. A cloakroom and rear hall complete the ground floor. Upstairs, there are three bedrooms, including a striking mezzanine room that overlooks the kitchen and boasts a full-length window capturing far-reaching views, ideal as a home office, additional living space or extra bedroom if required. There is also a family bathroom on this level. The master bedroom occupies the top floor and is a delightful retreat featuring exposed roof timbers, built-in storage and an en-suite shower room. Outside, the enclosed paved patio off the kitchen provides a low-maintenance space for al fresco dining and relaxing and an additional grassed garden area, backing onto open farmland, offers further outdoor enjoyment with panoramic rural views.

Pendre Courtyard is a former farm that has been superbly developed and converted into six dwellings facing an attractive courtyard. It is situated in some glorious countryside 1 mile outside the popular village of Bwlch. It is also 3 miles from Llangors, 6.5 miles from Crickhowell and 9 miles from Brecon. Crickhowell enjoys a town centre full of independent shops creating a thriving high street and community spirit. There are also primary and secondary schools, doctor’s surgery and library. Brecon is a traditional market town, the centre of the Brecon Beacons National Park. It provides a wider range of shops and amenities which include a cinema, theatre, leisure centre, library and golf course. It also has several good primary schools, a secondary school, college of further education and Christ College a private boarding school for boys and girls aged 7-18.

Services: Mains electricity and water. Private drainage which is shared with the neighbouring properties. It is a Klargester septic tank. LPG gas central heating. Please note we have not tested the appliances, central heating or services.

Council Tax: We have been informed that this property has been placed under council tax band ‘G’.

Please note: The drive, courtyard, parking area and septic tank are shared with the neighbouring properties. Each property pays £70 per month towards communal expeses plus an element towards a sinking fund for extra items/expenditure. All matters are managed by the residents of Pendre Courtyard.

Important Information

  • This is a Freehold property.

Property Ref: 7754001_28848271

Share:

Similar Properties

Llanfihangel Talyllyn, Brecon, LD3

4 Bedroom Detached Bungalow | £500,000

In a quiet village location, a spacious, detached, four bed bungalow enjoying a fab kitchen/dining/family room, parking,...

Sennybridge, Brecon, LD3

3 Bedroom Detached House | £499,500

An attractively finished, three bed, detached house with parking, garage, good size wrap around gardens and delightful c...

Hoggan Park, Brecon, LD3

4 Bedroom Detached House | £495,000

An immaculately presented, detached, modern four bed house enjoying parking, a double garage and good size gardens. Read...

Sennybridge, Brecon, LD3

4 Bedroom Detached House | £535,000

A delightful, spacious, four bed family home nestled in some glorious countryside and enjoying parking, a double garage,...

Mount Street, Brecon, LD3

7 Bedroom End of Terrace House | £540,000

In a convenient location is this impressive, Grade II listed, seven bed property which has been tastefully modernised an...

Cradoc Road, Brecon, LD3

4 Bedroom Link Detached House | £550,000

Enjoying some of the best VIEWS of the BEACONS, is this spacious, four bed family home with large lawned gardens, parkin...

James Dean The Estate Agents Brecon (Brecon)

Brecon, Powys, LD3 9AD

01874 624 757

How much is your home worth?

Use our short form to request a valuation of your property.

Request a Valuation

Mortgage Calculator

Amount Borrowed: £
Total Amount Repayable: £
Total Monthly Payment: £
©2026 The Guild of Property Professionals. All rights reserved. Terms and Conditions | Privacy Policy | Cookie Policy | Complaints Policy | Members Login
The Guild of Property Professionals Trading Address: 121 Park Lane, London W1K 7AG. GPEA Limited. Registered in England & Wales.  Company No: 02819824.  Registered Office Address: 2 St. Stephen's Court, St. Stephen's Road, Bournemouth, Dorset, England, BH2 6LA.  VAT Registration No: 576 8795 61
Book a Property Valuation Update Cookies Preferences