Church Lane, Doddinghurst, Brentwood

Guide Price
£775,000
SSTC
This property listing is now SSTC

4 Bedroom Detached House for sale in Brentwood

2 4 2
  • THREE / FOUR SPACIOUS BEDROOMS
  • DETACHED CHALET STYLE HOME
  • 25'5 X 11' MASTER BEDROOM
  • FIRST FLOOR SHOWER ROOM & GROUND FLOOR BATHROOM
  • OPEN PLAN LIVING ROOM / DINING ROOM
  • 26'10 KITCHEN / BREAKFAST ROOM
  • BEAUTIFULLY KEPT REAR GARDEN
  • LARGE DRIVEWAY & DETACHED GARAGE

With a beautifully landscaped rear garden, and a large driveway and detached garage providing excellent parking, we are delighted to bring to market this fabulously maintained, three/four-bedroom chalet style property. 'Park View' is a fabulous family home with over 1800 sq.ft of accommodation; located in the heart of Doddinghurst Village, you will find that the property is within walking distance of all local amenities, including Doddinghurst Infant and Primary schools, and bus routes into Brentwood Town Centre, where you have high street shopping and access to mainline train service into London.

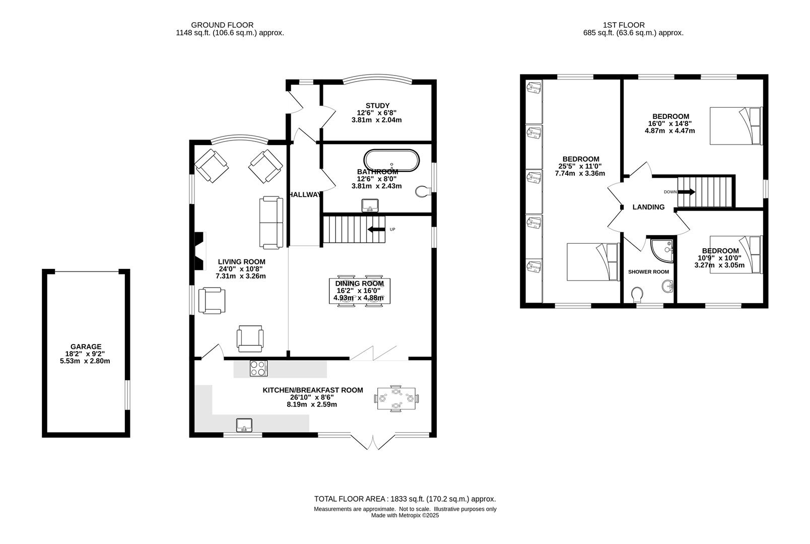
Low rise steps lead to the front door where you have access into a spacious porch which offers further doors into the study and into the hallway. The study is a lovely bright room with a bay window to the front aspect, ideal for anyone looking for a peaceful space in which to work from home away from the main living area. The study could also serve as a ground floor bedroom if required. The hallway gives direct access into a large dining room with tiled flooring, stairs rising to the first floor and access via bi-folding doors into the kitchen/breakfast room. The dining room is open plan to a spacious living room with beamed ceiling and a lovely red-brick fireplace as a nice feature. There is a bay window to the front aspect and two further windows to the side allowing for plenty of natural lighting into this room. A door from the living room gives additional access into the kitchen/breakfast room. The kitchen/breakfast room has been formed from a ground floor extension and runs the whole width of the property; it is a lovely space, with French doors which open onto the patio in the rear garden, creating the perfect place for entertaining family or friends. Stylish, cream wall and base units with quartz work surface provide excellent storage options, along with a wall mounted plate rack and double 'Butler' sink. Appliances include an integrated double oven, hob with extractor above and a dishwasher and there is further space available for any additional free-standing appliances. Finishing the accommodation on this level is a good-sized family bathroom with large flagstone floor tiling, half-height panelled walls and a lovely free-standing bath, wash hand basin set into a vanity unit and a close coupled w.c.

Rising to the first floor, a spacious landing provides doors to all rooms. The large master bedroom measures 25'5 in length with windows to the front and rear aspects and an extensive range of built-in storage which runs the whole length of the room. Viewers will be quick to note that this room was originally two rooms and still has both original doors in place, and with the re-installation of the partition wall it could easily be transformed back into two spacious rooms. There are two further bedrooms on this level, both doubles and with ample space for freestanding of fitted furniture. Finally, there is a fully tiled shower room, fitted with a corner shower cubicle, wash hand basin set into vanity unit and close coupled w.c.

At the rear of the property, you have a beautifully kept garden with neat lawn featuring a pretty, 'bird cage' pergola to the centre, and being edged with well stocked flowerbeds. To the immediate rear of the property there is a spacious paved patio providing a lovely spot to sit and enjoy the views of the garden, perhaps with your morning coffee or a glass of wine, and there is a further seating area to the rear of the garage and to at bottom of the garden. At the front, a large loose stone driveway provides excellent off-street parking for several vehicles; the driveway leads to the side of the property, where behind iron gates you have a single, detached garage. There is pedestrian access through to the rear from both sides of the property.

Porch - Doors into study and into the hallway.

Study - 3.81m x 2.03m (12'6 x 6'8) - Bay window to front aspect.

Hallway - The hallway opens into the dining room and there is a door which gives access into the ground floor bathroom.

Bathroom - 3.81m x 2.44m (12'6 x 8) - Beautifully styled with large, flagstone tiled flooring and half-height panelled walls. There is a free standing bath with up and over tap to the side, a wash hand basin set into a vanity unit and a close coupled w.c.

Dining Room - 4.62m x 4.88m (15'2 x 16') - Stairs to first floor. Tiled flooring. Bi-folding doors which open to the kitchen/breakfast room. Dining room is open plan to :

Living Room - 7.62m x 3.25m (25' x 10'8) - Bay window to the front aspect and two further windows to the side. Feature, red-brick fireplace as a focal point. Further door into kitchen / breakfast room.

Kitchen / Breakfast Room - 8.18m x 2.59m (26'10 x 8'6) - Tiled flooring. Fitted in a lovely range of cream wall and base units with quartz work surface over. Integrated appliance include: double oven, hob with extractor above and dishwasher and there is ample space for further appliances. Wall mounted plate rack and double Butler sink.

First Floor Landing - Doors to all rooms.

Master Bedroom - 7.75m x 4.47m (25'5 x 14'8) - Extensive range of built-in wardrobes. Windows to front and rear aspects. Viewers will note that this room was originally two rooms and still has both original doors in place, and with the re-installation of the partition wall it could very easily be transformed back into two spacious rooms.

Bedroom - 4.88m x 4.47m (16' x 14'8) - Two windows to the front aspect.

Bedroom - 3.28m x 3.05m (10'9 x 10') - Window to rear aspect.

Shower Room - Fully tiled. Corner shower cubicle, wash hand basin and close coupled w.c.

Exterior - Rear Garden - Beautifully maintained with neat lawn with pretty 'bird cage' pergola and well-stocked borders. Large paved patio to the immediate rear of the property and further seating area at the rear of the garage and to the bottom of the garden. Side pedestrian access through to the front on both sides of the property.

Exterior - Front Garden - Large, loose stone driveway providing excellent off street parking. Driveway leads to the side where you have access to :

Detached Garage - 5.54m x 2.79m (18'2 x 9'2) -

Agents Note - Fee Disclosure - As part of the service we offer we may recommend ancillary services to you which we believe may help you with your property transaction. We wish to make you aware, that should you decide to use these services we will receive a referral fee. For full and detailed information please visit 'terms and conditions' on our website www.keithashton.co.uk

Property Ref: 34095620

Share:

Similar Properties

Church Lane, Doddinghurst, Brentwood

4 Bedroom Detached House | Offers in excess of £775,000

Situated in a prominent position within the village of Doddinghurst is this beautifully maintained family home which off...

** SIGNATURE HOMES ** Ongar Road, Stondon Massey, Brentwood

4 Bedroom Semi-Detached House | Offers in excess of £775,000

We are delighted to bring to market this delightful GDII listed, four-bedroom, semi-detached property, full of character...

Plovers Mead, Wyatts Green, Brentwood

4 Bedroom Detached House | Guide Price £775,000

This spacious family home is perfectly located, situated in a quiet and popular cul-de-sac in the village of Wyatts Gree...

Park Meadow, Doddinghurst Village, Brentwood.

4 Bedroom Detached House | Offers in excess of £780,000

In a cul-de-sac setting overlooking a pleasant greensward and backing onto open fields is this extended and wonderfully...

Plot 22 The Audley, Stocks Lane, Kelvedon Hatch CM15 0BN

4 Bedroom Detached House | £800,000

**MOVE FOR FREE - NO FEES, JUT KEYS!!** ** PLOT 22 - THE AUDLEY ** 4 Bedroom detached house - 1670 sq.ft of accommodatio...

Peartree Close, Doddinghurst

5 Bedroom Detached House | Offers in excess of £800,000

We are delighted to bring to market this beautifully presented five, double bedroom detached family home located in a qu...

Keith Ashton Estates - Village Office (Kelvedon Hatch)

38 Blackmore Road, Kelvedon Hatch, Essex, CM15 0AT

01277 375757

How much is your home worth?

Use our short form to request a valuation of your property.

Request a Valuation

Mortgage Calculator

Amount Borrowed: £
Total Amount Repayable: £
Total Monthly Payment: £
©2026 The Guild of Property Professionals. All rights reserved. Terms and Conditions | Privacy Policy | Cookie Policy | Complaints Policy | Members Login
The Guild of Property Professionals Trading Address: 121 Park Lane, London W1K 7AG. GPEA Limited. Registered in England & Wales.  Company No: 02819824.  Registered Office Address: 2 St. Stephen's Court, St. Stephen's Road, Bournemouth, Dorset, England, BH2 6LA.  VAT Registration No: 576 8795 61
Book a Property Valuation Update Cookies Preferences