Harpers Lane, Doddinghurst, Brentwood

Guide Price
£650,000
SSTC
This property listing is now SSTC

3 Bedroom Semi-Detached Bungalow for sale in Brentwood

2 3 1
  • THREE BEDROOM BUNGALOW
  • 70' WEST FACING REAR GARDEN
  • WELL MAINTAINED THROUGHOUT
  • LARGE KITCHEN / DINING AREA
  • TWO RECEPTION ROOMS
  • FOUR PIECE FAMILY BATHROOM
  • UTILITY ROOM WITH W.C.
  • AMPLE OFF STREET PARKING

Coming to the market for the first time in 30 years is this exceedingly well-maintained semi-detached bungalow located in a desirable turning in the heart of Doddinghurst Village. This three bedroom property offers in the region of 1166 sq.ft of accommodation, and benefits from two receptions, a good-sized kitchen/diner, utility and a beautifully kept rear garden which is WEST facing and measures approx. 70' in length. Doddinghurst village is five miles north of Brentwood Town Centre and mainline train station and offers a range of amenities, including well-regarded Doddinghurst Infant and Junior school, local village hall and church and a parade of shops including the popular Kervan Kitchen restaurant. This home is offered with no on-going chain and no requirement for probate.

Entering the property into a long hallway that leads directly to a spacious kitchen/diner at the rear of the property. The kitchen has been fitted in a good-range of wall and base units with granite work surfaces over and includes integrated dishwasher, electric oven and induction hob with extractor above. The kitchen is open plan to the second reception which has French door opening onto the garden, there is a further door in the kitchen which also gives access to the rear garden. To the front of the property there is a sizeable lounge with feature brick feature fireplace with log burning stove and a bay window overlooking the front garden.

Bedrooms one and two are both doubles and have fitted storage/wardrobes. There is a third single bedroom which could be utilized as a study for those looking to work from home. The property has a family bathroom which is fully tiled and has been fitted in a four piece suite, and includes a luxury roll top bath, separate corner shower cubicle, w.c and wash hand basin. In addition, there is a utility room which has a w.c. and is fitted in a range of wall and base units, including sink unit and has plumbing and space for washing machine.

Externally, the property has a beautifully maintained rear garden which is west facing and measures in the region of 70'. A good sized patio area leads into neat lawns, and has flower borders with mature trees and shrubs. To the bottom of the garden is a lovely summer house which measures 16'5 x 9'7. There is ample off street parking to the front of the property on your own block paved driveway, with the potential to create further spaces if required. A gated, side pedestrian access leads down the side of the bungalow to the rear garden.

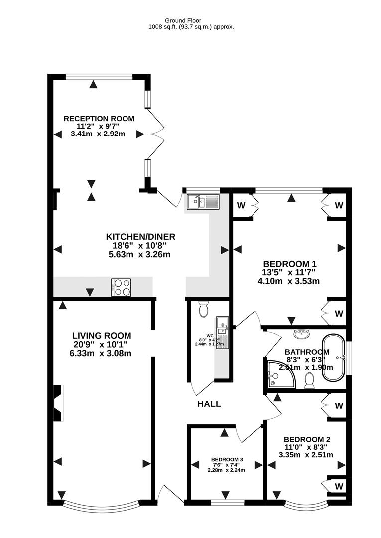
Entrance Hall - With wooden flooring throughout, leading into the kitchen/dining area. The loft is located on the right hand turning of hallway before Bedroom One.

Living Room - 6.32m x 3.07m (20'9 x 10'1) - With brick feature fireplace and working log burner. Bay window to the front.

Downstairs Wc / Utility Area - 2.44m x 1.27m (8' x 4'2) - With wooden flooring, a range of wall and base units, currently has a freestanding washing machine. WC and sink and drainer.

Kitchen / Diner - 5.64m x 3.25m (18'6 x 10'8) - Kitchen is fully fitted with a wide range of wall and base units, Granite work surfaces, integrated dishwasher, electric oven and induction hob, with overhead extractor. Door to garden. Open plan to :

Dining Area / Reception Room - 3.40m x 2.92m (11'2 x 9'7) - Large window to rear and French doors onto garden.

Bedroom One - 3.96m;1.52m x 3.53m (13;5 x 11'7) - Overlooking the garden with a range of fitted cupboards and wardrobes.

Bedroom Two - 3.35m x 2.51m (11' x 8'3) - With bay window to front aspect and fitted cupboards.

Bedroom Three - 2.29m x 2.24m (7'6 x 7'4) - Single room which could lend itself to a Study area.

Family Bathroom - 2.51m x 1.91m (8'3 x 6'3) - With a four piece suite, to include a luxury roll top bath and separate corner shower cubicle.

West Facing Rear Garden - approx 21.34m in length (approx 70' in length) - WEST facing garden, with mature trees, part paved and turfed with water connected. There is side access to the front.

Summer House / Outbuiilding - 5.00m x 2.92m (16'5 x 9'7) - The summer house, at the rear has power and light connected.

Front Garden - Ample room to park, with the potential to create further spaces if required,

Agents Note - Fee Disclosure - As part of the service we offer we may recommend ancillary services to you which we believe may help you with your property transaction. We wish to make you aware, that should you decide to use these services we will receive a referral fee. For full and detailed information please visit 'terms and conditions' on our website www.keithashton.co.uk

Property Ref: 59223_31503339

Share:

Similar Properties

Mayflower Way, Ongar

4 Bedroom Semi-Detached House | Guide Price £650,000

We are delighted to bring to market this extended, four-bedroom, semi-detached family home in Mayflower Way which is con...

St. Andrews Way, Stanford-Le-Hope

4 Bedroom Detached House | Offers in excess of £650,000

Having been built in 2017 by the reputable David Wilson Homes and with remaining NHBC building warranty we are delighted...

Church Lane, Doddinghurst, Brentwood

3 Bedroom Detached Bungalow | Offers in excess of £650,000

***NO ONWARD CHAIN*** Set back from the road and sitting on a good-sized plot is this spacious, detached freehold bungal...

Banters Lane, Great Leighs, Chelmsford

4 Bedroom Detached House | Guide Price £659,999

Located in the heart of Great Leighs, Chelmsford and being situated in a stunning location surrounded by fields and beau...

Plot 2 - Banters Lane, Great Leighs, Chelmsford

4 Bedroom Detached House | Guide Price £659,999

Located in the heart of Great Leighs, Chelmsford and being situated in a stunning location surrounded by fields and beau...

Stocksfield, Kelvedon Hatch, Brentwood

5 Bedroom Detached House | Guide Price £665,000

Benefitting from a double storey extension to the rear, we are delighted to bring to market this FIVE bedroom, two recep...

Keith Ashton Estates - Village Office (Kelvedon Hatch)

38 Blackmore Road, Kelvedon Hatch, Essex, CM15 0AT

01277 375757

How much is your home worth?

Use our short form to request a valuation of your property.

Request a Valuation

Mortgage Calculator

Amount Borrowed: £
Total Amount Repayable: £
Total Monthly Payment: £
©2025 The Guild of Property Professionals. All rights reserved. Terms and Conditions | Privacy Policy | Cookie Policy | Complaints Policy | Members Login
The Guild of Property Professionals Trading Address: 121 Park Lane, London W1K 7AG. GPEA Limited. Registered in England & Wales.  Company No: 02819824.  Registered Office Address: 2 St. Stephen's Court, St. Stephen's Road, Bournemouth, Dorset, England, BH2 6LA.  VAT Registration No: 576 8795 61
Book a Property Valuation Update Cookies Preferences