Hook End Road, Hook End, Brentwood

Guide Price
£650,000
SSTC
This property listing is now SSTC

4 Bedroom Detached House for sale in Brentwood

2 4 2
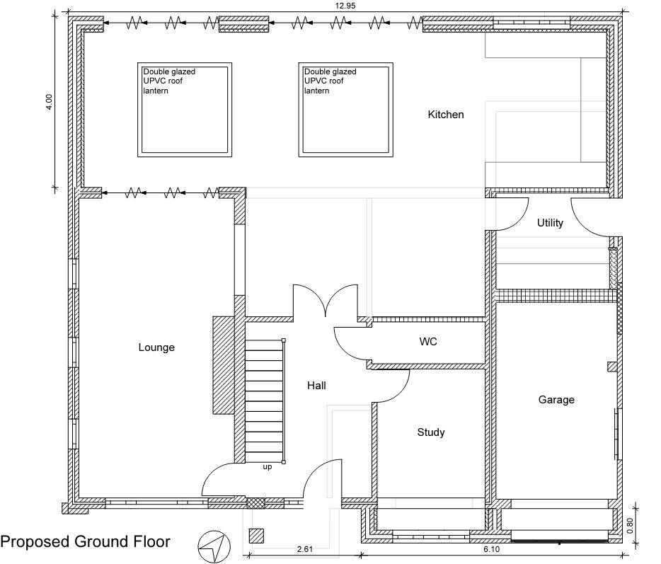
  • DEVELOPMENT OPPORTUNITY
  • PLANNING PASSED - 23/00885/HHA
  • CREATE YOUR PERFECT FAMILY HOME
  • LOCATED IN HOOK END
  • PARKING FOR SEVERAL VEHICLES
  • NO ONWARD CHAIN
  • 50' GARDEN
  • DESIRABLE LOCATION

Situated in the centre of Hook End is this detached chalet style home which comes to the market with full planning permission to create an excellent four bedroom, three reception room detached family home. Some works have already been started on extending the ground floor giving someone the opportunity to create a superb home to their own specification. Further benefits include a good sized rear garden with concrete base for a large outbuilding and parking for several vehicles to the front.

Property Ref: 33059974

Share:

Similar Properties

Harpers Lane, Doddinghurst, Brentwood

3 Bedroom Semi-Detached Bungalow | Guide Price £650,000

Coming to the market for the first time in 30 years is this exceedingly well-maintained semi-detached bungalow located i...

Church Lane, Doddinghurst, Brentwood

3 Bedroom Detached Bungalow | Offers in excess of £650,000

***NO ONWARD CHAIN*** Set back from the road and sitting on a good-sized plot is this spacious, detached freehold bungal...

Glovers Field, Kelvedon Hatch

4 Bedroom Semi-Detached House | Guide Price £650,000

In the ever popular turning of 'Glovers Field', in the semi-rural village of Kelvedon Hatch is this well-presented, four...

Stocksfield, Kelvedon Hatch, Brentwood

5 Bedroom Detached House | Guide Price £665,000

Benefitting from a double storey extension to the rear, we are delighted to bring to market this FIVE bedroom, two recep...

Ongar Road, Stondon Massey, Brentwood

4 Bedroom Detached House | Offers in region of £670,000

Deceptively spacious with almost 1700 sq.ft of living space is this extended, four double bedroom, detached chalet style...

Jericho Place, Blackmore, Ingatestone

3 Bedroom Detached Bungalow | Guide Price £670,000

Offered for sale is this three, double bedroom, detached bungalow situated in a quiet cul-de-sac in the heart of Blackmo...

Keith Ashton Estates - Village Office (Kelvedon Hatch)

38 Blackmore Road, Kelvedon Hatch, Essex, CM15 0AT

01277 375757

How much is your home worth?

Use our short form to request a valuation of your property.

Request a Valuation

Mortgage Calculator

Amount Borrowed: £
Total Amount Repayable: £
Total Monthly Payment: £
©2026 The Guild of Property Professionals. All rights reserved. Terms and Conditions | Privacy Policy | Cookie Policy | Complaints Policy | Members Login
The Guild of Property Professionals Trading Address: 121 Park Lane, London W1K 7AG. GPEA Limited. Registered in England & Wales.  Company No: 02819824.  Registered Office Address: 2 St. Stephen's Court, St. Stephen's Road, Bournemouth, Dorset, England, BH2 6LA.  VAT Registration No: 576 8795 61
Book a Property Valuation Update Cookies Preferences