Hook End Road, Hook End, Brentwood

Guide Price
£725,000
SSTC
This property listing is now SSTC

2 Bedroom Detached Bungalow for sale in Brentwood

1 2 1
  • TWO DOUBLE BEDROOM DETACHED BUNGALOW
  • VIEWS TO THE FRONT AND REAR
  • SPACIOUS LIVING ROOM
  • GARDEN ROOM / CONSERVATORY
  • RE-FITTED KITCHEN
  • LARGE PLOT (0.32 ACRE STLS)
  • EXCELLENT POTENTIAL FOR IMPROVEMENT & EXTENSION
  • DOUBLE GARAGE WITH WORKSHOP TO REAR

With pleasant farmland views to the front and rear elevations and with excellent potential for improvement and extension (stpp), we are delighted to bring to market 'West Bays', a detached, two double bedroom, bungalow which is set well back from the road and has a beautifully mature rear garden, measuring in the region of 280' (stls). The property further benefits from a double-length, detached garage with a spacious workshop attached, along with a separate storage shed with double doors, suitable for housing a sit on lawn mower. 'West Bays' is within easy reach of all local amenities with Doddinghurst & Blackmore villages in close proximity, and for those looking for High Street shopping and mainline train services, Brentwood & Shenfield Towns are a short drive of around 5 miles. Offered with VACANT POSSESSION.

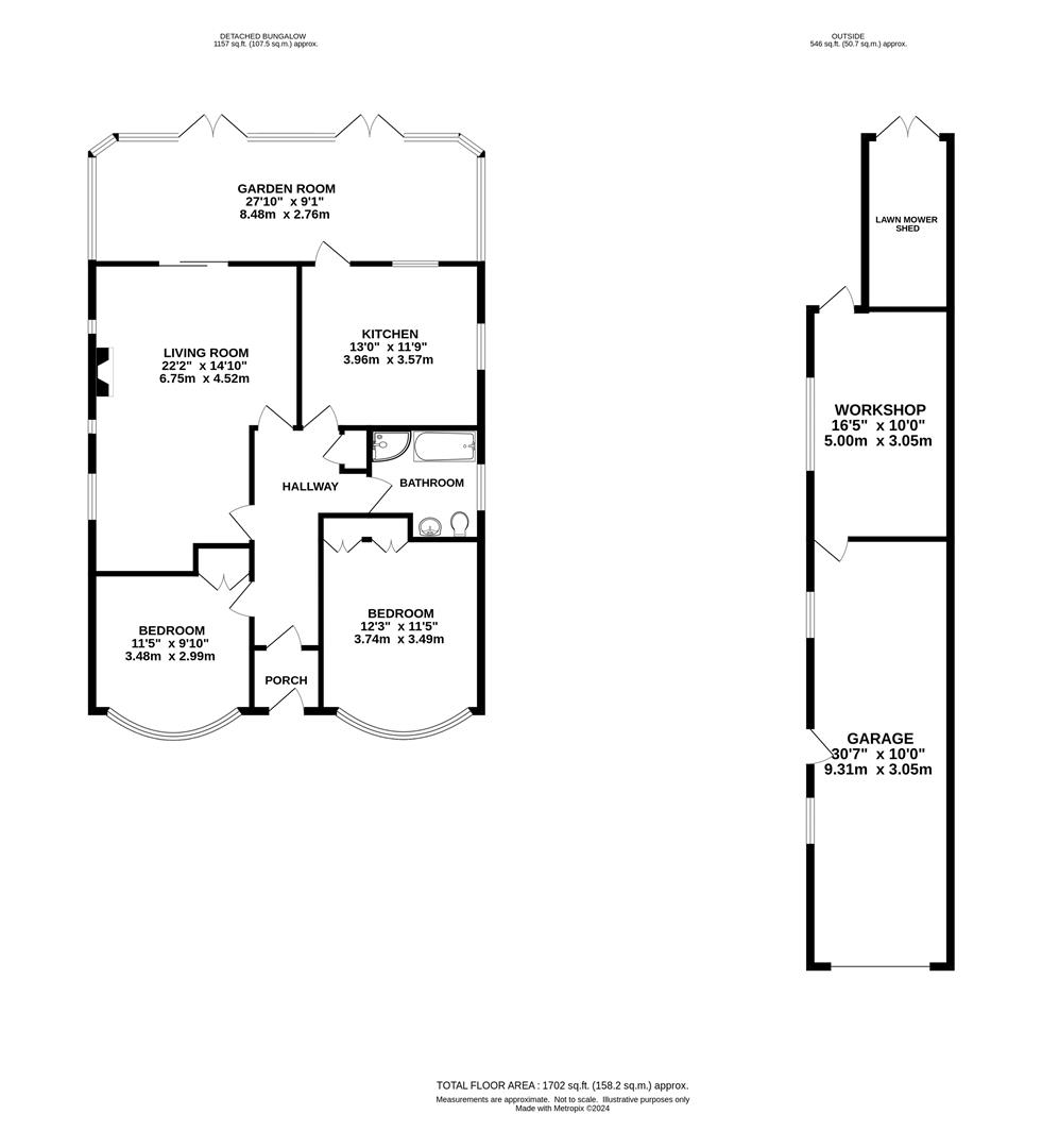
An enclosed porch which sits centrally at the front of the property opens into a spacious hallway where there are doors to all rooms, along with a handy storage / airing cupboard. The property has two DOUBLE bedrooms, both with large bay windows to the front elevation offering excellent natural lighting and a pleasant outlook. Both rooms have built-in storage. The bathroom is fully tiled and of a good size, offering a panelled bath with handheld shower attachment and a wash hand basin and w.c set into a fitted unit. There is also a separate shower cubicle.

Viewers will note that the kitchen has been re-fitted with a range of wood effect wall and base units with wooden work surface over and glass display cabinets. A gas hob with extractor has been fitted and there is further space for integrated appliances. A large living room has ample space for separate dining and living areas. There is a red brick fireplace with tiled hearth, windows to the side aspect including two feature-stained glass windows and patio doors which open into the garden room. The garden room is a large room, spanning the width of the property and measuring 27'10 wide, there are windows to rear and side and two sets of French doors which open directly onto the patio space in the rear garden.

Of particular note, is the beautiful rear garden, which is well-stocked with mature shrubs and trees and measures in the region of 280' in length (stls). The garden commences with a paved patio with the remainder being laid to neat lawn, where at the bottom of the garden you have lovely far-reaching views over fields. To the front of the property a sweeping driveway offers ample parking options. The driveway continues to side of the property where you have access to a detached, double length garage with a spacious, attached workshop at the rear. There is also a separate lawn mower storage room with double doors.

Entrance Porch - Door into :

Spacious Hallway - Storage cupboard and doors to all rooms.

Bedroom One - 3.71m x 3.48m (12'2 x 11'5) - Fitted cupboards. Bay window to front aspect.

Bedroom Two - 3.48m x 3.00m (11'5 x 9'10) - Fitted cupboard. Bay window to front aspect.

Living Room - 6.76m x 4.52m (22'2 x 14'10) - Windows to side and 2 x feature stained glass windows. Red brick fireplace with tiled hearth. Sliding doors into garden room.

Bathroom - Fully tiled bathroom with in a white suite, comprising : panelled bath, wash hand basin and w.c. set into vanity unit. Separate shower cubicle.

Kitchen - 3.96m x 3.58m (13' x 11'9) - The kitchen has been re-fitted in a range of wood effect wall and base units with wooden work surfaces over and glass display cabinets. There is a gas hob with extractor above and space for integrated and free standing appliances. Door into :

Garden Room - 8.48m x 2.77m (27'10 x 9'1) - Tiled flooring. Windows to side and rear and two set of French doors giving access to the garden.

Exterior- Rear Garden - Long garden with mature trees and plants and vegetable beds. The garden commences with a paved patio with the remainder being laid to lawn. Glass greenhouse and timber framed potting shed. Views at the bottom of the garden over fields.

Double Length Garage - 9.32m x 3.05m (30'7 x 10') - Up and over door to the front. Pedestrian door to side into rear garden. There is a pedestrian door to the rear of the garage which give access to the workshop.

Workshop - 5.33m x 3.05m (17'6 x 10') - Further door into garden. Window to side.

Storage / Lawn Mower Shed - Double doors give access.

Exterior - Front Garden - Sweeping driveway allowing excellent parking for several cars. Driveway extends to the side of the property where you have access into the garage.

Views over fields to the front elevation.

Agents Note - Fee Disclosure - As part of the service we offer we may recommend ancillary services to you which we believe may help you with your property transaction. We wish to make you aware, that should you decide to use these services we will receive a referral fee. For full and detailed information please visit 'terms and conditions' on our website www.keithashton.co.uk

Property Ref: 59223_33266143

Share:

Similar Properties

Orchard Piece, Blackmore

4 Bedroom Semi-Detached House | Guide Price £725,000

With NO ONWARD CHAIN and spacious living accommodation, we are delighted to bring to market this extended four-bedroom,...

(The White House) Willow Close, Doddinghurst, Brentwood

5 Bedroom Semi-Detached House | Guide Price £725,000

Situated on the outskirts of Doddinghurst Village a lovely corner plot at the end of a quiet cul-de-sac is this beautifu...

Glen Hazel, Hook End, Brentwood

4 Bedroom Detached House | Guide Price £725,000

Located at the end of a quiet cul-de-sac in Hook End, with stunning views over farmland to the rear of the property is t...

Ongar Road, Kelvedon Hatch, Brentwood

4 Bedroom Semi-Detached House | Offers in excess of £734,000

We are pleased to bring to market this four-bedroom, semi-detached character property which offers space of around 4699...

Spring Pond Meadow, Hook End, Brentwood

4 Bedroom Detached House | Guide Price £735,000

Situated in a pleasant cul-de-sac and set well back from the road is this four bedroom chalet style bungalow which enjoy...

Plot 32 The Mulberry, Stocks Lane, Kelvedon Hatch CM15 0BN

4 Bedroom Detached House | £740,000

No Fees, Just Keys!! Move for Free in 2026 - Stamp duty, Legal and Moving Fees Covered *** PLOT 32 - THE MULBERRY - SPRI...

Keith Ashton Estates - Village Office (Kelvedon Hatch)

38 Blackmore Road, Kelvedon Hatch, Essex, CM15 0AT

01277 375757

How much is your home worth?

Use our short form to request a valuation of your property.

Request a Valuation

Mortgage Calculator

Amount Borrowed: £
Total Amount Repayable: £
Total Monthly Payment: £
©2026 The Guild of Property Professionals. All rights reserved. Terms and Conditions | Privacy Policy | Cookie Policy | Complaints Policy | Members Login
The Guild of Property Professionals Trading Address: 121 Park Lane, London W1K 7AG. GPEA Limited. Registered in England & Wales.  Company No: 02819824.  Registered Office Address: 2 St. Stephen's Court, St. Stephen's Road, Bournemouth, Dorset, England, BH2 6LA.  VAT Registration No: 576 8795 61
Book a Property Valuation Update Cookies Preferences