Colet Road, Hutton, Brentwood

£400,000
SSTC
This property listing is now SSTC

3 Bedroom End of Terrace House for sale in Brentwood

1 3 1
  • THREE BEDROOM FAMILY HOME
  • SPACIOUS KITCHEN/DINER
  • OFF STREET PARKING
  • END OF TERRACE
  • BEAUTIFUL REAR GARDEN
  • SHENFIELD HIGH SCHOOL CATCHMENT
  • CLOSE TO LOCAL AMENITIES
  • SOUGHT AFTER LOCATION

Set in the sought-after area of Hutton, Brentwood, this delightful end-of-terrace home on Colet Road offers an inviting mix of space and convenience. This home enjoys a prime position in a peaceful, family-friendly neighbourhood, just moments from local amenities, excellent schools, and convenient transport links. Hutton is celebrated for its strong community feel and attractive surroundings, making it a wonderful place to call home.

Whether you're a first-time buyer, a growing family, or simply looking for a fresh start in a fantastic location, this property offers a fantastic opportunity. Early viewing is highly recommended to truly appreciate all it has to offer.

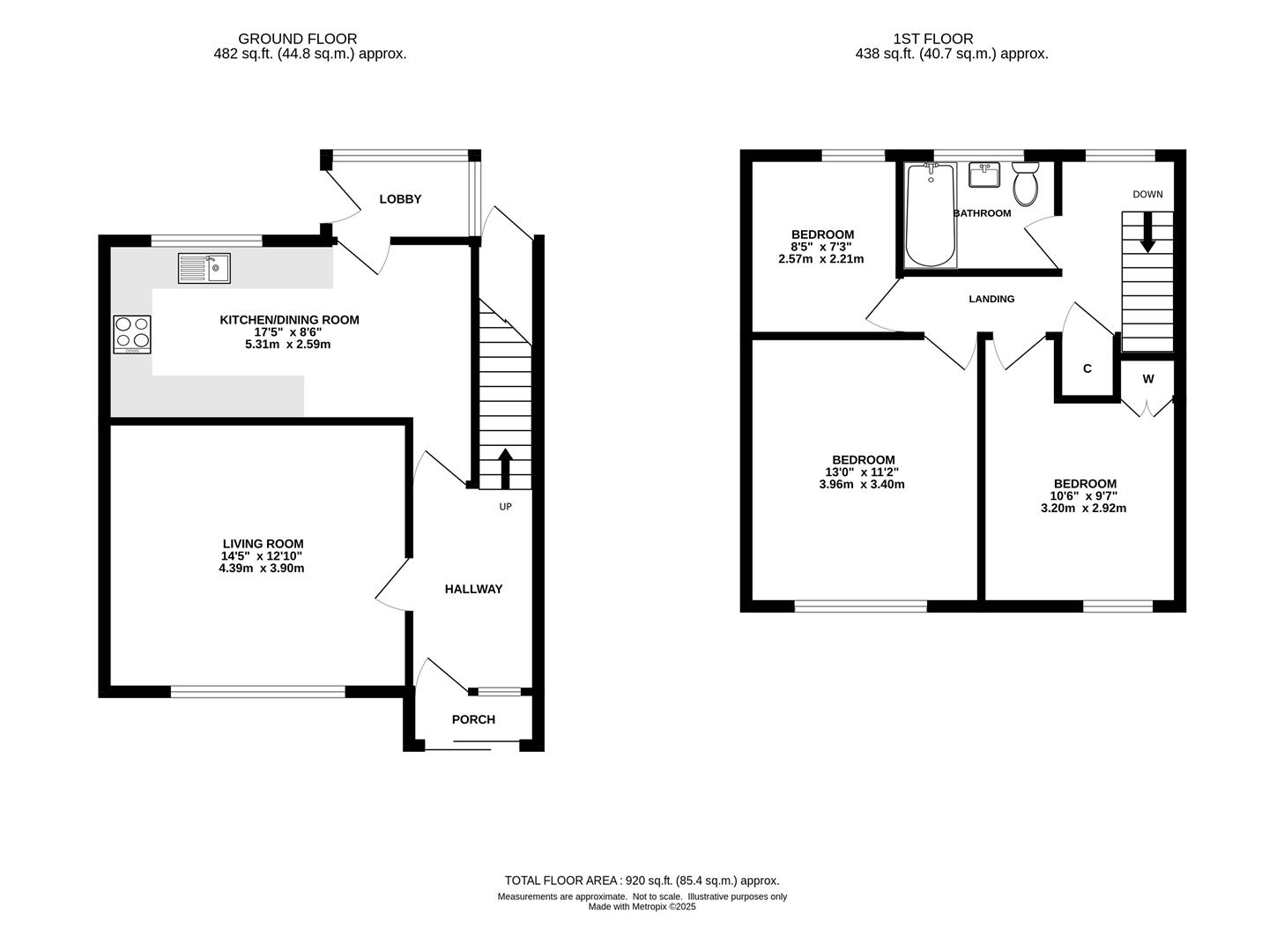
Upon entering the property, a covered porch opens into a central hallway, creating a welcoming flow into the main living areas. At the front of the home, the spacious and light-filled living room offers an ideal setting for both relaxation and entertaining. Its generous proportions easily accommodate a range of furniture arrangements, while a large window floods the room with natural light. To the rear, the kitchen/diner spans the full width of the house, offering a perfect space for everyday living and ample room for both cooking and dining, it also provides direct access to a rear lobby-ideal for everyday convenience and storage.

Upstairs, the home boasts three well-proportioned bedrooms, each offering a comfortable retreat with plenty of potential for personalisation. The primary bedroom, the largest of the three, is positioned at the front and offers plenty of space for wardrobes and additional furnishings. A second double bedroom also lies to the front, while the third, a well-proportioned single room, enjoys views over the rear garden. A centrally located family bathroom serves all three bedrooms, offering practicality and ease of access.

Externally, the rear garden is a charming and well-established outdoor space. It begins with a generous paved patio-perfect for al fresco dining or unwinding after a long day. The garden has been thoughtfully landscaped, featuring paved pathways, mature planting, and vibrant flowerbeds that enhance the appeal of this end-terrace home. To the front, a block-paved driveway provides off-street parking for two vehicles.

Porch -

Entrance Hall -

Living Room - 4.39 x 3.90 (14'4" x 12'9") -

Kitchen/Dining Room - 5.31 x 2.59 (17'5" x 8'5") -

Lobby -

Landing -

Bedroom One - 3.96 x 3.40 (12'11" x 11'1") -

Bedroom Two - 3.20 x 2.92 (10'5" x 9'6") -

Bedroom Three - 2.57 x 2.21 (8'5" x 7'3") -

Bathroom -

Agents Note - As part of the service we offer we may recommend ancillary services to you which we believe may help you with your property transaction. We wish to make you aware, that should you decide to use these services we will receive a referral fee. For full and detailed information please visit 'terms and conditions' on our website www.keithashton.co.uk

Property Ref: 8226_33815326

Share:

Similar Properties

Sussex Road, Warley, Brentwood

2 Bedroom House | Guide Price £400,000

**GUIDE PRICE £400,000 - £425,000** Perfect for a first-time buyer, investor or commuter is this two, double bedroom end...

Burnell Walk, Great Warley, Brentwood

3 Bedroom End of Terrace House | £400,000

We are delighted to bring to market this three-bedroom family home, offered with no onward chain and conveniently locate...

Britannia Road, Warley, Brentwood

2 Bedroom Terraced House | Guide Price £400,000

We are pleased to present this well-maintained mid-terrace home, nestled within the popular Brackenwood Development. Off...

Sussex Road, Warley, Brentwood

2 Bedroom Terraced House | £415,000

We are delighted to bring to market this superbly presented, two bedroom cottage. Ideally located within close proximity...

Sussex Road, Warley, Brentwood

2 Bedroom Terraced House | £415,000

We are delighted to bring to market this charming, two-bedroom terraced cottage beautifully presented throughout. The gr...

Pilgrims Close, Pilgrims Hatch, Brentwood

2 Bedroom Semi-Detached Bungalow | £415,000

Nestled in the charming area of Pilgrims Hatch, Brentwood, this delightful semi-detached bungalow offers a perfect blend...

Keith Ashton Estates - Brentwood Office (Brentwood)

26 St. Thomas Road, Brentwood, Essex, CM14 4DB

01277 260858

How much is your home worth?

Use our short form to request a valuation of your property.

Request a Valuation

Mortgage Calculator

Amount Borrowed: £
Total Amount Repayable: £
Total Monthly Payment: £
©2025 The Guild of Property Professionals. All rights reserved. Terms and Conditions | Privacy Policy | Cookie Policy | Complaints Policy | Members Login
The Guild of Property Professionals Trading Address: 121 Park Lane, London W1K 7AG. GPEA Limited. Registered in England & Wales.  Company No: 02819824.  Registered Office Address: 2 St. Stephen's Court, St. Stephen's Road, Bournemouth, Dorset, England, BH2 6LA.  VAT Registration No: 576 8795 61
Book a Property Valuation Update Cookies Preferences