Lascelles Close, Pilgrims Hatch, Brentwood

Guide Price
£375,000
SSTC
This property listing is now SSTC

3 Bedroom End of Terrace House for sale in Brentwood

1 3 1
  • THREE BEDROOM FAMILY HOME
  • SPACIOUS LOUNGE
  • DETACHED GARAGE
  • OVERLOOKING THE GREEN
  • CUL-DE-SAC LOCATION
  • LOCAL SHOPS & SERVICES NEARBY
  • SHORT DRIVE TO BRENTWOOD
  • POPULAR PILGRIMS HATCH AREA

**Guide Price £375,000 - £400,000** We are pleased to present this three-bedroom end-of-terrace home, ideally situated in a quiet cul-de-sac overlooking a charming green in the sought-after area of Pilgrims Hatch. Conveniently located within close reach of local shops and amenities, and just a short drive from Brentwood High Street and train station, this property offers fantastic potential to become your next family home.

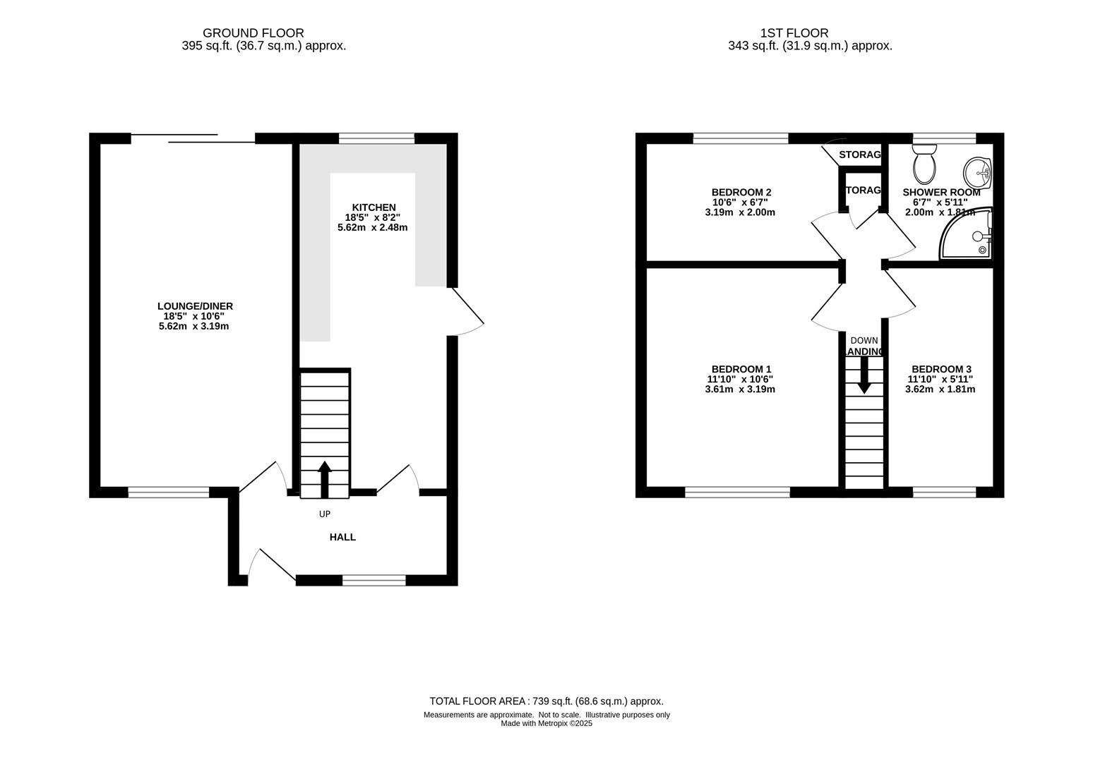
The internal layout begins with a welcoming hallway leading into a spacious lounge, bathed in natural light from large sliding doors that open onto the rear garden. The generously sized kitchen is well-equipped with eye and base level units, ample worktop space, and room for a dining table and chairs. An external door provides convenient access to the side and rear of the property.

Ascending to the first floor, the principal bedroom is a spacious double, positioned at the front of the home. Two further well-proportioned bedrooms and a modern shower room complete the internal accommodation.

Outside, the rear garden features a block-paved seating area, perfect for outdoor relaxation, with the remainder laid to lawn and bordered by mature shrubs for added privacy. A back gate leads out to the detached garage which is accessed via a service road. To the front, a small garden enhances the property's kerb appeal.

Hallway -

Lounge/Diner - 5.62 x 3.19 (18'5" x 10'5") -

Kitchen - 5.62 x 2.48 (18'5" x 8'1") -

Bedroom One - 3.61 x 3.19 (11'10" x 10'5") -

Bedroom Two - 3.19 x 2.00 (10'5" x 6'6") -

Bedroom Three - 3.62 x 1.81 (11'10" x 5'11") -

Shower Room - 2.00 x 1.81 (6'6" x 5'11") -

Agents Note - As part of the service we offer we may recommend ancillary services to you which we believe may help you with your property transaction. We wish to make you aware, that should you decide to use these services we will receive a referral fee. For full and detailed information please visit 'terms and conditions' on our website www.keithashton.co.uk

Property Ref: 33668623

Share:

Similar Properties

Cedar Road, Hutton, Brentwood

2 Bedroom Bungalow | Offers in excess of £375,000

We bring to market this two-bedroom semi-detached bungalow, nestled in a tranquil cul-de-sac within a sought-after area...

Heather Close, Pilgrims Hatch, Brentwood

3 Bedroom Terraced House | £375,000

Offered with No Onward Chain, we are pleased to bring to market this three-bedroom, mid-terrace home, located in the sou...

Heather Close, Pilgrims Hatch, Brentwood

3 Bedroom Terraced House | Guide Price £375,000

**Guide Price £375,000 - £400,000** We are delighted to present this well-maintained three-bedroom mid-terrace home, sit...

Balmoral Road, Pilgrims Hatch, Brentwood

2 Bedroom Terraced House | £385,000

We are pleased to bring to market this two-bedroom mid-terrace home, ideally located in the ever-popular Pilgrims Hatch...

Wendover Gardens, Brentwood

2 Bedroom End of Terrace House | £390,000

We are delighted to bring to market this two-bedroom end-terrace property, nestled in a quiet cul-de-sac location and of...

Thorndon Park, Ingrave, Brentwood

2 Bedroom Cottage | Guide Price £399,995

**Guide Price; £399,995 - £415,000** Nestled in the picturesque Thorndon Park area of Ingrave, Brentwood, this charming...

Keith Ashton Estates - Brentwood Office (Brentwood)

26 St. Thomas Road, Brentwood, Essex, CM14 4DB

01277 260858

How much is your home worth?

Use our short form to request a valuation of your property.

Request a Valuation

Mortgage Calculator

Amount Borrowed: £
Total Amount Repayable: £
Total Monthly Payment: £
©2026 The Guild of Property Professionals. All rights reserved. Terms and Conditions | Privacy Policy | Cookie Policy | Complaints Policy | Members Login
The Guild of Property Professionals Trading Address: 121 Park Lane, London W1K 7AG. GPEA Limited. Registered in England & Wales.  Company No: 02819824.  Registered Office Address: 2 St. Stephen's Court, St. Stephen's Road, Bournemouth, Dorset, England, BH2 6LA.  VAT Registration No: 576 8795 61
Book a Property Valuation Update Cookies Preferences