Ongar Road, Stondon Massey, Brentwood

Offers in excess of
£700,000
SSTC
This property listing is now SSTC

4 Bedroom Detached House for sale in Brentwood

2 4 2
  • FOUR DOUBLE BEDROOMS
  • DETACHED FAMILY HOUSE
  • 1817 SQ.FT OF ACCOMMODATION
  • TWO RECEPTION ROOMS
  • EN-SUITE SHOWER ROOM & DRESSING ROOM
  • KITCHEN / FAMILY ROOM & SEPARATE UTILITY
  • LARGE CONSERVATORY
  • PLENTY OF OFF STREET PARKING

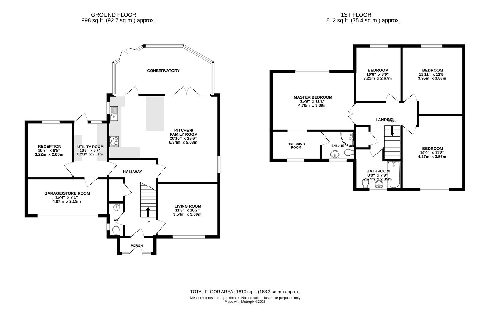
With a pleasant outlook over the village green and duck pond is this four, double bedroom detached family home offering over 1800 sq.ft of accommodation. The property has been well-maintained throughout and includes two receptions, a superb kitchen/family room with separate utility and a large master bedroom which benefits from an en-suite shower and walk-in dressing room. Viewers will note that the original garage has been converted, but there is still excellent parking, with space enough for five vehicles on a block paved driveway to the front and a loose stone driveway to the side of the property. Blackmore, Doddinghurst and Kelvedon Hatch Villages are all within easy reach and provide great local amenities, including schooling, whilst Brentwood and Shenfield Town Centres are just a short drive away, where you will find high street shopping, well-regarded secondary schools and mainline train services into London.

Commencing with a porch sitting centrally at the front of the property you have access into a bright and spacious hallway with stairs rising to the first floor, a large storage cupboard and access into a ground floor cloakroom, which has been fitted in a modern white suite. To the right-hand side of the hallway there is access into the living room, this is a bright room decorated in neutral tones, and the perfect room for relaxing at the end of the day. There is a wonderful kitchen/family room which offers a great space for entertaining or for the family to get together, you have access from this room into the large conservatory at the rear. The kitchen area is fitted in a range of modern light grey, matte finish wall and base units with contrasting work surface over. There is a breakfast bar providing additional storage space and seating on one side for four people. Integrated appliances include double oven, hob with extractor above and there is further space for additional appliances in a separate utility room off the hallway. As previously mentioned, the original garage has been converted to create a spacious storage room, additional reception and the utility room. The utility room has been fitted in a range of white gloss wall and base units, including a sink unit and provides ample space for additional appliance, and there is further access into the garden from this room.

A spacious first floor landing has doors to all rooms and a large linen/airing cupboard. You will four double bedrooms, with the large master bedroom benefitting from a walk-in dressing room which provides access into a fully tiled en-suite shower room. Finishing the accommodation on this level is a fully tiled family bathroom, which includes tile panelled bath with handheld shower attachment, wash hand basin and w.c.

Externally, you have a well-maintained garden to the rear which commences with a paved patio with steps up to a neat lawn where there is a further paved patio, providing ample space for patio furniture. There is side access through to the front where you have plenty of parking. A block paved driveway to the front of the garage and a loose stone driveway to the side of the property provide off street parking for 5 vehicles. The garage has been converted with the front part being a large storage room which can be access from the front drive via an up and over door, and there is a pedestrian door to the rear of the storage room which gives access into the utility room.

Entrance Hall - Stairs to first floor. Storage cupboard. Door to :

Ground Floor Cloakroom - Fitted in a modern white suite, comprising wash hand basin and w.c.

Living Room - 3.56m x 3.10m (11'8 x 10'2) - Window to front aspect.

Kitchen / Family Room - 3.05m x 5.03m (max measurements) (10'20 x 16'6 (ma - Fitted with modern light grey, matte finish wall and base units with contrasting work surface over. Breakfast bar with seating to one side for four chairs. Double oven, and hob with extractor above. Double doors and a further single door into :

Conservatory - Windows to all sides and French doors into garden.

Garage Converted To Create : -

Utility Room - 3.23m x 2.01m (10'7 x 6'7) - White gloss wall and base units, including sink unit. Door into garden. Doors into further reception room and storage room

Reception Room - 3.23m x 2.67m (10'7 x 8'9) - Window to rear aspect.

Store Room - 4.67m x 2.16m (15'4 x 7'1) -

First Floor Landing - Large storage cupboard. Doors to all rooms.

Master Bedroom - 4.78m x 3.63m (15'8 x 11'11) - Window to rear aspect. Archway through to :

Walk-In Dressing Room - Door to :

En-Suite Shower Room - Fully tiled. Comprising : corner shower cubicle, wash hand basin and w.c.

Bedroom - 4.27m x 3.56m (14' x 11'8) - Window to front aspect.

Bedroom - 3.94m x 3.56m (12'11 x 11'8) - Window to rear aspect.

Bedroom - 3.23m x 2.67m (10'7 x 8'9) - Window to rear aspect.

Family Bathroom - 2.67m x 2.36m (8'9 x 7'9) - Window to front aspect. Panelled bath with shower attachment, wash hand basin and w.c.

Exterior - Rear Garden - Paved patio with steps up to neat lawn where you have a further paved patio, seating area. Side pedestrian access through to the front garden. Timber shed to the rear of the garden.

Exterior - Front Garden - Block paved driveway to front with further loose stone driveway to the side, providing ample off street parking. Viewers should note that the original garage has been converted and now consists of a storage room, separate utility room and additional reception room.

Agents Note - Fee Disclosure - As part of the service we offer we may recommend ancillary services to you which we believe may help you with your property transaction. We wish to make you aware, that should you decide to use these services we will receive a referral fee. For full and detailed information please visit 'terms and conditions' on our website www.keithashton.co.uk

Property Ref: 59223_33843846

Share:

Similar Properties

Deal Tree Close, Hook End, Brentwood

3 Bedroom Detached House | Offers in excess of £700,000

Situated in Deal Tree Close which is a very private cul-de-sac located off the Blackmore Road, Hook End, is this three,...

Peartree Close, Doddinghurst, Brentwood

4 Bedroom Detached House | Offers in excess of £700,000

Situated in a pleasant cul-de-sac in the semi-rural village of Doddinghurst, is this four-bedroom detached family home w...

Bakers Meadow, Doddinghurst, Brentwood, Essex. CM15 0QL

3 Bedroom Semi-Detached House | Guide Price £700,000

Situated in the quiet turning of Bakers Meadow in the popular semi-rural village of Doddinghurst which offers an excelle...

Glen Hazel, Hook End, Brentwood

4 Bedroom Detached House | Guide Price £725,000

Located at the end of a quiet cul-de-sac in Hook End, with stunning views over farmland to the rear of the property is t...

Orchard Piece, Blackmore

4 Bedroom Semi-Detached House | Guide Price £725,000

With NO ONWARD CHAIN and spacious living accommodation, we are delighted to bring to market this extended four-bedroom,...

(The White House) Willow Close, Doddinghurst, Brentwood

5 Bedroom Semi-Detached House | Guide Price £725,000

Situated on the outskirts of Doddinghurst Village a lovely corner plot at the end of a quiet cul-de-sac is this beautifu...

Keith Ashton Estates - Village Office (Kelvedon Hatch)

38 Blackmore Road, Kelvedon Hatch, Essex, CM15 0AT

01277 375757

How much is your home worth?

Use our short form to request a valuation of your property.

Request a Valuation

Mortgage Calculator

Amount Borrowed: £
Total Amount Repayable: £
Total Monthly Payment: £
©2025 The Guild of Property Professionals. All rights reserved. Terms and Conditions | Privacy Policy | Cookie Policy | Complaints Policy | Members Login
The Guild of Property Professionals Trading Address: 121 Park Lane, London W1K 7AG. GPEA Limited. Registered in England & Wales.  Company No: 02819824.  Registered Office Address: 2 St. Stephen's Court, St. Stephen's Road, Bournemouth, Dorset, England, BH2 6LA.  VAT Registration No: 576 8795 61
Book a Property Valuation Update Cookies Preferences