Ongar Road, Stondon Massey, Brentwood

Offers in excess of
£625,000

3 Bedroom Semi-Detached House for sale in Brentwood

3 3 1
  • EXTENDED SEMI-DETACHED FAMILY HOME
  • THREE DOUBLE BEDROOMS
  • OPEN PLAN KITCHEN / DINING / SITTING ROOM
  • SEPARATE, SPACIOUS LIVING ROOM
  • STUDY
  • GROUND FLOOR CLOAKROOM
  • REAR GARDEN IN EXCESS OF 150'

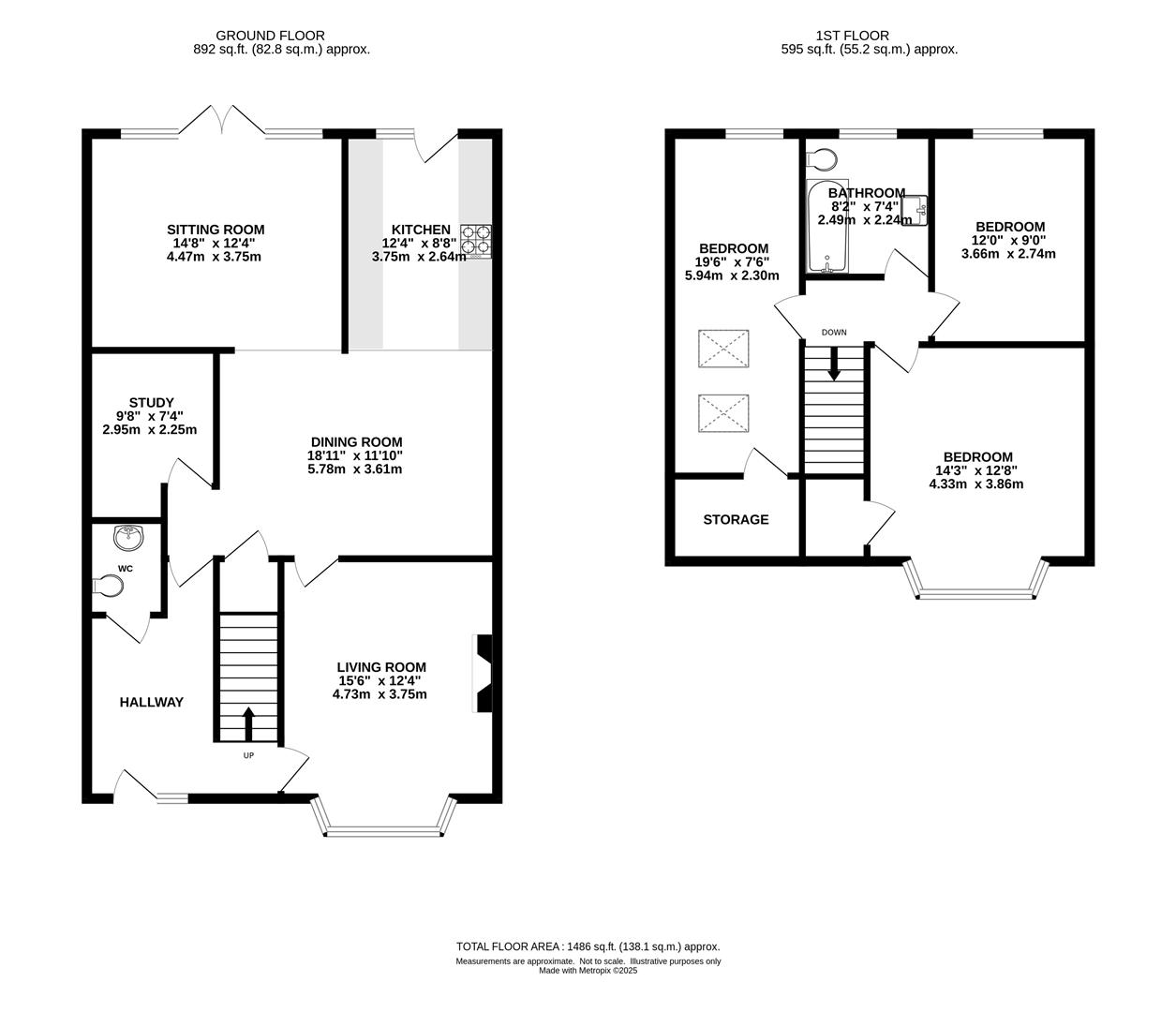
With a garden in excess of 150' and excellent off-street parking, we are delighted to bring to market this attractive, three, double bedroom, semi detached house which has had a second-floor side extension and to the rear on the ground floor level. 'Fredelpha' offers over 1400 sq.ft of living space which includes a lovely open plan dining room, kitchen and sitting room, with a separate spacious living room and a study. This lovely home is perfectly situated in the heart of Stondon Massey and is within easy reach of the nearby villages of Blackmore, Doddinghurst and Kelvedon Hatch with a great range of local amenities. The property is also just a short drive into Brentwood and Shenfield Town Centre, where you will find high street shopping, well-regarded secondary schools and mainline train services into London.

Steps up to the front door give access into a spacious and bright hallway where there are stairs rising to the first floor and doors into the living room, ground floor cloakroom and into the dining room. The hallway is solid wood flooring which extends into the living room, dining room and sitting room, with an attractive tiled floor laid to the kitchen area. The living room which sits at the front of the property is a lovely room with a large bay window allowing for lots of natural lighting, and there is an exposed brick fireplace as a nice focal point with floating shelving to either side. Walking through into the dining room, there is a sense of space with an open plan layout to the kitchen and sitting room. Although open plan, each area is a clearly defined space. The kitchen is fitted in a range of high gloss wall and base units, with base units that extend into the dining room. There is ample space for free standing appliances, including space for a Range style cooker. You have access into the rear garden from both the kitchen and the sitting room. The sitting room is a comfortable space with French doors opening immediately onto a raised decking area, which allows you to enjoy views down the garden. Furthermore, on this level you have a study, ideal for applicants looking for a space in which to work from home.

Rising to the first floor you have three double bedrooms and a family bathroom. The master bedroom is a lovely room, again with a large bay window to the front allowing for plenty of natural lighting. In addition to a large built-in cupboard, there is ample space for free standing or fitted furniture. As previously mentioned, the property has been extended to the side over the ground floor level, and this has allowed for a further, spacious bedroom of some 19'6 in length, with a large walk-in storage cupboard to one end. Finishing the accommodation on this level is a fully tiled family bathroom with L-shaped bath with shower over, wash hand basin and w.c.

The rear garden measures over 150' in length, commencing with a raised decking area accessible from the sitting room and kitchen, with steps down to a further decking area. The remainder of the garden is largely laid to lawn, and there is an area to the bottom of the garden, which is laid to bark, and where you have a timber framed storage shed. To the front is a large, loose stone driveway provides parking for several vehicles.

Entrance Hall - Stairs to first floor. Doors to ground floor cloakroom, living room and dining room.

Ground Floor Cloakroom - Modern suite, comprising wash hand basin and w.c.

Living Room - 4.72m x 3.76m (15'6 x 12'4) - Bay window to front aspect. Exposed brick fireplace with shelving either side.

Study - 2.95m x 2.24m (9'8 x 7'4) -

Dining Room - 5.77m x 3.61m (18'11 x 11'10) - Open plan to kitchen and sitting room.

Kitchen - 3.76m x 2.64m (12'4 x 8'8) - Door to rear garden. Fitted in a range of gloss wall and base units with space for appliances, including Range style cooker. Base units extend into the dining room.

Sitting Room - 4.47m x 3.76m (14'8 x 12'4) - French doors opening onto garden.

First Floor Landing - Doors to all rooms.

Master Bedroom - 4.32m x 3.86m (14'2 x 12'8) - Large bay window to front aspect. Built-in storage cupboard.

Bedroom - 3.66m x 2.74m (12' x 9') - Window to rear aspect.

Bedroom - 5.94m x 2.31m (19'6 x 7'7) - Window to rear and two Velux roof lights. Door to built-in cupboard.

Family Bathroom - 2.49m x 2.24m (8'2 x 7'4) - Fully tiled. L-Shaped bath with shower over. Wash hand basin and close coupled w.c.

Exterior - Rear Garden - in excess of 45.72m (stls) (in excess of 150' (stl - Commencing with a decked patio, with steps down to further decking area. Remainder is predominantly laid to lawn with a section to the bottom of the garden being laid to bark. Timber shed to remain.

Exterior - Front Garden - Loose stone driveway providing parking for several vehicles

Agents Note - Fee Disclosure - As part of the service we offer we may recommend ancillary services to you which we believe may help you with your property transaction. We wish to make you aware, that should you decide to use these services we will receive a referral fee. For full and detailed information please visit 'terms and conditions' on our website www.keithashton.co.uk

Property Ref: 59223_34157978

Share:

Similar Properties

Glen Hazel, Hook End, Brentwood

4 Bedroom Semi-Detached House | Offers in excess of £625,000

Located at the end of a desirable cul-de-sac in Hook End is this well-maintained and extended, four-bedroom semi-detache...

Peartree Lane, Doddinghurst, Brentwood

4 Bedroom Detached House | Guide Price £625,000

Located in 'Peartree Lane', a sought after turning in the popular Village of Doddinghurst is this four-bedroom detached...

Church Lane, Doddinghurst, Brentwood

5 Bedroom Semi-Detached House | Guide Price £625,000

Within walking distance of all local amenities including bus routes into Brentwood Town centre is this extended family h...

Hook End Road, Hook End, Brentwood

4 Bedroom Detached House | Offers in excess of £635,000

Located in the semi-rural village of Hook End, approximately 5 miles from Brentwood Town centre with all its amenities a...

Hook End Road, Hook End

3 Bedroom Semi-Detached House | Guide Price £635,000

We are delighted to bring to market this well presented, three double bedroom chalet style home with large open plan kit...

Harpers Lane, Doddinghurst, Brentwood

3 Bedroom Semi-Detached Bungalow | Guide Price £650,000

Coming to the market for the first time in 30 years is this exceedingly well-maintained semi-detached bungalow located i...

Keith Ashton Estates - Village Office (Kelvedon Hatch)

38 Blackmore Road, Kelvedon Hatch, Essex, CM15 0AT

01277 375757

How much is your home worth?

Use our short form to request a valuation of your property.

Request a Valuation

Mortgage Calculator

Amount Borrowed: £
Total Amount Repayable: £
Total Monthly Payment: £
©2025 The Guild of Property Professionals. All rights reserved. Terms and Conditions | Privacy Policy | Cookie Policy | Complaints Policy | Members Login
The Guild of Property Professionals Trading Address: 121 Park Lane, London W1K 7AG. GPEA Limited. Registered in England & Wales.  Company No: 02819824.  Registered Office Address: 2 St. Stephen's Court, St. Stephen's Road, Bournemouth, Dorset, England, BH2 6LA.  VAT Registration No: 576 8795 61
Book a Property Valuation Update Cookies Preferences