Junction Road, Warley, Brentwood

£490,000
SSTC
This property listing is now SSTC

2 Bedroom Semi-Detached House for sale in Brentwood

2 2 2
  • ATTRACTIVE PERIOD COTTAGE
  • MODERN FITTED KITCHEN
  • TWO BEDROOMS
  • 0.3 MILES TO BRENTWOOD STATION

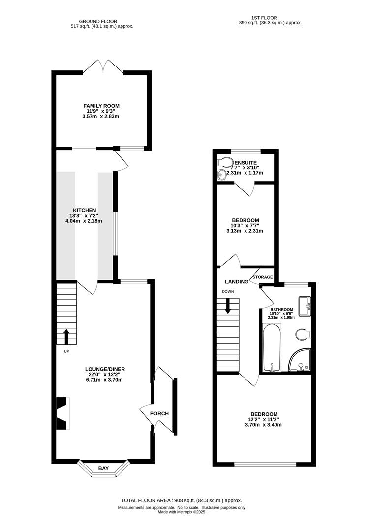
We are delighted to bring to market this attractive semi-detached period cottage, located in the highly sought-after Warley area of Brentwood. Beautifully presented throughout, the property features a spacious lounge/diner, modern fitted kitchen, and a versatile family room. Upstairs offers two well-proportioned bedrooms, a contemporary family bathroom, and an en-suite WC.

Ideally situated just 0.3 miles from Brentwood Station, the home provides excellent transport links into London and beyond, while Brentwood High Street is less than a mile away, offering a range of shops, bars and restaurants. NO ONWARD CHAIN.

The internal layout begins with a welcoming porch that leads into a spacious front lounge/diner, complete with an attractive feature fireplace. The well-appointed kitchen offers a range of eye and base-level units, ample worktop space, and window above the sink. Beyond the kitchen, a versatile family room provides an additional living area, enhanced by elegant French doors with side lights that open onto the garden.

Ascending to the first floor, the principal bedroom sits at the front of the property and is a generous double. To the rear is a further bedroom benefiting from an ensuite WC, while a modern four-piece family bathroom completes the accommodation.

Externally, the westerly facing rear garden begins with a paved patio, extending to a lawned area bordered by mature shrubs and trees, creating a private and tranquil space. To the front, a block-paved driveway provides convenient off-street parking. NO ONWARD CHAIN.

Porch -

Lounge/Diner - 6.71 x 3.70 (22'0" x 12'1") -

Kitchen - 4.04 x 2.18 (13'3" x 7'1") -

Family Room - 3.57 x 2.83 (11'8" x 9'3") -

Landing -

Bedroom One - 3.70 x 3.40 (12'1" x 11'1") -

Bedroom Two - 3.13 x 2.31 (10'3" x 7'6") -

Ensuite - 2.31 x 1.17 (7'6" x 3'10") -

Bathroom - 3.31 x 1.98 (10'10" x 6'5") -

Agents Note - As part of the service we offer we may recommend ancillary services to you which we believe may help you with your property transaction. We wish to make you aware, that should you decide to use these services we will receive a referral fee. For full and detailed information please visit 'terms and conditions' on our website www.keithashton.co.uk

Property Ref: 34335470

Share:

Similar Properties

Kings Chase, Brentwood

2 Bedroom End of Terrace House | Offers in excess of £490,000

We are pleased to offer for sale this two-bedroom end-terrace cottage, ideally located within a short walk of Brentwood...

Brocksparkwood, Brentwood

4 Bedroom Semi-Detached House | £490,000

We are delighted to bring to market this semi-detached family home, ideally positioned within a quiet cul-de-sac in the...

Belgrave Avenue, Gidea Park, Romford

3 Bedroom End of Terrace House | £485,000

We are delighted to present this charming three-bedroom family home, perfectly positioned just 0.6 miles from Gidea Park...

Cameron Close, Warley, Brentwood

3 Bedroom End of Terrace House | Guide Price £495,000

We are pleased to present this delightfully different three-bedroom family home, available for the first time in over 36...

Arbour Close, Warley, Brentwood

3 Bedroom Terraced House | Guide Price £495,000

We are delighted to bring to market this attractive three-bedroom family home, ideally situated in the popular Warley ar...

Hogarth Avenue, Brentwood

3 Bedroom Detached Bungalow | Offers in excess of £500,000

**OFFERS IN ACCESS OF £500,000** NO ONWARD CHAIN! A well-presented three-bedroom link detached bungalow located in a sou...

Keith Ashton Estates - Brentwood Office (Brentwood)

26 St. Thomas Road, Brentwood, Essex, CM14 4DB

01277 260858

How much is your home worth?

Use our short form to request a valuation of your property.

Request a Valuation

Mortgage Calculator

Amount Borrowed: £
Total Amount Repayable: £
Total Monthly Payment: £
©2026 The Guild of Property Professionals. All rights reserved. Terms and Conditions | Privacy Policy | Cookie Policy | Complaints Policy | Members Login
The Guild of Property Professionals Trading Address: 121 Park Lane, London W1K 7AG. GPEA Limited. Registered in England & Wales.  Company No: 02819824.  Registered Office Address: 2 St. Stephen's Court, St. Stephen's Road, Bournemouth, Dorset, England, BH2 6LA.  VAT Registration No: 576 8795 61
Book a Property Valuation Update Cookies Preferences