Albert Street, Warley, Brentwood

Offers in excess of
£450,000
SSTC
This property listing is now SSTC

3 Bedroom End of Terrace House for sale in Brentwood

2 3 2
  • NO ONWARD CHAIN
  • TOWN HOUSE OVER THREE FLOORS
  • THREE BEDROOMS
  • TWO BATHROOMS
  • INTEGRAL GARAGE
  • IN NEED OF MODERNISATION
  • HALF A MILE TO BRENTWOOD STATION
  • EASY REACH OF LOCAL SCHOOLS

Nestled in the charming area of Warley, Brentwood, this spacious town house on Albert Street, in need of modernisation, offers a perfect opportunity to put your own stamp on the property. The property boasts a private driveway, two spacious reception rooms, ideal for both relaxation and entertaining guests. The well-proportioned living spaces are filled with natural light, creating a warm and welcoming atmosphere throughout. The location is particularly appealing, with easy access to local amenities, schools, and transport links, making it an ideal choice for families and professionals alike. The surrounding area is known for its community spirit and picturesque surroundings, offering a pleasant environment to call home.

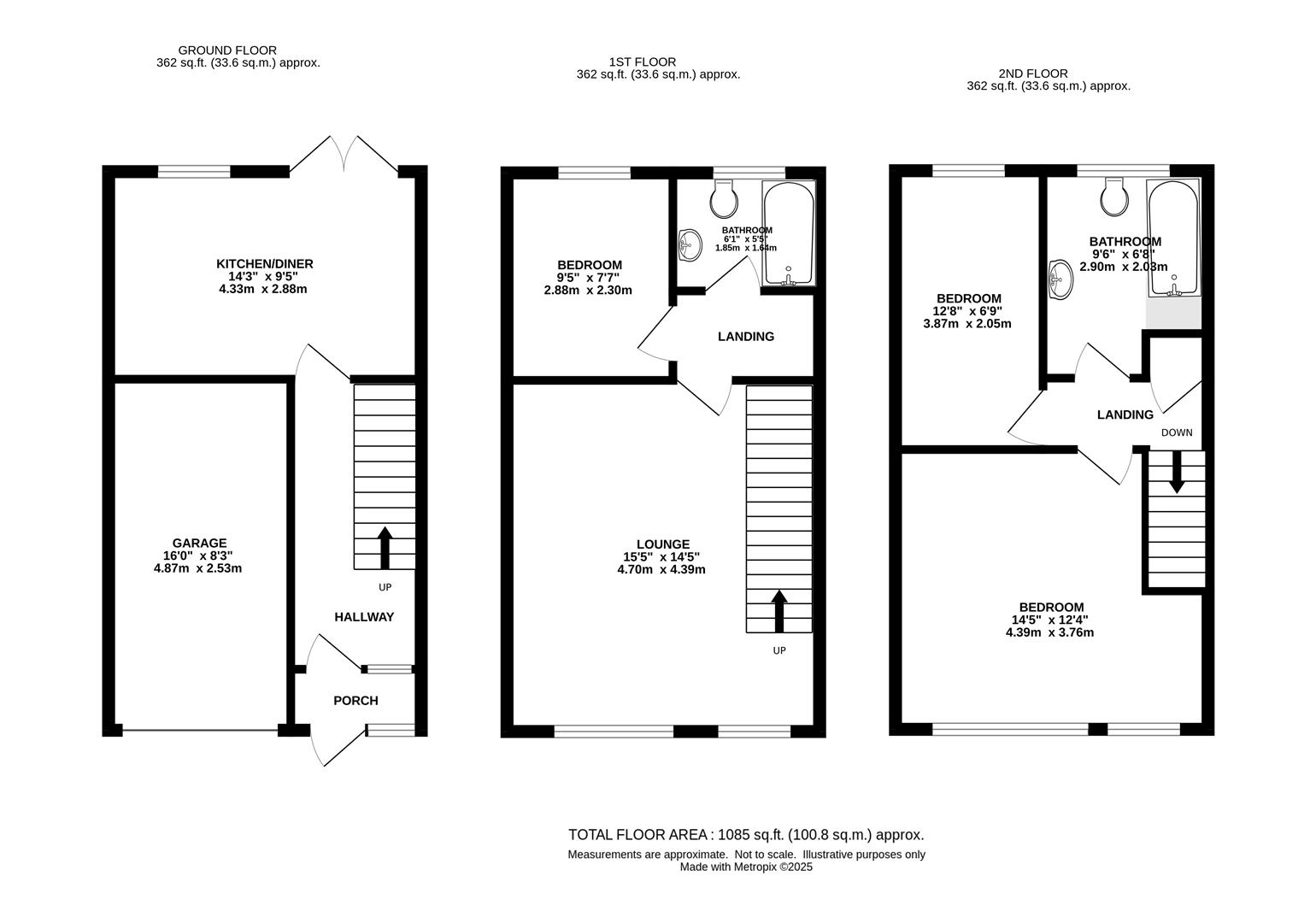
The internal layout, which would benefit from modernisation, begins with a convenient porch that leads into a central hallway. From here, you'll find the kitchen/diner at the rear of the property-a generously proportioned space fitted with both eye and base level units, complemented by double doors that open out to the rear garden.

Ascending to the first floor, the landing provides access to a spacious lounge at the front of the property, as well as a comfortable bedroom and a bathroom situated at the rear. Moving up to the second floor, you'll discover a second family bathroom, a generously sized principal bedroom, and an additional double bedroom, all offering ample living space for a growing family.

Outside, the property boasts a private driveway with off-street parking and access to the garage via an up-and-over door. To the rear, a long garden presents an excellent opportunity to create a tranquil space for relaxation and enjoyment.

Porch -

Hallway -

Kitchen/Diner - 4.34m x 2.87m (14'3 x 9'5) -

Garage - 4.88m x 2.51m (16'0 x 8'3) -

First Floor Landing -

Lounge - 4.70m x 4.39m (15'5 x 14'5) -

Bedroom One - 2.87m x 2.31m (9'5 x 7'7) -

Bathroom - 1.85m x 1.65m (6'1 x 5'5) -

Second Floor Landing -

Bedroom Two - 4.39m x 3.76m (14'5 x 12'4) -

Bedroom Three - 3.86m x 2.06m (12'8 x 6'9) -

Bathroom - 2.90m x 2.03m (9'6 x 6'8) -

Agents Note - As part of the service we offer we may recommend ancillary services to you which we believe may help you with your property transaction. We wish to make you aware, that should you decide to use these services we will receive a referral fee. For full and detailed information please visit 'terms and conditions' on our website www.keithashton.co.uk

Property Ref: 8226_33640707

Share:

Similar Properties

Karen Close, Brentwood

3 Bedroom Semi-Detached House | Guide Price £450,000

** GUIDE RANGE £450,000 - £475,000 ** Welcome to this charming three bedroom semi-detached family home located on the de...

Saffron Close, West Horndon, Brentwood

2 Bedroom Semi-Detached Bungalow | Guide Price £450,000

We bring to market this two-bedroom, semi-detached bungalow, ideally located, within easy reach of local amenities, and...

Magnolia Way, Pilgrims Hatch, Brentwood

3 Bedroom Semi-Detached House | Guide Price £450,000

We are delighted to present this three-bedroom semi-detached family home, ideally situated within the sought-after Flowe...

Tern Way, Brentwood

3 Bedroom Semi-Detached House | Guide Price £465,000

**Guide Price £475,000 - £500,000** We're pleased to present this well-maintained three-bedroom semi-detached family hom...

Warley Hill, Warley, Brentwood

3 Bedroom Terraced House | Guide Price £475,000

**Guide Price £475,000 - £500,000** Nestled in the charming area of Warley, Brentwood, is this beautiful three-bedroom m...

The Galleries, Warley, Brentwood

2 Bedroom Apartment | Guide Price £475,000

We are pleased to market this ground floor, two double-bedroom apartment with own garden, allocated parking and full con...

Keith Ashton Estates - Brentwood Office (Brentwood)

26 St. Thomas Road, Brentwood, Essex, CM14 4DB

01277 260858

How much is your home worth?

Use our short form to request a valuation of your property.

Request a Valuation

Mortgage Calculator

Amount Borrowed: £
Total Amount Repayable: £
Total Monthly Payment: £
©2025 The Guild of Property Professionals. All rights reserved. Terms and Conditions | Privacy Policy | Cookie Policy | Complaints Policy | Members Login
The Guild of Property Professionals Trading Address: 121 Park Lane, London W1K 7AG. GPEA Limited. Registered in England & Wales.  Company No: 02819824.  Registered Office Address: 2 St. Stephen's Court, St. Stephen's Road, Bournemouth, Dorset, England, BH2 6LA.  VAT Registration No: 576 8795 61
Book a Property Valuation Update Cookies Preferences