Bridge Close, Brentwood

Guide Price
£625,000
SSTC
This property listing is now SSTC

4 Bedroom Semi-Detached House for sale in Brentwood

2 4 1
  • FOUR BEDROOM FAMILY HOME
  • CONSERVATORY
  • INTEGRATED GARAGE
  • BACKING KING GEORGES PLAYING FIELDS
  • NO ONWARD CHAIN
  • CLOSE TO HIGHLY REGARDED SCHOOLS
  • CUL-DE-SAC LOCATION
  • EASY REACH OF BRENTWOOD STATION

**Guide Price £625,000 - £650,000** We are pleased to present this spacious semi-detached family home, tucked away in a peaceful, sought-after cul-de-sac, just off Ingrave Road. Offering generous ground floor living space and four well-proportioned bedrooms, the property provides an excellent canvas for modernisation and personalisation. Ideally located within easy reach of Brentwood Train Station-offering superb links into London and beyond-and close to highly regarded schools, this home is a fantastic opportunity for families looking to create their perfect living space.

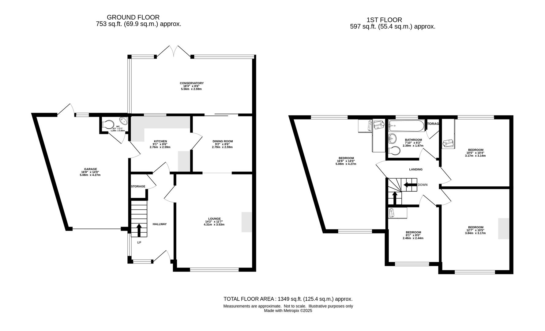
The property welcomes you with an entrance hall that leads into a bright and airy lounge with a front-facing window. This inviting space flows effortlessly into the dining room, which provides access to the kitchen and opens onto the conservatory through sliding doors. The kitchen, currently fitted with eye and base-level units, enjoys a view into the conservatory and offers access to both the integrated garage and a convenient ground floor WC. The conservatory itself is a light-filled retreat, perfect for enjoying peaceful views of the garden.

Upstairs, the landing provides access to four well-proportioned bedrooms and a family bathroom, all thoughtfully arranged for practical family living.

Outside, the rear garden begins with a paved patio area, leading to a generous and beautifully maintained lawn. Mature shrubs and trees surround the space, creating a private and tranquil setting. To the front, a spacious driveway offers ample off-street parking and is bordered by established planting, adding to the home's kerb appeal.

Entrance Hall -

Lounge - 4.31 x 3.53 (14'1" x 11'6") -

Kitchen - 2.76 x 2.59 (9'0" x 8'5") -

Dining Room - 2.79 x 2.59 (9'1" x 8'5") -

Conservatory - 5.56 x 2.59 (18'2" x 8'5") -

Wc -

Landing -

Bedroom One - 5.08 x 4.27 (16'7" x 14'0") -

Bedroom Two - 3.84 x 3.17 (12'7" x 10'4") -

Bedroom Three - 3.17 x 3.14 (10'4" x 10'3") -

Bedroom Four - 2.46 x 2.44 (8'0" x 8'0") -

Bathroom - 2.39 x 1.87 (7'10" x 6'1") -

Garage - 5.08 x 4.27 (16'7" x 14'0") -

Agents Note - As part of the service we offer we may recommend ancillary services to you which we believe may help you with your property transaction. We wish to make you aware, that should you decide to use these services we will receive a referral fee. For full and detailed information please visit 'terms and conditions' on our website www.keithashton.co.uk

Property Ref: 8226_33934489

Share:

Similar Properties

Middle Road, Ingrave, Brentwood

3 Bedroom Semi-Detached Bungalow | £625,000

Located in Middle Road, a much sought after turning in Ingrave, is this beautifully presented family home in a superb lo...

Billericay Road, Herongate, Brentwood

3 Bedroom Semi-Detached House | Guide Price £625,000

Offered for the first time in over sixty years and with No Onward Chain, we are delighted to present this charming prope...

Hamilton Crescent, Warley, Brentwood

3 Bedroom Detached House | Offers in excess of £625,000

We are delighted to present this beautifully appointed three-bedroom family home, ideally located in a sought-after resi...

Pear Trees, Ingrave, Brentwood

4 Bedroom Semi-Detached Bungalow | £635,000

**Guide Price £635,000 - £650,000** We are delighted to present this beautifully maintained semi-detached bungalow, loca...

Warley Road, Upminster

2 Bedroom Semi-Detached House | Guide Price £650,000

We are delighted to present this beautifully maintained semi-detached home, situated on the sought-after Warley Road. Of...

Larchwood Gardens, Pilgrims Hatch, Brentwood

5 Bedroom Semi-Detached House | Guide Price £650,000

**Guide Price; £650,000 - £675,000** We are delighted to bring to market this five-bedroom family home, ideally situated...

Keith Ashton Estates - Brentwood Office (Brentwood)

26 St. Thomas Road, Brentwood, Essex, CM14 4DB

01277 260858

How much is your home worth?

Use our short form to request a valuation of your property.

Request a Valuation

Mortgage Calculator

Amount Borrowed: £
Total Amount Repayable: £
Total Monthly Payment: £
©2026 The Guild of Property Professionals. All rights reserved. Terms and Conditions | Privacy Policy | Cookie Policy | Complaints Policy | Members Login
The Guild of Property Professionals Trading Address: 121 Park Lane, London W1K 7AG. GPEA Limited. Registered in England & Wales.  Company No: 02819824.  Registered Office Address: 2 St. Stephen's Court, St. Stephen's Road, Bournemouth, Dorset, England, BH2 6LA.  VAT Registration No: 576 8795 61
Book a Property Valuation Update Cookies Preferences