Westwood Avenue, Brentwood

£650,000
SSTC
This property listing is now SSTC

4 Bedroom Semi-Detached House for sale in Brentwood

2 4 2
  • SEMI-DETACHED FAMILY HOME
  • STUNNING KITCHEN/DINER
  • FOUR BEDROOMS
  • TWO BATHROOMS
  • 0.7 MILES TO BRENTWOOD STATION
  • UTILITY ROOM
  • GARAGE
  • EASY REACH OF HIGHLY REGARDED SCHOOLS

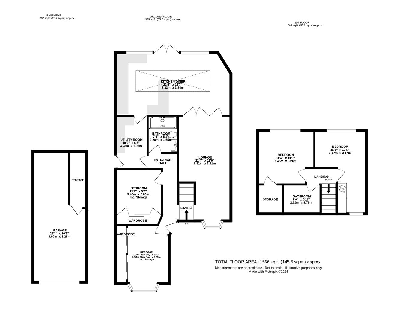
We are delighted to bring to market this impressive semi-detached family home, ideally located just 0.7 miles from Brentwood station, providing excellent transport links into London and beyond. Beautifully presented throughout, the property boasts a stunning kitchen/diner, four well-proportioned bedrooms and two contemporary bathrooms, offering flexible and comfortable accommodation for modern family living. Ideally positioned within easy reach of highly regarded local schools and Brentwood High Street, with its array of shops, bars and restaurants, this home perfectly combines style, space and convenience.

The internal accommodation begins with a welcoming entrance hall, setting the tone for the rest of the home. To the right is a comfortable living room featuring a wood-burning stove and bi-fold doors that open into a stunning open-plan kitchen/diner. This impressive space is enhanced by a roof lantern along with French doors and windows, flooding the room with natural light. The kitchen is fitted with sleek eye and base level units complemented by ample worktop space. From here, there is access to a practical utility room with external door to the side of the property, where ramp access leads to the front.

To the left of the entrance hall are two generous double bedrooms, both benefitting from built-in wardrobes, along with a stylish ground-floor shower room completing this level. To the first floor, the landing provides access to two further double bedrooms and a well-appointed family bathroom.

Externally, the landscaped rear garden begins with a paved patio area, leading onto a lawn bordered by established shrubs. To the front, a shingle driveway offers off-street parking and leads to the garage, which is built beneath the property.

Entrance Hall -

Lounge - 6.81 x 3.51 (22'4" x 11'6") -

Kitchen/Diner - 6.83 x 3.84 (22'4" x 12'7") -

Utility Room - 3.28 x 1.96 (10'9" x 6'5") -

Bedroom - 3.58 x 3.28 (11'8" x 10'9") -

Bedroom - 3.40 x 2.83 (11'1" x 9'3") -

Bathroom - 2.28 x 1.55 (7'5" x 5'1") -

Landing -

Bedroom - 5.07 x 3.17 (16'7" x 10'4") -

Bedroom - 3.45 x 3.28 (11'3" x 10'9") -

Storage -

Bathroom - 2.28 x 1.79 (7'5" x 5'10") -

Garage - 8.00 x 3.28 (26'2" x 10'9") -

Agents Note - As part of the service we offer we may recommend ancillary services to you which we believe may help you with your property transaction. We wish to make you aware, that should you decide to use these services we will receive a referral fee. For full and detailed information please visit 'terms and conditions' on our website www.keithashton.co.uk

Property Ref: 34452429

Share:

Similar Properties

Osborne Road, Pilgrims Hatch, Brentwood

4 Bedroom Detached House | £650,000

We are delighted to bring to market this detached family home situated in the ever-popular Pilgrims Hatch area of Brentw...

Thorndon Avenue, West Horndon, Brentwood

3 Bedroom Semi-Detached Bungalow | Guide Price £650,000

Nestled in the charming village of West Horndon, this delightful semi-detached bungalow on Thorndon Avenue offers an exc...

Willowdene Court, Warley, Brentwood

4 Bedroom Detached House | Guide Price £650,000

** Guide Price £650,000 - £675,000** We are pleased to present this detached family home ideally situated in the popular...

Headley Chase, Warley, Brentwood

4 Bedroom Detached House | Guide Price £695,000

Situated in the highly desirable 'Old Hartswood' area, this detached family home in need of some modernisation, boasts f...

Tree Tops, Brentwood

4 Bedroom Detached House | POA

** OPEN HOUSE - SATURDAY 21ST MAY - STRICTLY BY APPOINTMENT ONLY ** Requiring complete modernisation throughout and loca...

Burntwood, Brentwood

3 Bedroom Detached House | Guide Price £700,000

**Guide Price £700,000 - £725,000** We are delighted to bring to market this beautifully presented detached family home,...

Keith Ashton Estates - Brentwood Office (Brentwood)

26 St. Thomas Road, Brentwood, Essex, CM14 4DB

01277 260858

How much is your home worth?

Use our short form to request a valuation of your property.

Request a Valuation

Mortgage Calculator

Amount Borrowed: £
Total Amount Repayable: £
Total Monthly Payment: £
©2026 The Guild of Property Professionals. All rights reserved. Terms and Conditions | Privacy Policy | Cookie Policy | Complaints Policy | Members Login
The Guild of Property Professionals Trading Address: 121 Park Lane, London W1K 7AG. GPEA Limited. Registered in England & Wales.  Company No: 02819824.  Registered Office Address: 2 St. Stephen's Court, St. Stephen's Road, Bournemouth, Dorset, England, BH2 6LA.  VAT Registration No: 576 8795 61
Book a Property Valuation Update Cookies Preferences