North Road Avenue, Brentwood

Guide Price
£365,000
SSTC
This property listing is now SSTC

2 Bedroom Terraced House for sale in Brentwood

1 2 1
  • BUILT CIRCA 1900
  • TWO BEDROOMS
  • FEATURE FIREPLACES
  • SOUTH WEST FACING GARDEN
  • EXTENDED TO REAR
  • RESIDENTS PERMIT PARKING
  • CLOSE PROXIMITY TO THE HIGH STREET
  • EASY REACH OF BRENTWOOD STATION

**Guide Price £365,000 - £385,000** Convenience meets charm in this delightful character cottage, perfectly located in the heart of Brentwood. The extended property features a generously sized lounge/dining area, a well-appointed kitchen and utility, two comfortable bedrooms, and a first-floor bathroom. To the rear, you'll find a private garden and parking is conveniently available on the street with a residents' permit. With Brentwood High Street and the Elizabeth Line station just a stone's throw away this property is perfect for first-time buyers and commuters seeking both comfort and connectivity.

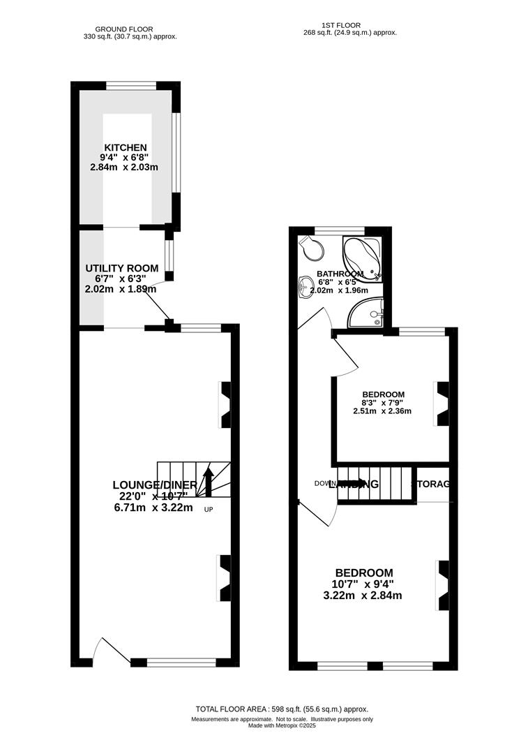
The internal accommodation opens with a spacious and open-planned lounge/dining room, elegantly complemented by a feature fireplace that adds warmth and character. A convenient utility area provides direct access to the private rear garden and seamlessly connects to a well-appointed kitchen, fitted with an array of eye and base-level storage units to maximise functionality.

Upstairs, the landing provides access to the bedrooms and four piece bathroom bathroom. The principal bedroom is of generous size situated at the front, and benefits from a built in storage cupboard above the stairs, while the second bedroom, a spacious single, is located at the rear. The well-proportioned bathroom includes a corner bathtub, separate shower cubicle, WC and hand wash basin completing the home's interior with style and practicality.

Outside, the property is enhanced by a private paved rear garden, providing a peaceful retreat ideal for relaxation or entertaining.

Lounge / Diner - 6.71 x 3.22 (22'0" x 10'6") -

Utility Room - 2.02 x 1.89 (6'7" x 6'2") -

Kitchen - 2.84 x 2.03 (9'3" x 6'7") -

Bedroom One - 3.22 x 2.84 (10'6" x 9'3") -

Bedroom Two - 2.51 x 2.36 (8'2" x 7'8") -

Bathroom - 2.02 x 1.96 (6'7" x 6'5") -

Agents Note - As part of the service we offer we may recommend ancillary services to you which we believe may help you with your property transaction. We wish to make you aware, that should you decide to use these services we will receive a referral fee. For full and detailed information please visit 'terms and conditions' on our website www.keithashton.co.uk

Property Ref: 8226_33591787

Share:

Similar Properties

71-73 Halcyon Place, Brentwood, Essex

1 Bedroom Apartment | Guide Price £360,000

Welcome to this exquisite apartment located at the stunning Halcyon Place in the charming town of Brentwood, Essex. This...

Ongar Road, Brentwood

2 Bedroom Retirement Property | £355,000

We are delighted to bring to market this beautifully presented ground-floor retirement apartment offered with no onward...

Cromwell Road, Warley, Brentwood

3 Bedroom Cottage | Guide Price £350,000

** GUIDE RANGE £350,000 - £400,000 ** NO ONWARD CHAIN - This charming two/three bed cottage boasts a welcoming porch tha...

Cedar Road, Hutton, Brentwood

2 Bedroom Bungalow | Offers in excess of £375,000

We bring to market this two-bedroom semi-detached bungalow, nestled in a tranquil cul-de-sac within a sought-after area...

Lascelles Close, Pilgrims Hatch, Brentwood

3 Bedroom End of Terrace House | Guide Price £375,000

**Guide Price £375,000 - £400,000** We are pleased to present this three-bedroom end-of-terrace home, ideally situated i...

Heather Close, Pilgrims Hatch, Brentwood

3 Bedroom Terraced House | £375,000

Offered with No Onward Chain, we are pleased to bring to market this three-bedroom, mid-terrace home, located in the sou...

Keith Ashton Estates - Brentwood Office (Brentwood)

26 St. Thomas Road, Brentwood, Essex, CM14 4DB

01277 260858

How much is your home worth?

Use our short form to request a valuation of your property.

Request a Valuation

Mortgage Calculator

Amount Borrowed: £
Total Amount Repayable: £
Total Monthly Payment: £
©2025 The Guild of Property Professionals. All rights reserved. Terms and Conditions | Privacy Policy | Cookie Policy | Complaints Policy | Members Login
The Guild of Property Professionals Trading Address: 121 Park Lane, London W1K 7AG. GPEA Limited. Registered in England & Wales.  Company No: 02819824.  Registered Office Address: 2 St. Stephen's Court, St. Stephen's Road, Bournemouth, Dorset, England, BH2 6LA.  VAT Registration No: 576 8795 61
Book a Property Valuation Update Cookies Preferences