Lot 3 - Cartref, Llanmihangel Farm, Pyle, Bridgend, CF33 6RL

Guide Price
£1,100,000
SSTC
This property listing is now SSTC

4 Bedroom Not Specified for sale in Bridgend

3 4
  • Beautifully maintained, high quality 4 bedroom barn conversion
  • Land extending to 9.53 acres
  • Spacious family accommodation
  • Outstanding views
  • Excellent access to M4 and A48

Situation

Llanmihangel Farm enjoys a a semi-rural location providing excellent access to a range of amenities with easy access to Junctions 37 and 38 of the M4 and the A48. Please see the attached location plan.



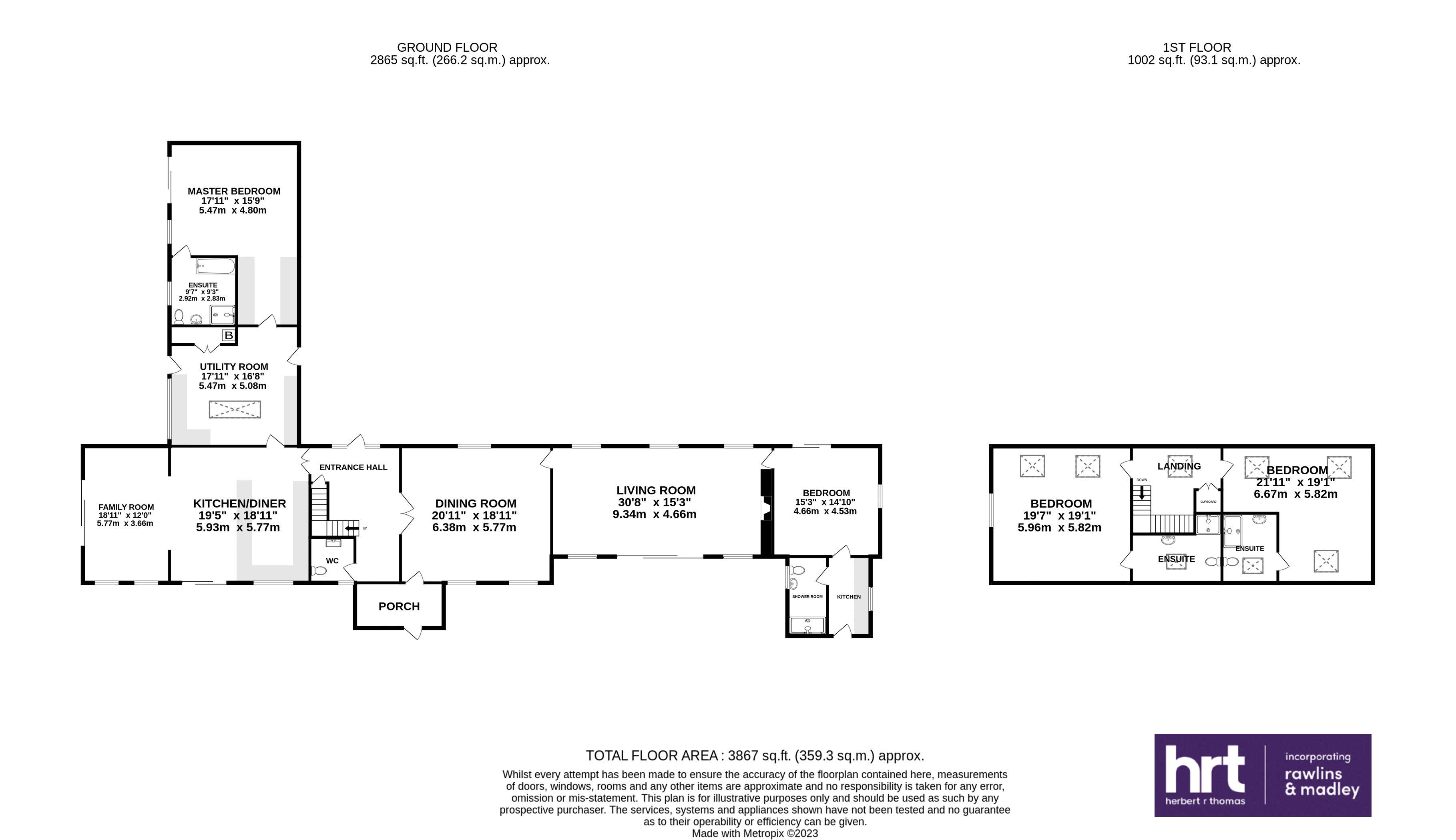
Cartref

Cartref is a charming four-bedroom barn conversion with stunning views over the adjoining farm land. The property provides spacious family accommodation in a wonderful rural setting.



Hallway

Oak door to hallway, with oak panelled lower walls and oak staircase to first floor.



Dining Room

Oak glazed double doors with aspects to front and rear. Door leading to:-



Rear Study

Tiled flooring, uPVC part frosted glazed door to rear.



Living Room

High pitched beamed ceiling, wood burning fire on a flagstone hearth with natural stone surround and oak lintel over.



Kitchen / Dining Room

A large kitchen with a range of oak cupboards, black granite worktops and breakfast bar and a full range of integrated appliances, slate tiled floor, open plan to:-



Sitting Room

With windows and French doors overlooking gardens and surrounding grounds.



Utility Room

Matching oak cupboards, granite worktops, door to rear providing access to carport. Houses ‘Grant’ oil fired central heating boiler.



Principal Bedroom

Extensive built-in oak and mirror door wardrobes and dressing table.  Fully tiled ensuite with spa bath and separate shower cubicle. 



Library/Bedroom Two

High pitched and beamed ceiling, oak framed book cases and door leading to separate kitchen and ensuite/shower room complete with walk-in shower, WC and wash hand basin. 



First floor 

Landing 

Landing provides access to bedrooms, bathroom and storage cupboard. 



Bedroom Three 

Generous sized double bedroom with high pitched ceiling and ensuite shower room. Electric double glazed velux windows. Glazed door to deep shower cubicle, low level WC and wash hand basin and fitted cabinets. 



Bedroom Four

High-pitched ceiling, electric double-glazed velux windows. Ensuite shower room with fully tiled traditional white suite. 



Outside

Stone pillared electric gates with tarmaced driveway flanked by lawns sweep to the front of the property with turning circle and ample parking extending to the side of the property where there is additional parking. 

Kitchen garden with raised beds and greenhouse. To the side of the property is a wide paved terrace and lawns with fine views. 



In total the grounds extend to approximately 9.53 acres, with a paddock located to the north of the property.



Home Gym

Changing room with WC, steam room with shower. 



Services

The property benefits from mains and borehole water. Mains electricity with the benefit of 3 phase electricity.  Drainage to cesspit tank. 



Council Tax - Band G



Access 

The farm benefits from 3 access points from the west, off Pyle Road/A48, the south off Marlas Road and an ancient right dating back to the monk’s time crossing Kenfig Hill Sand Dunes from the western boundaries. 



In the event that the property is sold in lots, lots 1, 2, 4, 5 & 6 will have the benefit of a right of way along the Mill Lane with shared maintenance responsibility. All lots will benefit from a right of way long the Black Lane. 



Lotting

As a whole - £3,850,000

Lot 1 (Yellow): Approximately 64.28 acres of land - Guide Price: £640,000

Lot 2 (Blue): Llanmihangel Farmhouse and approximately 10.80 acres of land - Guide Price: £650,000

Lot 3 (Green): Cartref and approximately 9.53 acres of land - Guide Price: £1,100,000

Lot 4 (Orange): Equestrian facilities set in approximately 50.42 acres of land - Guide Price: £875,000

Lot 5 (Pink): Approximately 18.59 acres of land - Guide Price: £270,000

Lot 6 (Purple): The Cow Shed - Guide Price: £475,000

 
Fishing Rights

Included with the sale of the property is approximately 670 metres of fishing rights along the River Kenfig. 



Directions

Postcode: CF33 6RL

What3words: sneezing.paces.jams



From Junction 37 of the M4, head north and follow the sign for Pyle. Head straight across the first roundabout and then left at the traffic lights on to Marlas Road. Continue along Marlas Road without deviation, until reaching the village shop. Turn right onto a private lane immediately before the shop, continue along this lane until reaching a T junction where the entrance to Llanmihangel Farm (Cartref) will be directly in front of you. 



Method of Sale

Llanmihangel Farm is offered for Sale, as a whole or in lots by Private Treaty.



Boundaries

The purchaser(s) shall be deemed to have full knowledge of all boundaries and neither the vendor nor the vendors agents will be responsible for defining the boundaries or the ownership thereof



Development Clawback

The property is subject to a 50% development clawback in favour of the previous Vendors for 19 years on part of the farm. 



Sporting, Timber & Minerals

The sporting rights, mineral rights and timber are included within the freehold in so far as they are owned.



Wayleave/Easements/Rights of Way

The property is sold subject to and with the benefit of all existing rights and obligations including rights of way, whether public or private, light, support, drainage, water and other obligations, easements, quasi-easements, and all wayleaves whether referred to or not in these particulars. There are public footpaths crossing the farm.    



Plans, Areas & Schedules

These have been prepared as carefully as possible and are based on the Land Registry Plans. The plans are published for illustrative purposes only and although they are believed to be correct, their accuracy is not guaranteed.



Tenure & Possession

Freehold with Vacant Possession on Completion. 



Cross Compliance

The seller will be responsible for the cross compliance up to the date of completion. The purchaser(s) will take over the cross-compliance obligations on completion and will indemnify the seller for any non-compliance which results in a penalty or reduction in the seller's payments.



Disputes

Should any dispute arise as to the boundaries or any point arising in the General Remarks and Stipulations or Particulars of Scale, Schedule, Plan or interpretation of any of them the question shall be referred to the arbitration of the selling agents, whose decision acting as expert shall be final. 



Health & Safety

Due to the nature of the property, neither the seller nor agents are responsible for the safety of those viewing. All those viewing the property do so at their own risk.



Fixtures and Fittings

All fixtures and fittings are excluded from the sale unless specifically referred to in these particulars.



Anti Money Laundering

As part of our obligations under the UK Money Laundering Regulations 2017, Herbert R Thomas will require any purchaser to complete our Anti Money Laundering checks via a third party company named SmartSearch.



Viewing Arrangements

Viewing to be arranged for daylight hours and by appointment only through the sole agents.



For further information please contact:

Contact: Philip Thomas MRICS FAAV 

Tel: 01446 776370

E-mail: philipthomas@hrt.uk.com 

Important Information

  • This is a Freehold property.

Property Ref: EAXML13503_12741639

Share:

Similar Properties

Cartref, Llanmihangel Farm, Pyle, Bridgend, CF33 6RL

4 Bedroom Not Specified | Guide Price £1,100,000

Cartref is a charming four-bedroomed barn conversion. The property provides spacious family accommodation. The land...

The Shield, 49 Eastgate, Cowbridge, The Vale of Glamorgan CF71 7EL

5 Bedroom House | Asking Price £1,075,000

Imposing, Victorian Grade II listed town house with walled garden and substantial modern coach house. Easy walking acces...

Ewenny Farm House, St Brides Road, Ewenny, The Vale of Glamorgan, CF35 5AX

12 Bedroom Detached House | Offers Over £1,000,000

A truly unique offering, a sizeable guest house with live in quarters, semi attached cottage and numerous outbuildings s...

Keepers Lodge, St. Mary Church, The Vale of Glamorgan CF71 7LT

4 Bedroom Detached House | Asking Price £1,235,000

Beautiful stone built early Victorian 4 double bedroom character house of great charm with a particularly outstanding op...

Units 7-11 Coopers Court, Caerphilly Road, Ystrad Mynach, CF82 7EP

Not Specified | Offers in excess of £1,250,000

7 Oyster Bend, Sully, Penarth, The Vale of Glamorgan CF64 5LW

5 Bedroom Bungalow | Asking Price £1,250,000

A truly spacious, five bedroom detached dormer bungalow spanning circa 3500ft2, enjoying uninterrupted coastal views ove...

H R Thomas Ltd (Cowbridge)

Cowbridge, South Wales, CF71 7AF

01446 772911

How much is your home worth?

Use our short form to request a valuation of your property.

Request a Valuation

Mortgage Calculator

Amount Borrowed: £
Total Amount Repayable: £
Total Monthly Payment: £
©2026 The Guild of Property Professionals. All rights reserved. Terms and Conditions | Privacy Policy | Cookie Policy | Complaints Policy | Members Login
The Guild of Property Professionals Trading Address: 121 Park Lane, London W1K 7AG. GPEA Limited. Registered in England & Wales.  Company No: 02819824.  Registered Office Address: 2 St. Stephen's Court, St. Stephen's Road, Bournemouth, Dorset, England, BH2 6LA.  VAT Registration No: 576 8795 61
Book a Property Valuation Update Cookies Preferences