High Street, Blagdon, Bristol

Offers in excess of
£1,650,000

5 Bedroom Detached House for sale in Bristol

3 5 4
  • An attractive period detached country house
  • 5 bedrooms
  • Open plan kitchen/dining/family room with stunning views
  • Two further reception rooms
  • 4 bath/shower rooms
  • Separate 2 storey annexe with kitchenette, WC and separate heating system
  • Grounds of 1.34 acres including lawned gardens and orchard
  • Fabulous views overlooking Blagdon Lake and surrounding countryside
  • Enviable position in popular village centre

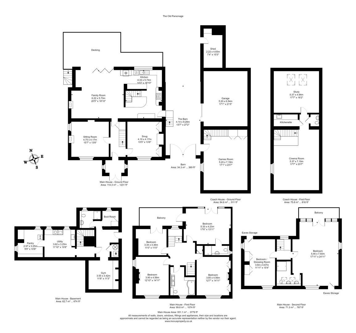
An elegant period country residence in the heart of the popular village of Blagdon, with beautiful lawned gardens, an orchard and breathtaking views of Blagdon Lake and the hills beyond from all rooms at the rear. The property, with accommodation over four floors, has been meticulously upgraded and restored by the present owners, with the installation of new timber double-glazed windows, gas central heating, the opening up of three rooms to create a contemporary open plan family space and the creation of a luxury principal bedroom suite on the top floor. The period charm has not been lost and the Old Parsonage boasts attractive fireplaces and deep window sills, whilst natural light floods the property, which is meticulously decorated in soft neutral shades.

Description - The Old Parsonage is approached via two sets of electric gates into a gravel parking area to the front of the property, which is secluded by a line of mature trees on the boundary. A front porch leads into a welcoming entrance hall. Off the hallway are two separate reception rooms. To the left, the dual aspect sitting room has a stone fireplace with wood burning stove, polished wooden floorboards and a feature alcove on the wall. To the right-hand side is the snug with built in cupboards to either side of an open fireplace with wooden mantel and stone hearth.
To the rear of the property is the impressive kitchen/dining/family room with bifold doors opening out onto a decked terrace, from which one can admire the far-reaching rural views encompassing Blagdon Lake. The dining/sitting area has a wood burning stove.
The well-appointed kitchen has a range of fitted painted wooden units with granite work surfaces. The appliances include an American style fridge/freezer, dishwasher and dual fuel Stoves range cooker. An exterior door leads to the annexe and garden. Internal steps lead down to the cellars.
The extensive cellars contain a utility room plumbed for washing machine and dryer, with tiled floor, cupboard units, butler sink and windows to rear garden and a storage pantry area with fridge/freezer. A cupboard houses the gas central heating boiler and pressure water tank, which was installed in 2013. A further room with mirrored wall is used as a gym. This versatile space could be used for a teenage den or party room. There is also a useful boot room and separate WC and shower room. A door gives access to the garden.
From the hallway, a staircase leads up to a wide, well-lit landing, off which there are 4 double bedrooms and a family bathroom. The rear two bedrooms have access to a balcony with room for a table and chairs, overlooking the rear garden. The largest bedroom is double aspect with access to the balcony, a Juliet balcony and an en suite shower room. There are two further good-sized double bedrooms with pretty Victorian style fireplaces and windows to front with fitted wooden blinds.
The spacious and well-appointed family bathroom has underfloor heating, a WC and wooden vanity unit with 'His and Hers' basins, a bath with handheld shower attachment and rainfall showerhead over and a window to the front with fitted shutters.
A further staircase leads to the top floor landing. This has a triple pane window allowing in plenty of natural light. The owners have converted the attic into a fabulous principal suite. The triple aspect bedroom has a balcony overlooking the rear gardens and vaulted ceiling with wooden beams. Off this is a wet room with walk-in shower, 'His and Hers' washbasins and WC. A further dressing room, well furnished with cupboards and fitted drawer space into the eaves completes this luxury suite.

Outside - To the east side of the property is an open barn with gravel floor, linking steps from the kitchen with the annex. There are large double wooden gates out onto the driveway.

The property stands in gardens of approx. 1/2 acre. At the immediate rear of the house is a flagstone terrace, perfect for outdoor dining and enjoying views of the gardens. There are two lawned areas separated by a low stone wall, with an archway leading to a play area with climbing frame, chicken enclosure and vegetable beds. The garden is surrounded by a magnificent stone wall with a wide variety of trees and shrubs. To the west of the garden is a further 3/4 acre of orchard, which was bought by the present owners.

The Stable - A former stable has been beautifully converted into a two-storey annexe. This substantial building has a games/hobby room on the ground floor and further TV entertainment room on the first floor. This upstairs room has a vaulted ceiling with beams, inset spotlights and polished floorboards. A kitchenette has been installed as well as a handy WC and basin. A further room, lit by two large Velux windows is currently used as an office. The Stable offers an option for accommodating a dependent relative or guests or for use as a stand-alone office. A gas fired boiler is located in a cupboard on the first floor.
Attached to The Stable is a stone built potting shed with room for a mower and garden tools.

Location - The popular village of Blagdon is set on the edge of the Mendip Hills (an AONB). It is a safe and thriving community with many clubs and organisations including Scouts, Brownies, tennis, football, and cricket clubs. There is a fantastic coffee shop and the New Inn has recently been refurbished and is very popular. The village also boasts a local shop and Post Office as well as an excellent family run Thai restaurant.
There are lovely walks around Blagdon Lake and walks and cycle trails on the nearby Mendips which can be accessed directly from the house. There is an active village hall, Church and good schooling nearby: primary schools in Blagdon, Ubley and Burrington, while State secondary schools include Churchill Academy, The Kings of Wessex Academy and Chew Valley School. Independent schools include Sidcot School (6 miles), Wells Cathedral School (10 miles) and Millfield (18 miles). The village is served by school buses to Sidcot and Wells. There is also easy access to schools in both Bristol and Bath.
The location is well-placed for commuting as Bristol city centre is approximately 15 miles away and Bath is around 20 miles. Bristol International Airport is only 6 miles away. The nearest railway stations are Yatton and Nailsea & Backwell which both have regular trains to London, Bristol and Cardiff.

Material Information - Council: North Somerset, Band G
EPC Rating D
Mains water, electricity and gas
Gas boiler to main house and separate gas boiler to annex
Sympathetically replaced double glazed timber windows to main house.
Drainage by sewage treatment plant - installed 2024.
Broadband - EE
NB this property is not Listed.

Property Ref: 34556071

Share:

Similar Properties

Woolverton, Bath

4 Bedroom Detached House | Offers in excess of £1,600,000

A beautifully presented detached timber-frame country residence, set in an idyllic, rural location to the south of Bath....

Nempnett Thrubwell

3 Bedroom Detached House | Offers in excess of £1,600,000

Bellevue Farm is a truly remarkable home with high quality equestrian facilities, set in one of the most sought-after lo...

Wells Road, Rodney Stoke, Cheddar

House | Offers in excess of £1,550,000

A stunning, contemporary, detached village home in an elevated position overlooking the Somerset Levels, with beautiful...

Top Sutton, Bishop Sutton, Bristol

5 Bedroom House | £1,750,000

A beautifully presented, L-shaped, 5 bedroom, stone-built house under a pantiled roof in over 3 ? acres of mature garden...

Hornblotton, Shepton Mallet

6 Bedroom Detached House | Offers in excess of £1,750,000

Rectory Farm is a distinguished Grade II listed Georgian farmhouse with later extension, set within around 5.5 acres of...

Wellington Terrace, Clevedon

6 Bedroom Detached House | Guide Price £1,825,000

Stancliff is a striking Grade II listed late Georgian detached home set in an elevated position above Clevedon's seafron...

Peter Greatorex Unique Homes (Bath)

Bath, Somerset, BA1 1HE

01225 471144

How much is your home worth?

Use our short form to request a valuation of your property.

Request a Valuation

Mortgage Calculator

Amount Borrowed: £
Total Amount Repayable: £
Total Monthly Payment: £
©2026 The Guild of Property Professionals. All rights reserved. Terms and Conditions | Privacy Policy | Cookie Policy | Complaints Policy | Members Login
The Guild of Property Professionals Trading Address: 121 Park Lane, London W1K 7AG. GPEA Limited. Registered in England & Wales.  Company No: 02819824.  Registered Office Address: 2 St. Stephen's Court, St. Stephen's Road, Bournemouth, Dorset, England, BH2 6LA.  VAT Registration No: 576 8795 61
Book a Property Valuation Update Cookies Preferences