Repton Road, Bristol

£395,000
SSTC
This property listing is now SSTC

3 Bedroom End of Terrace House for sale in Bristol

2 3 1
  • Three Double Bedrooms
  • End of Terrace
  • Victorian Home
  • Sought After Location
  • Two Reception Rooms
  • Private Rear Garden
  • Character Property
  • Freehold

**OFFERED WITH COMPLETE ONWARD CHAIN** This three double bedroom, end of terrace, Victorian property is a perfect family home or alternatively for those wanting additional living space with two reception rooms and generously sized bathroom.

Situated in a sought after area of Brislington just 0.2 miles from Sandy Park Road which hosts plenty of cafes, bars, shops and pub. In addition to the local amenities Repton Road is surrounded by popular green spaces such as: Arnos Court Park, Nightingale Valley and Victory Park, however it's not just the location that makes this house worth viewing...

After entering into this home to your left is the main reception room, profiting a traditional bay window filling the room with natural light, whilst also allowing extra floor space creating additional seating or storage. A log burner is the second feature of this room, perfect for a cosy winter night watching the fire.
Flowing through from the living room is the second reception room, this is currently opened out and used as a dining space but could be host a range of needs, a play room or potential home office space, to name a few.
At the end of the hallway is the kitchen with new worktops and ceramic sink. Completing the downstairs is the spacious, contemporary three piece bathroom with velux window overhead.

Upstairs are the three bedrooms, all of which are doubles, the largest of which spanning the entire width of the house, benefitting a large bay with double glazed windows and a feature fireplace, illustrating a glance into the property's past, whilst upkeeping with modern family homes.

Externally this property has a useful outbuilding/storage space to the rear, alongside a patio section of garden, ideal for a morning coffee or evening BBQ to enjoy in the west-facing garden.
Leading down from the patio would be the lawned area which has recently been worked on by the current owners, ready for seed/turf or indeed further patio, subject to the new owners taste!

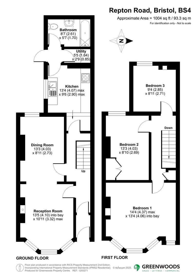
Bedroom One - 4.37 x 4.06 (14'4" x 13'3") -

Bedroom Two - 4.03 x 2.69 (13'2" x 8'9") -

Bedroom Three - 2.85 x 2.71 (9'4" x 8'10") -

Reception Room - 4.1 x 3.32 (13'5" x 10'10") -

Dining Room - 4.03 x 2.73 (13'2" x 8'11") -

Kitchen - 4.07 x 2.9 (13'4" x 9'6") -

Bathroom - 2.61 x 1.7 (8'6" x 5'6") -

Utility - 1.64 x 0.85 (5'4" x 2'9") -

Epc - D -

Tenure - Freehold -

Council Tax Band - B -

Property Ref: 33961419

Share:

Similar Properties

Gillebank Close, Stockwood, Bristol

4 Bedroom Semi-Detached House | £395,000

Tucked away in a quiet cul de sac in the heart of Stockwood, this contemporary four bedroom family home is offered to th...

Highgrove Street, Totterdown

3 Bedroom Semi-Detached House | £395,000

A SEMI-DETACHED house situated on the popular Highgrove Street in Totterdown. The property has accommodation arranged ov...

Bellevue Road, Totterdown, Bristol

2 Bedroom Terraced House | £395,000

Offered with NO ONWARD CHAIN! A Victorian terraced home located in vibrant lower Totterdown. With light & airy accommoda...

Ravenhill Avenue, Knowle, Bristol

3 Bedroom Terraced House | £400,000

Charming 1930s Terrace Home with Huge Potential - Ravenhill Avenue, Lower KnowleNestled on the highly sought-after Raven...

Glenarm Walk, Bristol

3 Bedroom Semi-Detached House | £405,000

Welcome to Glenarm Walk, Bristol - a charming property that boasts 2 reception rooms, 3 bedrooms, and 1 bathroom. This d...

Windsor Terrace, Totterdown, Bristol

2 Bedroom Terraced House | £415,000

Charming Victorian Terrace in Desirable Lower TotterdownA beautifully presented Victorian terrace located in the ever-po...

Greenwoods Property Centre (Knowle)

Wells Road, Knowle, Bristol, BS4 2AG

01179 777 672

How much is your home worth?

Use our short form to request a valuation of your property.

Request a Valuation

Mortgage Calculator

Amount Borrowed: £
Total Amount Repayable: £
Total Monthly Payment: £
©2026 The Guild of Property Professionals. All rights reserved. Terms and Conditions | Privacy Policy | Cookie Policy | Complaints Policy | Members Login
The Guild of Property Professionals Trading Address: 121 Park Lane, London W1K 7AG. GPEA Limited. Registered in England & Wales.  Company No: 02819824.  Registered Office Address: 2 St. Stephen's Court, St. Stephen's Road, Bournemouth, Dorset, England, BH2 6LA.  VAT Registration No: 576 8795 61
Book a Property Valuation Update Cookies Preferences