Two Acres Road, Hengrove, Bristol

£230,000
SSTC
This property listing is now SSTC

3 Bedroom Terraced House for sale in Bristol

3
  • Energy Rating - F
  • Thee Bedroom Home
  • NO ONWARD CHAIN
  • Front & Rear Gardens
  • Kitchen/Diner
  • Close To Local Amenities
  • Ground Floor Cloakroom
  • Spacious Lounge

This three-bedroom residence, located in the heart of Hengrove, offers a wonderful opportunity for prospective homeowners. With its spacious layout and desirable features, it provides an inviting canvas for personalization and transformation into a dream home perfectly positioned for easy access to a range of local amenities, including shops, schools, bus routes, and the popular Hengrove Park, this home is ideal for families and professionals alike.

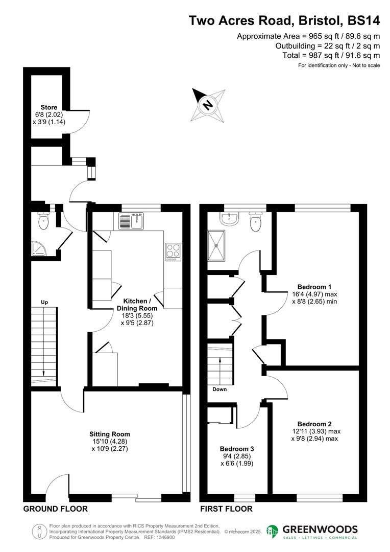
The ground floor accommodation briefly comprises: generously sized lounge opening to the rear garden, perfect for relaxation and entertainment. Catering to both casual meals and formal gatherings, the kitchen/diner, a vital hub of any home, offers functionality and potential for customization to suit individual tastes and needs. Additionally, there is a convenient ground floor cloakroom, providing ease of access for guests and residents alike.

Venturing to the first floor, you'll find two double bedrooms, along with an additional single bedroom and a family shower room.

The outdoor spaces are equally enticing, with both a front and rear garden offering opportunities for outdoor activities, gardening, or simply basking in the fresh air.

With NO ONWARD CHAIN, this property offers a streamlined purchasing process, allowing buyers to swiftly make it their own. Whether you're a first-time buyer, a growing family, or someone seeking a change of scenery, this residence holds promise and potential.

Living Room - 4.28 x 2.27 (14'0" x 7'5") -

Kitchen/Diner - 5.55 x 2.87 (18'2" x 9'4") -

Ground Floor Cloakroom -

Bedroom One - 4.97 max x 2.65 min (16'3" max x 8'8" min) -

Bedroom Two - 3.93 max x 2.94 max (12'10" max x 9'7" max) -

Bedroom Three - 2.85 x 1.99 (9'4" x 6'6") -

Shower Room -

Tenure Status - Freehold -

Council Tax Band - B -

Property Ref: 34193442

Share:

Similar Properties

Elgar Close, Knowle, Bristol

2 Bedroom Semi-Detached House | £230,000

Well-Presented Semi-Detached Home in Popular Knowle LocationSituated in a sought-after residential area of Knowle, this...

Westleigh Park, Hengrove, Bristol

3 Bedroom Terraced House | £225,000

CASH BUYERS ONLY - Prime Development Opportunity in HengroveAn excellent opportunity for developers and investors - this...

Knowle Road, Knowle, Bristol

1 Bedroom Flat | £225,000

Situated in a prime location close to local amenities including Fox and West Deli, Bank Restaurant, A Capella Café & Piz...

Pinkhams Twist, Whitchurch

2 Bedroom End of Terrace House | £235,000

Greenwoods Property Centre are delighted to bring to market, with no onward chain, this well presented two bedroom end o...

Beckington Road, Bristol

1 Bedroom Flat | £235,000

A delightful ground-floor flat situated on the ever-popular Beckington Road in Knowle. The property is accessed via its...

Coulsons Road, Whitchurch, Bristol

2 Bedroom Flat | £235,000

Tucked away off the main road in a peaceful setting, this first-floor apartment on Coulson's Road offers the perfect bal...

Greenwoods Property Centre (Knowle)

Wells Road, Knowle, Bristol, BS4 2AG

01179 777 672

How much is your home worth?

Use our short form to request a valuation of your property.

Request a Valuation

Mortgage Calculator

Amount Borrowed: £
Total Amount Repayable: £
Total Monthly Payment: £
©2026 The Guild of Property Professionals. All rights reserved. Terms and Conditions | Privacy Policy | Cookie Policy | Complaints Policy | Members Login
The Guild of Property Professionals Trading Address: 121 Park Lane, London W1K 7AG. GPEA Limited. Registered in England & Wales.  Company No: 02819824.  Registered Office Address: 2 St. Stephen's Court, St. Stephen's Road, Bournemouth, Dorset, England, BH2 6LA.  VAT Registration No: 576 8795 61
Book a Property Valuation Update Cookies Preferences