Summer Hill, Totterdown, Bristol

£450,000

6 Bedroom End of Terrace House for sale in Bristol

2 6 2
  • Period Terrace Home
  • Four / Six Bedrooms
  • Two / Three Reception Rooms
  • Kitchen
  • Downstairs W.C
  • Upstairs Family Bathroom
  • Lean to / Conservatory
  • In Need of Updating
  • Substantial & Established Garden
  • Energy Rating - C

Positioned perfectly between Bath and Wells Road, this delightful Victorian terrace offers a fantastic opportunity for buyers looking to create their perfect home in one of Bristol's most sought-after locations. Set in the vibrant heart of Totterdown, this property is ideal for those wanting to be within walking distance of Temple Meads station, the City Centre, and the independent shops and cafés of Wells Road. Nearby green spaces such as Arnos Vale Cemetery, the enchanting 45-acre Victorian garden cemetery that features a café, gift shop, and peaceful leafy trails full of wildlife, and the picturesque Victoria Park add to the appeal of this well-connected yet characterful neighbourhood.

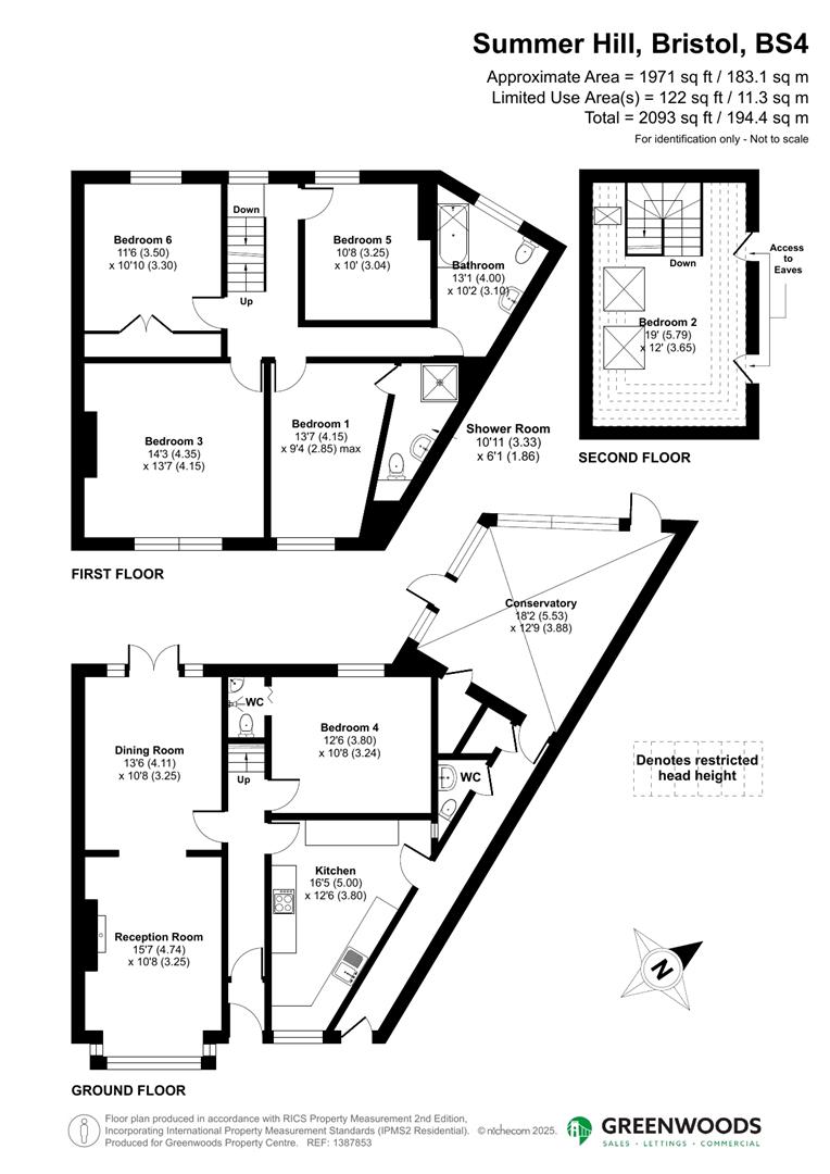
A unique and substantial house measuring in at approximately 1900 sq ft. The property offers flexible accommodation with up to six bedrooms. The ground floor features a large double reception room along with a separate kitchen and versatile guest bedroom with en-suite w.c. There is private side access from the street all the way down to the garden room to the rear. The garden is substantial and is a wildlife haven offering plenty of opportunities and potential for those who want a bit of a project. Upstairs there are four bedrooms, one has an en suite, as well as an additional family bathroom. The loft has been converted into another double bedroom. This would be an ideal property for the decerning buyer who is looking to put their own stamp on their new home.

With open outlooks over neighbouring properties, this character-filled home is just waiting to be to be snapped up, earlier viewing is thoroughly recommended.

Sitting Room - 4.75m x 3.25m (15'7 x 10'8) -

Dining Room - 4.11m x 3.25m (13'6 x 10'8) -

Bedroom Four (Ground Floor) - 3.81m x 3.30m (12'6 x 10'10) -

Kitchen - 5.00m max x 3.81m max (16'5 max x 12'6 max) -

Conservatory - 5.54m x 3.89m (18'2 x 12'9) -

Bedroom One - 4.14m x 2.84m max (13'7 x 9'4 max) -

En-Suite Shower Room - 3.33m x 1.85m (10'11 x 6'1) -

Bedroom Two (Loft) - 5.79m x 3.66m (19 x 12) -

Bedroom Three - 4.34m x 4.14m (14'3 x 13'7 ) -

Bedroom Five - 3.25m x 3.05m (10'8 x 10) -

Bedroom Six - 3.51m x 3.30m (11'6 x 10'10 ) -

Family Bathroom - 3.99m x 3.10m (13'1 x 10'2) -

Tenure - Freehold -

Council Tax Band - C -

Property Ref: 34430839

Share:

Similar Properties

William Street, Totterdown, Bristol

2 Bedroom Terraced House | £450,000

Situated on the ever popular William Street, this well presented two-bedroom Victorian terraced home blends characterful...

Tyning Road, Bristol

3 Bedroom Terraced House | £450,000

Situated on the ever-popular Tyning Road, this well presented three bedroom home comes to market offering a plenty of in...

Balmain Street, Bristol

3 Bedroom Terraced House | £450,000

This charming home has been thoughtfully and extensively refurbished by the current owner, now offering bright, contempo...

Priory Road, Knowle, Bristol

3 Bedroom Semi-Detached House | £475,000

This three bedroom Victorian home is bursting with character and ready for a transformative touch. Retaining beautiful o...

Hazelbury Road, Whitchurch

3 Bedroom Semi-Detached House | £475,000

OFFERED TO MARKET WITH NO ONWARD CHAIN.This extended and beautifully presented 1930s style three-bedroom semi-detached f...

New Fosseway Road, Bristol

3 Bedroom Semi-Detached House | £475,000

Set just off the A37 Wells Road on New Fosseway Road, this beautifully extended three bedroom semi detached family home...

Greenwoods Property Centre (Knowle)

Wells Road, Knowle, Bristol, BS4 2AG

01179 777 672

How much is your home worth?

Use our short form to request a valuation of your property.

Request a Valuation

Mortgage Calculator

Amount Borrowed: £
Total Amount Repayable: £
Total Monthly Payment: £
©2026 The Guild of Property Professionals. All rights reserved. Terms and Conditions | Privacy Policy | Cookie Policy | Complaints Policy | Members Login
The Guild of Property Professionals Trading Address: 121 Park Lane, London W1K 7AG. GPEA Limited. Registered in England & Wales.  Company No: 02819824.  Registered Office Address: 2 St. Stephen's Court, St. Stephen's Road, Bournemouth, Dorset, England, BH2 6LA.  VAT Registration No: 576 8795 61
Book a Property Valuation Update Cookies Preferences