Gilda Crescent, Whitchurch, Bristol

£270,000
SSTC
This property listing is now SSTC

2 Bedroom Terraced House for sale in Bristol

1 2 1
  • Energy Rating - C
  • Two Bedroom Home
  • Double Driveway Providing Off Street Parking
  • UPVC Double Glazed & Gas Central Heating
  • Light Airy & Modern Throughout
  • Kitchen/Diner
  • Close To Local Amenities
  • Perfect For First Time Buyers

Welcome to this beautifully presented two bedroom home. Set on Gilda Crescent, it enjoys a wonderfully convenient position with bus routes into the city centre and beyond just a short stroll away, along with easy access to local amenities.

This is a fantastic option for first time buyers looking for comfort, practicality and a touch of style. The property has been carefully maintained and offers a well considered layout, featuring a warm and inviting lounge and a modern kitchen diner complete with built in oven and hob.

Upstairs, you will find two well proportioned double bedrooms, with bedroom one benefiting from built in wardrobes, along with a family bathroom fitted with a shower over the bath.

The home also enjoys modern comforts including UPVC double glazing and efficient gas central heating via a combination boiler. At the front, a double driveway provides valuable off street parking.

To the rear, the garden, accessed from the kitchen diner, is arranged with patio and AstroTurf for low maintenance living, creating a lovely space to relax or entertain.

In short, this is an easy home to settle into and a wonderful opportunity for anyone starting out on their home ownership journey.

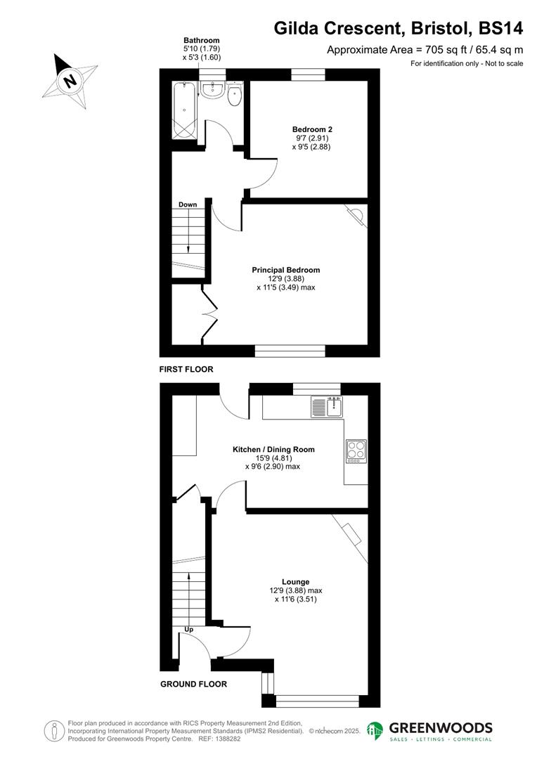
Living Room - 3.88 max x 3.51 (12'8" max x 11'6") -

Kitchen/Dining Room - 4.81 x 2.90 max (15'9" x 9'6" max) -

Bedroom One - 3.88 x 3.49 max (12'8" x 11'5" max ) -

Bedroom Two - 2.91 x 2.88 (9'6" x 9'5") -

Bathroom - 1.79 x 1.60 (5'10" x 5'2") -

Tenure Status - Freehold -

Council Tax - Band B -

Property Ref: 34349990

Share:

Similar Properties

Lampton Grove, Hartcliffe

3 Bedroom Terraced House | £270,000

This lovely mid-terrace family home on Lampton Grove is ready to move into, while also offering plenty of potential to u...

Kylross Avenue, Whitchurch, Bristol

2 Bedroom End of Terrace House | £270,000

A Fantastic Opportunity in a Peaceful Whitchurch Cul-de-SacTucked away in a quiet cul-de-sac just off Gilda Crescent, th...

Richmond Street, Bristol

2 Bedroom Flat | £265,000

Offered to the market with NO ONWARD CHAIN this impressive two bedroom property benefits from two double bedrooms, commu...

Leinster Avenue, Knowle, Bristol

3 Bedroom End of Terrace House | £279,000

This well-presented three-bedroom home offers comfortable and practical living space, ideal for families or first-time b...

Wardour Road, Knowle, Bristol

3 Bedroom Semi-Detached House | £280,000

Offered to the market with NO ONWARD CHAIN this three bedroom semi detached home offers plenty of space inside and out!A...

Creswicke Road, Bristol

3 Bedroom House | £280,000

**NO ONWARD CHAIN** This refurbished home offers plenty inside and out, with three bedrooms, family bathroom, cloakroom...

Greenwoods Property Centre (Knowle)

Wells Road, Knowle, Bristol, BS4 2AG

01179 777 672

How much is your home worth?

Use our short form to request a valuation of your property.

Request a Valuation

Mortgage Calculator

Amount Borrowed: £
Total Amount Repayable: £
Total Monthly Payment: £
©2026 The Guild of Property Professionals. All rights reserved. Terms and Conditions | Privacy Policy | Cookie Policy | Complaints Policy | Members Login
The Guild of Property Professionals Trading Address: 121 Park Lane, London W1K 7AG. GPEA Limited. Registered in England & Wales.  Company No: 02819824.  Registered Office Address: 2 St. Stephen's Court, St. Stephen's Road, Bournemouth, Dorset, England, BH2 6LA.  VAT Registration No: 576 8795 61
Book a Property Valuation Update Cookies Preferences