Dunkerry Road, Bristol

Offers in region of
£245,000
SSTC
This property listing is now SSTC

1 Bedroom Maisonette for sale in Bristol

1 1 1
  • Open Plan Living Space
  • Stunning Views
  • Popular Location
  • Share of Freehold (Crossover Lease)
  • EPC - C
  • Two Floor Apartment
  • NO ONWARD CHAIN
  • Modern Decor

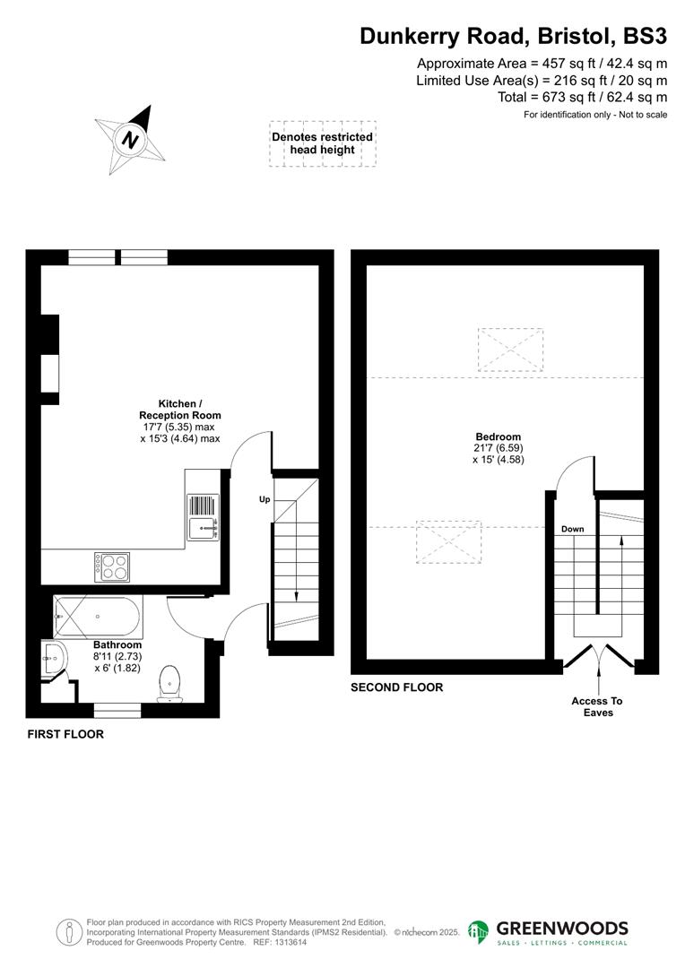
Situated in the ever-popular area of Windmill Hill, this property is a unique offering, split over two levels of living space, totaling over 670 sq ft of floor space and profiting from stunning views across Bristol. This home is ready for it's new owner and brought to market with NO ONWARD CHAIN.

Upon entering the building you are greeted into a communal space shared with the lower ground property, entrance to the flat is permitted up a staircase, as you step into the property, the bathroom is immediately to your left, this is a contemporary space comprising of the classic ceramic three piece arrangement. The large window offers breath taking views across Bristol, certainly a feature that caught the eye of the current owner when purchasing it themselves and it's easy to see why.
Leading on we find the expansive, open-plan living/kitchen space, measuring 17'7ft x 15'3ft to maximum points. This room is large enough to act as a home office, living room, dining space and kitchen, as is the current arrangement, ideal for hosting friends or family. A feature iron faced fireplace proudly sits as the central feature to this great space.
On the top floor is the bedroom, similarly to downstairs has a large floor space enough for plenty of storage further seating to the side of the bed. Two velux's in the roof allow natural light and control of airflow when required.

Windmill Hill is known locally for the fantastic views (as the property benefits) over the city, countryside and nearby green spaces, such as Victoria Park. The area has become increasingly sought after in Bristol over recent years, popular with many for its picturesque streets of charming period properties and the character they offer.

Please note this property forms a cross over lease with the below apartment 981 years remaining.

Bedroom - 6.59 x 4.56 (21'7" x 14'11") -

Open Plan Living Space - 5.35 x 4.64 (17'6" x 15'2") -

Bathroom - 2.73 x 1.82 (8'11" x 5'11") -

Tenure - Cross Over Lease -

Council Tax Band - A -

Epc - C -

Property Ref: 33990445

Share:

Similar Properties

Fitzroy Street, Totterdown, Bristol

1 Bedroom Flat | £245,000

Located on the desirable Fitzroy Street in UPPER TOTTERDOWN, a stone's throw away from the picturesque Arnos Vale Cemete...

Pomfrett Gardens, Bristol

3 Bedroom Terraced House | £240,000

Greenwoods are pleased to present this chain free three bedroom terraced home, perfectly positioned in the ever popular...

Wallingford Road, Knowe, Bristol

3 Bedroom Semi-Detached House | £240,000

This delightful three-bedroom semi-detached home presents a fantastic opportunity for families and first-time buyers ali...

Temple Street, Bedminster, Bristol

2 Bedroom End of Terrace House | £250,000

CASH BUYERS ONLY - Full Renovation Opportunity in Popular BedminsterThis period end-terrace property offers a fantastic...

Hazelbury Road, Whitchurch, Bristol

3 Bedroom Semi-Detached House | Guide Price £250,000

This three bedroom home is offered to market with NO ONWARD CHAIN.Upon entering the property you are welcomed into a spa...

Tibbott Road, Stockwood, Bristol

3 Bedroom Terraced House | £250,000

Located on Tibbott Road in the heart of Stockwood, this three bedroom terraced family home offers a great opportunity fo...

Greenwoods Property Centre (Knowle)

Wells Road, Knowle, Bristol, BS4 2AG

01179 777 672

How much is your home worth?

Use our short form to request a valuation of your property.

Request a Valuation

Mortgage Calculator

Amount Borrowed: £
Total Amount Repayable: £
Total Monthly Payment: £
©2026 The Guild of Property Professionals. All rights reserved. Terms and Conditions | Privacy Policy | Cookie Policy | Complaints Policy | Members Login
The Guild of Property Professionals Trading Address: 121 Park Lane, London W1K 7AG. GPEA Limited. Registered in England & Wales.  Company No: 02819824.  Registered Office Address: 2 St. Stephen's Court, St. Stephen's Road, Bournemouth, Dorset, England, BH2 6LA.  VAT Registration No: 576 8795 61
Book a Property Valuation Update Cookies Preferences