King Street, Brixham

Guide Price
£675,000

3 Bedroom Terraced House for sale in Brixham

2 3 3
  • Only Front Row Property With Integral Garage
  • The Best Panoramic Town, Harbour & Sea Views
  • Excellent Size & Steeped With History & Character
  • Very Easy Access To The Town & Water's Edge
  • Freehold
  • Council Tax Band Exempt

Front row house with the rare ingredients of panoramic HARBOUR & SEA VIEWS, outside space and INTEGRAL GARAGE. 3 bedrooms (2 en suite).

Nestled in the heart of Brixham's highly sought-after conservation area on King Street, this property offers a truly rare opportunity for discerning buyers. The property was believed to have been owned by the Earl of Sandwich, then laterly a Mr W. Arscott, he was the proprietor and owner of the King Street Dairy and supplied the town twice daily with Devonshire cream, fresh fruit & veg, butter and eggs.

Boasting a prime waterfront location with unobstructed views of the harbour, town, and out to sea, this residence is the perfect Brixham base. The slightly elevated position enhances its appeal, providing a unique "crow's nest" perspective of the surrounding beauty. With an integral garage - a rarity for this location, this home combines convenience with stunning views, making it one of King Street's most desirable properties.

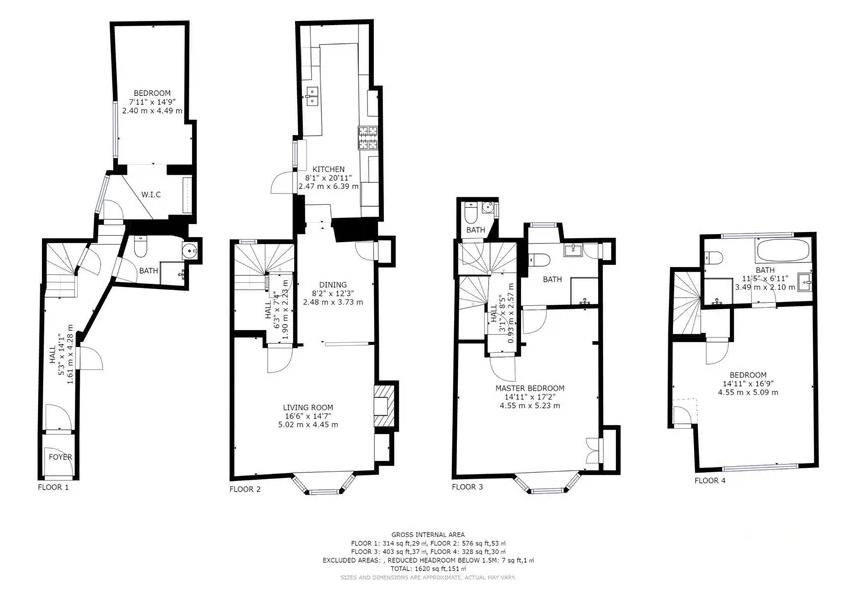
Steeped in history, the property is a beautifully refurbished Georgian-era fisherman's cottage that exudes character and charm. The thoughtful renovation has preserved its authentic features, including limestone walls, wood beams, and quality oak doors, while seamlessly incorporating modern comforts like gas central heating and double glazing. Spanning four floors, the cottage offers a spacious, warm, and inviting atmosphere, where historic elements meet contemporary living. This blend of old and new ensures that the property retains its unique charm while providing all the conveniences of modern life.

The house is a prime example of Brixham's rich maritime heritage, now transformed into a luxurious and comfortable home. The property features three impressive double bedrooms, including an en-suite shower room, an en-suite bathroom, and an additional shower room, all meticulously designed with high-quality finishes. The upper levels of the home offer panoramic views that can be enjoyed from several bay windows or the top-level rear garden, perfect for relaxing or entertaining. This combination of historical significance and modern luxury makes this property a standout in the harbour bowl.

It is not only a beautiful home but also an extremely successful holiday let, with onward bookings available for the next owner. Its prime location on the waterfront, combined with its spacious and well-appointed interiors, has made it a popular choice for visitors seeking a memorable stay in Brixham. The inclusion of a large integral garage measuring 5.11m x 3.91m is a rare find in this area, adding significant value and appeal. The property's top-to-bottom renovation ensures that guests experience the perfect blend of comfort and charm, making it a highly desirable holiday destination.

Arguably one of King Street's most desirable residences, the house offers a unique blend of location, history, and luxury. The good-sized rear patios, particularly the top level, provide a serene escape with panoramic views of the harbour and beyond. Inside, the property is brimming with character, from the warm wood accents and beams to the luxurious finish. Whether as a cherished home or a lucrative holiday let, this property stands as a testament to the timeless appeal of Brixham's waterfront living.

Currently the owners pay business rates, however the property was previously council tax band E.

Property Ref: 16995_33311998

Share:

Similar Properties

Bala Brook Close, Brixham

3 Bedroom Detached Bungalow | Guide Price £675,000

Nestled in the charming area of Bala Brook Close, Brixham, this delightful detached bungalow offers a spacious and comfo...

Mathill Road, Brixham

4 Bedroom House | £674,950

NO ONWARD CHAIN! A sprawling and stylish architect designed 4/5 bedroom detached family home on a large, level plot COMP...

Upton Manor Road, St Marys, Brixham

4 Bedroom Detached House | £660,000

Stylish DETACHED FAMILY HOME with 4 double bedrooms (one en suite). Located in a sought after location opposite St Mary'...

Douglas Avenue, Brixham

4 Bedroom Detached House | Guide Price £689,000

Enjoy breathtaking sea views from this elevated four-bedroom split-level home overlooking St Mary's Bay, offering spacio...

Horsepool Street, Brixham

3 Bedroom Detached House | Guide Price £695,000

Nestled on Horsepool Street in Brixham, this charming detached house boasts three spacious reception rooms, three comfor...

Milton Street, Brixham

3 Bedroom Detached House | Guide Price £699,000

A UNIQUE GRADE II LISTED 17th CENTURY HOUSE ON A LARGE PLOT! With outstanding options for parking and storage, this beau...

Boyce Brixham (Brixham)

49 Fore Street, Brixham, Devon, TQ5 8AG

01803 852736

How much is your home worth?

Use our short form to request a valuation of your property.

Request a Valuation

Mortgage Calculator

Amount Borrowed: £
Total Amount Repayable: £
Total Monthly Payment: £
©2025 The Guild of Property Professionals. All rights reserved. Terms and Conditions | Privacy Policy | Cookie Policy | Complaints Policy | Members Login
The Guild of Property Professionals Trading Address: 121 Park Lane, London W1K 7AG. GPEA Limited. Registered in England & Wales.  Company No: 02819824.  Registered Office Address: 2 St. Stephen's Court, St. Stephen's Road, Bournemouth, Dorset, England, BH2 6LA.  VAT Registration No: 576 8795 61
Book a Property Valuation Update Cookies Preferences