Masty Fields Farm, Evesham Road

Guide Price
£1,850,000

5 Bedroom Detached House for sale in Broadway

3 5 3
  • Detached 5 bedroom home
  • Luxury specification
  • Double garage
  • Electric gates
  • Estimated EPC Rating 'A'
  • Solar Panels

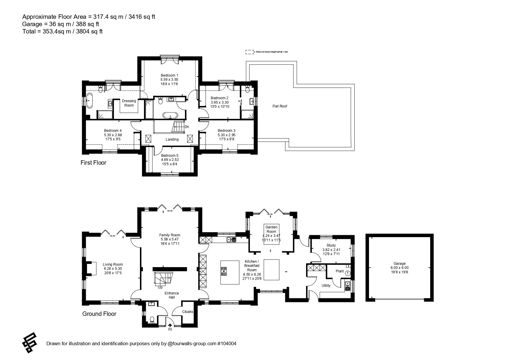
A detached Cotswold stone house by Hagley Homes on the edge of the village with exceptional views to Broadway Tower, nearing completion. Accommodation extending to over 3400 sq ft.

Entrance hall, cloakroom, 2 reception rooms one with log burning stove, large kitchen/dining room with bespoke kitchen, integrated appliances and roof lantern, garden room, boot room, study, master bedroom suite with dressing room, ensuite and Juliet balcony, guest bedroom suite, three further bedrooms and bathroom.

Private drive leading to parking area with electric gates, double garage with automated door and good sized garden.

The luxury specification includes:

Air source heat pump supplying heating and hot water.

Solar panels.

Underfloor heating to the ground floor.

Bespoke kitchen with quartz worktops, Neff integrated appliances and large island.

Flooring throughout.

Log burning stove.

Triple glazed aluminium windows

Fitted wardrobes.

Note: The images provided are computer generated and are provided to give representation of the proposed property and cannot be relied upon for accuracy.

Important Information

  • This is a Freehold property.

Property Ref: BRD240535

Share:

Similar Properties

Lavender Drive

5 Bedroom Detached House | Offers in excess of £1,700,000

A beautifully presented detached contemporary home forming part of an exclusive development of individual propertiesAcco...

Main Street

4 Bedroom Detached House | Guide Price £1,600,000

A superb architect designed home of over 3,100 sq ft of accommodation, tucked away in this popular village with lovely p...

High Street

4 Bedroom Semi-Detached House | Offers in excess of £1,450,000

A fine period Grade II listed home situated in one of the most sought after North Cotswold villagesAccommodation compris...

High Street

4 Bedroom Detached House | Guide Price £2,500,000

If you are searching for a high quality Cotswold stone home in Broadway we have a number of properties available off mar...

Hayman-Joyce (Broadway)

Broadway, Worcestershire, WR12 7DT

01386858510

How much is your home worth?

Use our short form to request a valuation of your property.

Request a Valuation

Mortgage Calculator

Amount Borrowed: £
Total Amount Repayable: £
Total Monthly Payment: £
©2026 The Guild of Property Professionals. All rights reserved. Terms and Conditions | Privacy Policy | Cookie Policy | Complaints Policy | Members Login
The Guild of Property Professionals Trading Address: 121 Park Lane, London W1K 7AG. GPEA Limited. Registered in England & Wales.  Company No: 02819824.  Registered Office Address: 2 St. Stephen's Court, St. Stephen's Road, Bournemouth, Dorset, England, BH2 6LA.  VAT Registration No: 576 8795 61
Book a Property Valuation Update Cookies Preferences