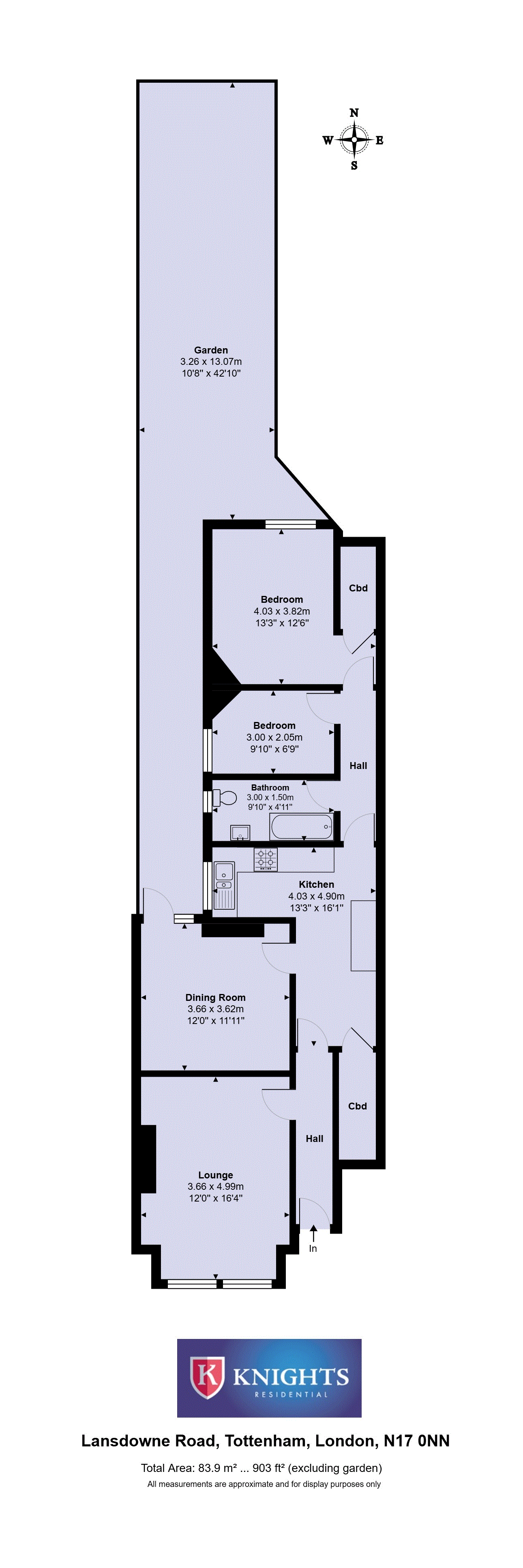
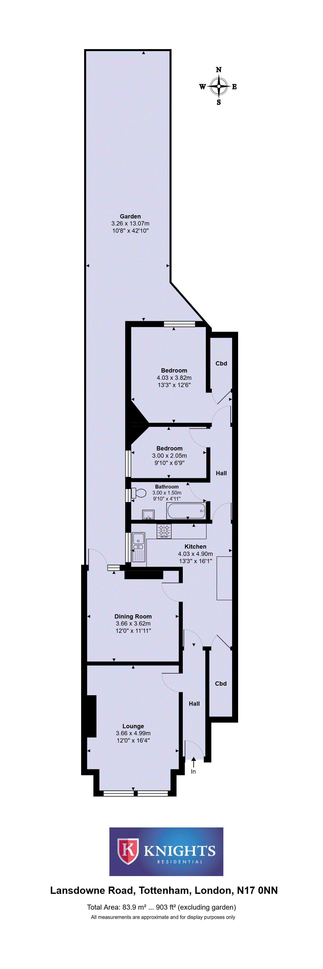
Lansdowne Road , Bruce Grove, London, N17

Guide Price
£450,000

3 Bedroom Flat for sale in Bruce Grove

1 3 1
  • Ground floor Victorian Maisonette
  • Sole use of rear Garden
  • over 900 sq. ft of living space
  • Three Bedrooms
  • Reception room with period Fire place
  • Three piece bathroom suite
  • High Ceilings
  • Chain Free
  • Lease 89 with extension quote in place
  • Call Knights to book your viewing

Chain free!  Charming period property with Own Private Garden!! Knights Residential are delighted to offer for sale this Amazing Three-bedroom Ground Floor Victorian Maisonette occupying over 900 sq. ft of living space. This property is an ideal first time buy or investment purchase.  Please Call to Knights register your interest and book your viewing.
 

Our Vendor Has informed us of the following information.
Lease remaining: 89 Years
Service Charges: NIL
Buildings Insurance: 342.39 per annum
Ground Rent: 250 per annum.
EPC Rating: C 71
Lease Extension quote provided by the freeholder is 13,000 plus admin costs for an additional 90 years. Please call the office for further details.

 
This lovely home sits in the heart of a friendly neighbourhood where young families can settle their roots due to a good community spirit and well-regarded primary schools in the area.
Exciting and vibrant neighbourhood currently undergoing an impressive regeneration programme. You will be able to take a short stroll to the historic Bruce Castle Museum with its adjoining park and take your pick from a multitude of restaurants, coffee shops and pubs along the High Road, including the newly opened Blue coats Pub.
 
Walking distance to Tottenham Hale Train and Underground Station (Zone 3) providing quick access into central London.
Lansdowne road is known to have large beautiful houses and very close to outstanding nurseries and schools. Tottenham is one the most popular up and coming parts of London and you are near to some exciting places including Craving Coffee, Beaverton Brewery and Five Miles. For those of you who like walking you’re nestled between three attractive parks. For open water swimmers the best venue in London, West Reservoir, is just a 15 minute cycle away. Several other pools and an outdoor lido are close by. Located within less than a 10 minute walk of Bruce Grove Overground Station or 20 minute walk from Victoria Line Zone 3 Underground Stations at Seven Sisters and Tottenham Hale for quick and convenient access to the West End and City.

Our Vendor Has informed us of the following information.
Lease remaining: 89 Years
Service Charges: NIL
Buildings Insurance: 342.39 per annum
Ground Rent: 250 per annum.
EPC Rating: C 71
Lease Extension quote provided by the freeholder is 13,000 plus admin costs for an additional 90 years. Please call the office for further details.

Important Information

  • This is a Leasehold property.

Property Ref: THM_DWR0014AE

Share:

Similar Properties

Vicarage Road, London, N17

2 Bedroom Terraced House | Guide Price £450,000

Well presented 2 Bedroom terrace home for sale, located in a desirable location within a walking distance to the Tottenh...

Vicarage Road, London, N17

2 Bedroom End of Terrace House | Guide Price £450,000

Stunning 2 Bedroom end of terrace home for sale, located in a desirable location within a walking distance to the Totten...

st loys, london, N17

3 Bedroom House | Offers in region of £450,000

3 Bedroom Victorian Terraced house located within a walking distance to Bruce Grove station. This property is in need of...

Worcester Avenue, Tottenham, London, N17

3 Bedroom House | £459,950

3 Bedroom 1930's style house located in the heart of Tottenham re-generation. This bay fronted property benefits from be...

Sperling Road, Bruce Grove, London, N17

3 Bedroom House | £460,000

Knights are pleased to offer for sale this Two/Three Bedroom Victorian Freehold house. In our opinion The property is we...

Flexmere road, London, N17

3 Bedroom House | Guide Price £460,000

Knights Residential are delighted to offer this tasteful large 3 Bedroom Semi-detached home located off The Roundway. Th...

Knights Residential (Tottenham)

Tottenham, London, N17 9TA

0208 885 6800

How much is your home worth?

Use our short form to request a valuation of your property.

Request a Valuation

Mortgage Calculator

Amount Borrowed: £
Total Amount Repayable: £
Total Monthly Payment: £
©2025 The Guild of Property Professionals. All rights reserved. Terms and Conditions | Privacy Policy | Cookie Policy | Complaints Policy | Members Login
The Guild of Property Professionals Trading Address: 121 Park Lane, London W1K 7AG. GPEA Limited. Registered in England & Wales.  Company No: 02819824.  Registered Office Address: 2 St. Stephen's Court, St. Stephen's Road, Bournemouth, Dorset, England, BH2 6LA.  VAT Registration No: 576 8795 61
Book a Property Valuation Update Cookies Preferences