Newry Road, Builth Wells, LD2

£295,000
SSTC
This property listing is now SSTC

4 Bedroom Detached House for sale in Builth Wells

2 4 2
  • Please note - any sale agreed is subject to Probate being granted
  • Situated on Newry Road, one of Builth Wells’ most sought-after residential locations.
  • Spacious detached family home offering generous proportions and excellent potential to personalise
  • Large L-shaped main reception room with dual-aspect windows providing superb natural light
  • Separate dining room, study/optional fifth bedroom, and cloakroom/WC on the ground floor
  • Four bedrooms upstairs, including a principal bedroom with en-suite and a modern family bathroom
  • Lovely outlooks – views over Builth Wells to the front and towards Garth Hill to the rear
  • Carport and veranda, private mature gardens with raised decking, and a low-maintenance rear garden
  • Council tax band - F (2025-6 £3,126.15)
  • Energy performance certificate - D

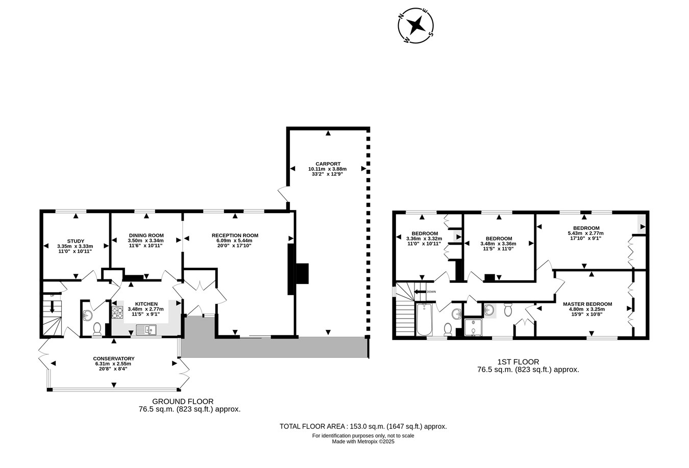
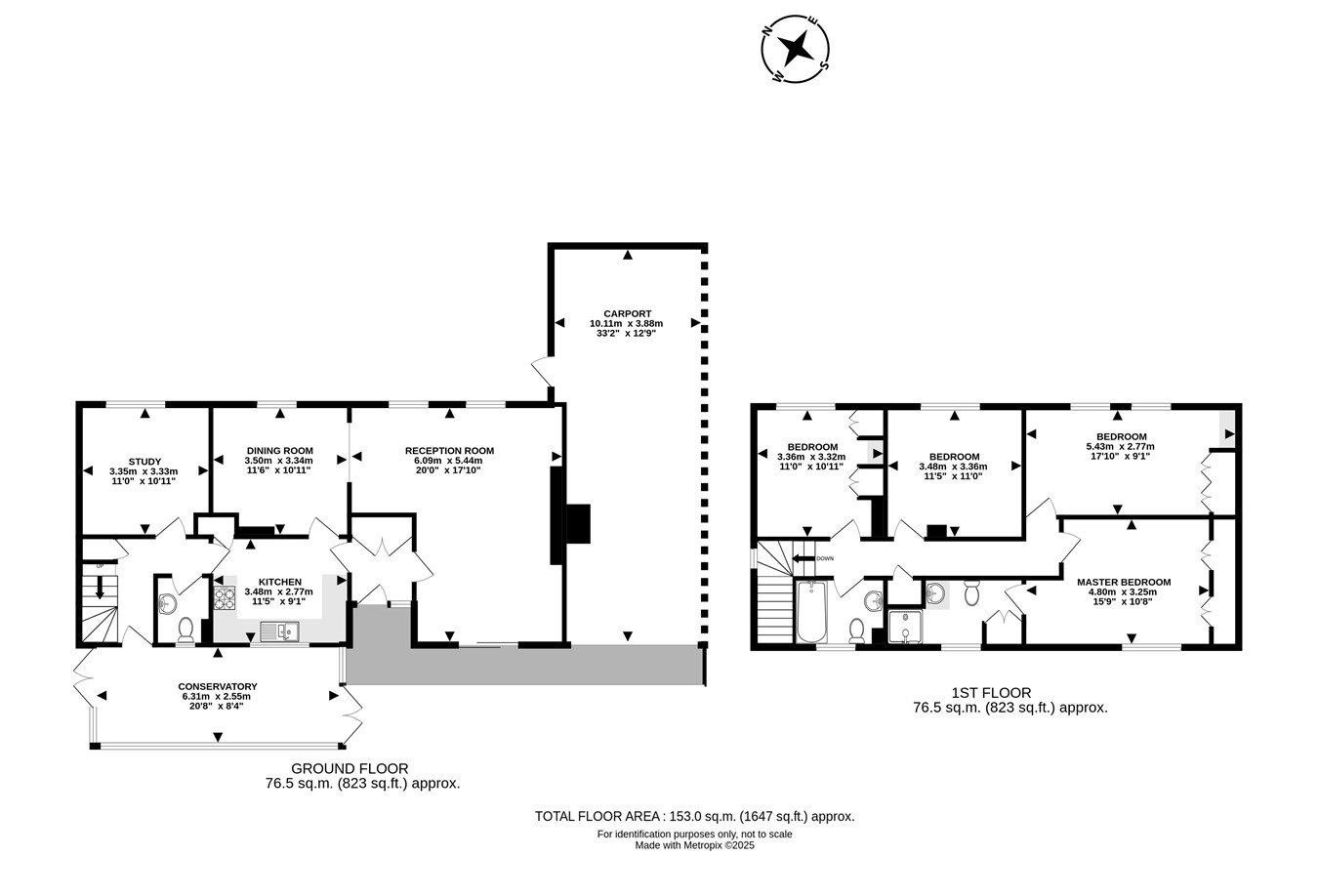
Set in one of Builth Wells’ most sought-after residential locations, this spacious detached family home offers a wonderful opportunity for a new owner seeking generous proportions and excellent potential to create a truly individual home.

Occupying a prime position on Newry Road, Westfield enjoys attractive gardens and far-reaching views - overlooking the town to the front, with Garth Hill providing a picturesque backdrop to the rear. The property offers flexible accommodation extending to approximately 1,647 sq.ft., thoughtfully arranged across two floors. The ground floor features a welcoming entrance hall with double storage cupboard leading through to a large, L-shaped main reception room with dual-aspect windows, filling the space with natural light and offering ample room for both living and dining areas if desired. A separate dining room sits conveniently off the kitchen, creating an ideal layout for family living or entertaining. The study, which has previously served as a ground-floor bedroom, adds versatility to the home, while a cloakroom/WC completes the ground floor.The kitchen provides a practical workspace with nearby access to the conservatory - a bright and inviting spot that opens onto the garden, perfect for enjoying morning coffee or evening sunsets.

Upstairs, there are four well-proportioned bedrooms, including a principal bedroom with an en-suite shower room, complemented by a family bathroom. The rear bedrooms enjoy particularly fine views across the surrounding countryside towards Garth Hill, while the front bedrooms take in elevated views over Builth Wells.

Outside, the property benefits from a carport adjoining a veranda that extends across the front of the house, linking the carport to the front entrance. The mature front garden offers privacy and charm, being laid mainly to lawn with a raised decking area providing an excellent vantage point to enjoy surroundings. To the rear, the low-maintenance garden offers a manageable outdoor space ideal for relaxation or further landscaping.

Although the property would now benefit from some modernisation, this presents the perfect opportunity for a purchaser to put their own stamp on a home that already enjoys an enviable location, generous proportions, and a flexible layout. Westfield represents a rare chance to acquire a detached family home in one of Builth Wells’ premier addresses - combining space, potential, and superb views in equal measure.

With no onward chain, this excellent property must be viewed to be fully appreciated. Please note: any sale agreed will be subject to probate being granted, which has already been applied for.

Set in a prime residential spot just a mile from the heart of Builth Wells, this property enjoys both tranquillity and convenience on the town’s sought-after southern edge, close to the renowned Garth Hill and miles of countryside walks. Builth Wells itself is a historic market town, once an important medieval stronghold with its castle guarding the River Wye, and today offers a thriving mix of amenities including schools, leisure facilities, a cinema, and vibrant sporting clubs. Just across the river in Llanelwedd, the town proudly hosts the world-renowned Royal Welsh Show - the largest agricultural event in Europe. With excellent transport links via the Heart of Wales railway line and direct bus routes between Cardiff and North Wales, Builth Wells has become a destination of choice for those seeking a balance of community, culture, and countryside. Nestled in the picturesque Wye Valley and within easy reach of the Elan Valley at Rhayader, the area is celebrated as a walker’s paradise, while nearby Gigrin Farm offers the unforgettable spectacle of daily Red Kite feeding – a reminder of the region’s rich natural heritage.

Important Information

  • This is a Freehold property.

Property Ref: 29700350

Share:

Similar Properties

Maeshendre, Cilmery, Builth Wells, LD2

3 Bedroom Detached House | £295,000

***BRAND NEW HOME IN A VILLAGE POSITION!!!*** This fantastic family home located centrally in the village of Cilmery is ...

Dyffryn Road, Llandrindod Wells, LD1

6 Bedroom Semi-Detached House | £285,000

A beautifully presented late-Victorian/early-Edwardian family home set on a sought-after residential street just moments...

Dyffryn Road, Llandrindod Wells, LD1

4 Bedroom Semi-Detached House | £285,000

Discover St. Ives, a stunning late-Victorian semi-detached family home where classic character meets modern living. With...

Garth, Llangammarch Wells, LD4

4 Bedroom Semi-Detached House | £297,500

An exceptional four-bedroom family home, beautifully restored and thoughtfully extended to create a stunning blend of ch...

Crabtree Green, Llandrindod Wells, LD1

4 Bedroom Detached Bungalow | Offers in excess of £300,000

This executive-style, four-bedroom family residence is beautifully positioned on the northern outskirts of Llandrindod W...

Llanyre, Llandrindod Wells, LD1

4 Bedroom Detached Bungalow | £325,000

A well-maintained four-bedroom detached Colt bungalow set in the sought-after village of Llanyre, enjoying superb views...

James Dean The Estate Agents Builth (Builth Wells)

Builth Wells, Powys, LD2 3AB

01982 552 537

How much is your home worth?

Use our short form to request a valuation of your property.

Request a Valuation

Mortgage Calculator

Amount Borrowed: £
Total Amount Repayable: £
Total Monthly Payment: £
©2026 The Guild of Property Professionals. All rights reserved. Terms and Conditions | Privacy Policy | Cookie Policy | Complaints Policy | Members Login
The Guild of Property Professionals Trading Address: 121 Park Lane, London W1K 7AG. GPEA Limited. Registered in England & Wales.  Company No: 02819824.  Registered Office Address: 2 St. Stephen's Court, St. Stephen's Road, Bournemouth, Dorset, England, BH2 6LA.  VAT Registration No: 576 8795 61
Book a Property Valuation Update Cookies Preferences