Maeshendre, Cilmery, Builth Wells, LD2

£350,000

3 Bedroom Detached House for sale in Builth Wells

2 3 2
  • ***BRAND NEW DETACHED ENERGY EFFICIENT FAMILY HOME***
  • 10 year NHBC warranty
  • Select development of only six dwellings
  • Central village location in the heart of glorious Mid-Wales
  • Three good-sized bedrooms with en-suite to master
  • Renowned local builder
  • Views over stunning Mid-Wales countryside
  • Plenty of off road parking and integral garage
  • Viewings are highly encouraged to appreciate size and quality

A fantastic opportunity to purchase a brand new home on a select development in a central position within Cilmery, just a couple of miles from the thriving market town of Builth Wells!

These fine, energy efficient properties are being constructed by established local builder Andrew M Davies, Builders and Development Contractors, who have an excellent reputation in the area and will have the benefit of an NHBC 10 year warranty, LPG fired central heating and uPVC windows and fascias. This property will be finished to the developer’s usual high standard to include quality fixtures and fittings throughout.

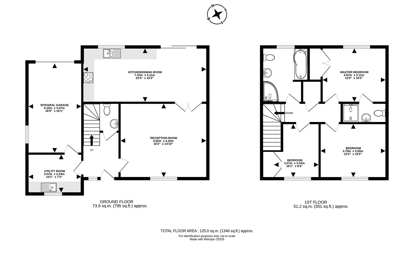
4 Maeshendre is the premier home on this select development of ultimately six properties in total. This fantastic home enjoys a canopy porch to protect the front door from the elements, opening into a large entrance hallway with downstairs WC under the stairs. To the front of the property is the main reception room - a lovely space to relax, and to the rear is an impressive kitchen/dining room which spans the width of the house. Here there is ample space for food preparation, cooking and dining, and the benefit of sliding doors to the rear garden. The ground floor is complemented by a useful utility room with door leading to the integral garage.

The first floor will consist of three good-sized bedrooms, with the master enjoying an en-suite shower room. The second and third bedrooms are located to the front of the property, with far-reaching views across the A483 to the Mid-Wales countryside a particular highlight. The family bathroom will have a modern suite of bath, separate corner shower cubicle, low flush WC and wash hand basin.

Externally, the property will benefit from private front and rear gardens, being nicely set back from the road. The front garden will be laid mainly to lawn, and the rear garden will also be a pleasant lawned area. Adjacent to the garden, there will be a driveway leading up to an integral single garage.

***Please note carpets are not included in the price, although kitchen, bathroom and en-suite flooring are. Viewings are highly recommended on these high quality, energy efficient homes!

***Please note the internal photographs used in this advert are from 1 Maeshendre, this property will be completed to the same exacting standards.

 

Telephone & Broadband: Telephone- subject to BT transfer regulations. According to comparethemarket.com the property has a broadband speed of: 57.98 Mbps (average speed of Mbps).

Please note you should always confirm this by speaking to the specific provider you would like to use. This is for guidance only.

 

Cilmery is located just over two miles from Builth Wells and enjoys a charming Public House, known for its good food and great atmosphere and has the benefit of good transport links with a Heart of Wales railway line stopping in the village and giving access to Swansea and Shrewsbury on a daily basis. Just a short two and a bit mile drive to the East brings you to the thriving market town of Builth Wells, which has a range of amenities and facilities including Primary and Secondary Schools, a cinema, leisure centre, cricket, rugby, football and golf clubs. It is also home to the internationally famous Royal Welsh Show which is the largest agricultural show in Europe. The town has good transport links, is on a bus route between Cardiff and North Wales and is also served by Builth Road Railway Station on the Heart of Wales Line. Situated within the Wye Valley, an area of natural beauty and close to the Elan Valley at Rhayader, it is well-known as a walker’s paradise whilst the Red Kite feeding centre at Gigrin Farm offers a truly unique experience to see the rare and magnificent birds on a daily basis.

Important Information

  • This is a Freehold property.

Property Ref: 7754003_28642766

Share:

Similar Properties

Crossgates, Llandrindod Wells, LD1

4 Bedroom Detached House | £330,000

A chain-free, superbly proportioned detached double-fronted home on the edge of Crossgates, with four double bedrooms, t...

Llanyre, Llandrindod Wells, LD1

4 Bedroom Detached Bungalow | £325,000

A well-maintained four-bedroom detached Colt bungalow set in the sought-after village of Llanyre, enjoying superb views...

Crabtree Green, Llandrindod Wells, LD1

4 Bedroom Detached Bungalow | Offers in excess of £300,000

This executive-style, four-bedroom family residence is beautifully positioned on the northern outskirts of Llandrindod W...

Lakeside Avenue, Llandrindod Wells, LD1

3 Bedroom Detached Bungalow | £375,000

Wonderfully proportioned three bedroom bungalow in a peaceful cul-de-sac location on the fringes of Llandrindod Wells, e...

Cortay Park, Llanyre, Llandrindod Wells, LD1

4 Bedroom Detached House | £375,000

Tucked away in the charming village of Llanyre, this beautifully appointed family home offers the perfect balance of cou...

Railway Terrace, Builth Road, Builth Wells, LD2

3 Bedroom Character Property | £399,950

A unique former railway cottage with two acres, yoga and wellness studio and extensive outbuildings, including a rare hi...

James Dean The Estate Agents Builth (Builth Wells)

Builth Wells, Powys, LD2 3AB

01982 552 537

How much is your home worth?

Use our short form to request a valuation of your property.

Request a Valuation

Mortgage Calculator

Amount Borrowed: £
Total Amount Repayable: £
Total Monthly Payment: £
©2026 The Guild of Property Professionals. All rights reserved. Terms and Conditions | Privacy Policy | Cookie Policy | Complaints Policy | Members Login
The Guild of Property Professionals Trading Address: 121 Park Lane, London W1K 7AG. GPEA Limited. Registered in England & Wales.  Company No: 02819824.  Registered Office Address: 2 St. Stephen's Court, St. Stephen's Road, Bournemouth, Dorset, England, BH2 6LA.  VAT Registration No: 576 8795 61
Book a Property Valuation Update Cookies Preferences