Tai Cae Mawr, Llanwrtyd Wells, LD5

£385,000

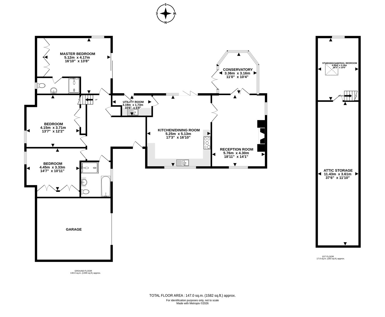
4 Bedroom Detached Bungalow for sale in Llanwrtyd Wells

2 4 2
  • Distinctive and beautifully presented family residence on the sought-after Tai Cae Mawr development, within easy reach of the town centre
  • Exceptionally spacious and versatile accommodation set within expansive, level private gardens
  • Impressive contemporary kitchen/dining room with direct access to the rear garden, complemented by a practical utility room
  • Full-width principal reception room featuring a vaulted ceiling, striking brick fireplace with wood-burning stove, and adjoining conservatory overlooking the garden
  • Three generous ground-floor double bedrooms, all with built-in wardrobes, including a principal suite with en-suite shower room and garden access
  • Well-appointed family bathroom with quality fittings and separate shower cubicle
  • Versatile first-floor study/occasional bedroom accessed via timber ladder-style stairs, ideal as a home office, snug, or guest space
  • Ample driveway parking, large garage, canopy porch, and beautifully maintained front, side and rear gardens with patio area - perfect for outdoor entertaining
  • Council tax band - E (2025-6 £2,683.09)
  • Energy performance certificate - C

A truly distinctive family residence, beautifully positioned on the sought-after Tai Cae Mawr development - an attractive modern setting of quality homes and bungalows - offering exceptionally generous accommodation, expansive level gardens, and convenient access to the town centre.

The property opens into a welcoming reception hall with useful storage, leading to an impressive contemporary kitchen/dining room designed for modern living. This superb space provides extensive areas for preparation, cooking, dining and informal relaxation, with doors opening directly onto the rear gardens. A practical utility room sits conveniently adjacent. The principal reception room spans the full width of the property and features a striking vaulted ceiling together with a wood-burning stove set within an attractive brick fireplace, creating a warm focal point. From here, a conservatory enjoys delightful views across the beautifully maintained rear garden.

The ground floor hosts three generously proportioned double bedrooms, each benefiting from built-in double wardrobes, with both the principal and guest bedrooms enjoying two wardrobes apiece. The principal suite is further enhanced by an en-suite shower room and sliding doors opening onto the garden. A well-appointed family bathroom with quality fittings and a separate shower cubicle completes the main accommodation.

A further highlight is the spacious first-floor study/occasional bedroom, accessed via timber ladder-style stairs, offering a versatile space ideal as a home office, snug, or additional guest accommodation as required.

Externally, the property occupies impressively proportioned private grounds, approached via a tarmacadam driveway providing ample parking for several vehicles and leading to a large garage and canopy porch protecting the entrance. Well-maintained front, side and rear gardens surround the home, including a delightful patio area ideal for outdoor entertaining, practical bin storage areas, and gated access to the eastern side providing convenient access to the oil tank. A superbly proportioned and versatile family home that delivers space, privacy and lifestyle appeal in equal measure - internal viewing is highly recommended.

The property is pleasantly positioned within a modern, well-maintained development on the southern fringes of Llanwrtyd Wells, a charming Mid-Wales town set along the banks of the River Irfon and surrounded by the scenic Tywi and Irfon valleys. With a population of around 1,500, it is widely recognised as one of Britain’s smallest towns, offering a strong sense of community alongside beautiful rural surroundings. Llanwrtyd Wells first rose to prominence in the 18th century following the discovery in 1732 of mineral waters at Ffynnon Ddrewllyd, leading to its development as a Victorian spa destination. Today, the town is perhaps best known for hosting the internationally renowned World Bog Snorkelling Championships and the annual Man versus Horse Marathon, both of which attract visitors from across the world. The town lies on the A483 between Llandovery and the market town of Builth Wells, approximately 13 miles away. Builth Wells, set at the meeting of the Rivers Wye and Irfon, offers a wider range of amenities and is famously home to the Royal Welsh Show, Europe’s largest agricultural show, drawing over 240,000 visitors each year.

Important Information

  • This is a Freehold property.

Property Ref: 28928728

Share:

Similar Properties

Lakeside Avenue, Llandrindod Wells, LD1

3 Bedroom Detached Bungalow | £375,000

Wonderfully proportioned three bedroom bungalow in a peaceful cul-de-sac location on the fringes of Llandrindod Wells, e...

Maeshendre, Cilmery, Builth Wells, LD2

3 Bedroom Detached House | £350,000

***BRAND NEW HOME IN A VILLAGE POSITION!!!*** This fantastic family home located centrally in the village of Cilmery is ...

Franksbridge, Llandrindod Wells, LD1

2 Bedroom Character Property | £335,000

Surrounded by glorious Mid-Wales countryside and brimming with timeless cottage charm, this captivating Welsh longhouse...

North Road, Builth Wells, LD2

4 Bedroom Detached House | £395,000

An attractive detached double-fronted period home in a prime position on North Road in Builth Wells, enjoying open views...

Lon Yr Afon, Newbridge-on-Wye, Llandrindod Wells, LD1

3 Bedroom Detached Bungalow | £399,950

A beautifully presented detached bungalow in a quiet Newbridge-on-Wye cul-de-sac, featuring a stunning rear extension an...

Railway Terrace, Builth Road, Builth Wells, LD2

3 Bedroom Character Property | £399,950

A unique former railway cottage with two acres, yoga and wellness studio and extensive outbuildings, including a rare hi...

James Dean The Estate Agents Builth (Builth Wells)

Builth Wells, Powys, LD2 3AB

01982 552 537

How much is your home worth?

Use our short form to request a valuation of your property.

Request a Valuation

Mortgage Calculator

Amount Borrowed: £
Total Amount Repayable: £
Total Monthly Payment: £
©2026 The Guild of Property Professionals. All rights reserved. Terms and Conditions | Privacy Policy | Cookie Policy | Complaints Policy | Members Login
The Guild of Property Professionals Trading Address: 121 Park Lane, London W1K 7AG. GPEA Limited. Registered in England & Wales.  Company No: 02819824.  Registered Office Address: 2 St. Stephen's Court, St. Stephen's Road, Bournemouth, Dorset, England, BH2 6LA.  VAT Registration No: 576 8795 61
Book a Property Valuation Update Cookies Preferences