Parker Drive, Buntingford

Guide Price
£470,000
SSTC
This property listing is now SSTC

3 Bedroom Semi-Detached House for sale in Buntingford

1 3 2
  • Immaculately Presented Home
  • Three Generous Bedrooms
  • En-Suite & Family Bathroom
  • Living Room
  • Kitchen/Dining Room
  • Guest Cloakroom
  • Driveway Parking
  • Landscaped Garden
  • Home Office/Garden Room
  • Close to Amenities

Immaculately presented by the current owners, this is a true turn-key property ready to move straight into. Situated in the sought after market town of Buntingford, this modern, semi-detached family home offers accommodation that includes: a welcoming entrance hall, guest cloakroom/w.c., a stylish fully integrated kitchen/dining room, and a spacious living room with direct garden access. Upstairs offers three generous bedrooms, with en-suite to the principal, plus a modern family bathroom.

The outside features an open-plan front garden, side driveway with parking for two vehicles with E.V charging point and a beautifully landscaped rear garden, complete with a purpose-built garden room/home office, ideal for todays lifestyle.

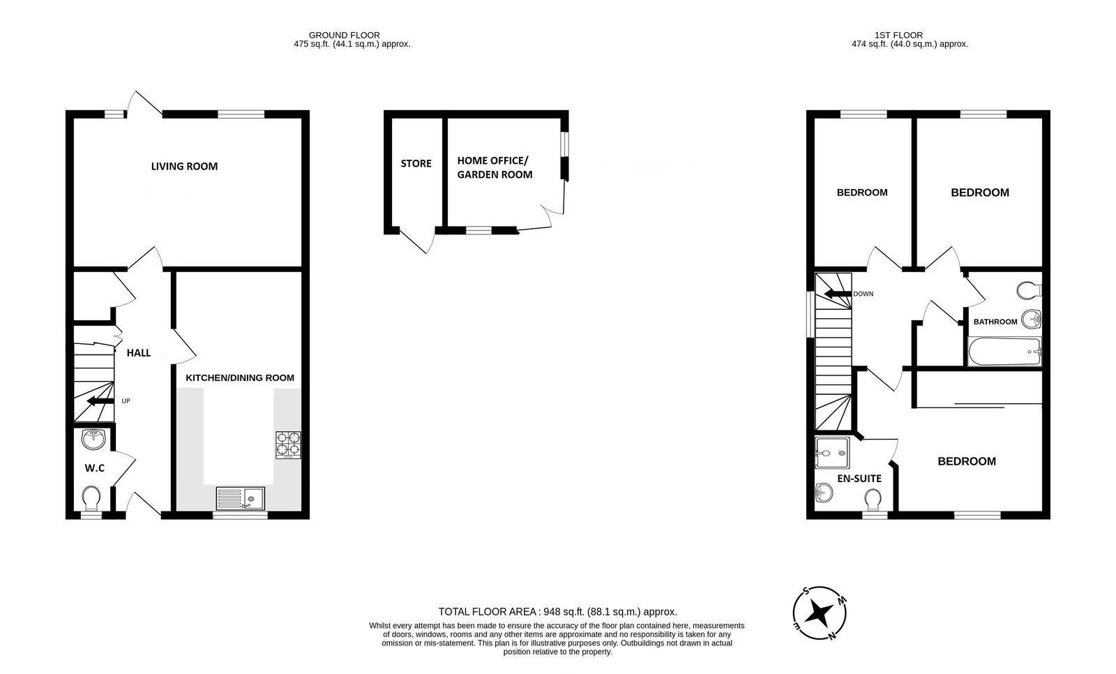
Accommodation
Front door opening to:
Reception Hall
Stairs rising to first floor with bespoke fitted storage below. Door to further deep under stairs cupboard with courtesy light and plug sockets. Radiator concealed by a stylish bespoke cover with built in drawers and oak counter top. Door to:
Guest Cloakroom/W.C
Low flush w.c. Pedestal wash hand basin. Frosted double glazed window. Tiled floor.
Kitchen/Dining Room - 5.35m x 2.84m (17'6" x 9'3")
Fully integrated kitchen with a distinct dining area providing ample space for a table and chairs. Range of wall, base and larder cabinets with complementary granite worksurfaces and matching up-risers. Inset one and a half bowl 'Blanco' sink and drainer with pull-out shower tap. Built-in 'Neff' slide and  hide electric oven/grill. Five ring gas hob with brushed steel illuminated extractor canopy over. 'Neff' combi microwave oven/grill and warming drawer. Integrated appliances to include: washing machine, dishwasher and fridge/freezer. Concealed 'Vaillant' gas fired boiler. Tiled floor. Radiator. Double glazed window to front aspect. 
Living Room - 5.05m x 3.34m (16'6" x 10'11")
Light and bright room with rear aspect double glazed window. Double glazed door with sidelight opening to the rear garden. Wood laminate flooring. Plug sockets with USB ports. Two radiators. 
First Floor
Landing with double glazed window to side. Door to airing cupboard housing hot water cylinder. The loft has a pull down ladder and is fully boarded with power and light connected.
Principal Bedroom - 3.95m x 3.24m (12'11" x 10'7")
Double glazed window to front. Attractive range of mirror fronted wardrobe cupboards to one wall. Radiator. Door to:
En-Suite Shower Room
Fully tiled in complementary ceramics and fitted with a step in shower cubicle with glazed screen, pedestal wash hand basin and a low flush w.c. Chrome heated towel rail. 
Bedroom -  3.23m x 2.79m (10'7" x 9'1")
Double glazed window to rear. Radiator.
Bedroom 3.38m x 2.19m (11'1" x 7'2")
Double glazed window to rear. Radiator.
Bathroom - 2.12m x 1.69m (6'11" x 5'6")
Modern white suite: Panel enclosed bath with mixer, hand held attachment and 'rainfall' shower head. Pedestal wash hand basin. Low flush w.c. Chrome heated towel rail. Complementary tiling to walls and floor.
Exterior
The property has a small open plan front garden with an attractive tiled path. 
Parking
A driveway to the side of the house provides parking for two vehicles in tandem. There is also an E.V charging point and outside water tap located here. 
Rear Garden
A stylish, contemporary landscaped south west facing rear garden designed for easy outdoor living and entertaining. Two distinct patio areas create flexible spaces to relax and dine, including one directly behind the house complete with a cantilever sun parasol for shaded comfort, the other a great space for a hot tub. The garden is finished with an artificial lawn, offering a lush green look all year, with minimal maintenance. A side gate gives access to the driveway. Outside power points. There is also a detached, purpose-built home office/garden room.
Home Office/Garden Room - 2.54m x 2.54m (8'4" x 8'4") overall

A versatile feature of the garden is the detached timber outbuilding set under a pitched, tiled roof. Currently ideal as a home office, this space can easily be adapted to suit a variety of needs. It comes fully equipped with electric heating, power and lighting, a Cat 5 hardwired connection for broadband, and a Sky television point. Adjacent to this, there is a generous store, perfect for keeping garden tools, equipment, and garden furniture safely stored during the winter months.

Agents Note
 
There is a small annual charge for the upkeep of communal areas and the road of approximately £240.00 per household

Services

Main services connected: Water, drainage, electricity and mains gas. Gas fired boiler supplies domestic hot water and heating to radiators. 
Broadband & mobile phone coverage can be checked at https://checker.ofcom.org.uk
We are advised that the owner has installed fibre/hardwire connection for broadband.

Important Information

  • This is a Freehold property.
  • This Council Tax band for this property is: D

Property Ref: 1338712

Share:

Similar Properties

CHAIN FREE 2 bedroom bungalow - St Johns, Puckeridge, Herts

2 Bedroom Semi-Detached Bungalow | Guide Price £465,000

Oliver Minton Village & Rural Homes are pleased to offer this CHAIN FREE, rarely available 2 bedroom semi-detached bunga...

Stores Cottages, Hare Street, Buntingford

2 Bedroom Cottage | Guide Price £465,000

With an amazing rear plot extending the grounds to over an acre of land, Oliver Minton Village & Rural Homes are delight...

LAND FOR SALE - Acorn Street, Hunsdon, Herts

Land | Offers in region of £450,000

Oliver Minton Village & Rural Homes are pleased to offer this plot of land that extends to approximately 3 acres, locate...

High Street, Puckeridge

3 Bedroom Terraced House | £475,000

A beautifully presented and larger-than-average extended three-bedroom modern home, ideally positioned on the historic H...

Aston Road, Standon

3 Bedroom Semi-Detached House | Guide Price £485,000

Having been the subject of considerable improvement during the seller’s ownership, this lovely family home sits on a wid...

Stortford Road, Standon, Herts

4 Bedroom Semi-Detached House | £485,000

Oliver Minton Village & Rural Homes are delighted to offer this attractive Victorian bay-fronted semi-detached house whi...

Oliver Minton Estate Agents (Puckeridge)

28 High St, Puckeridge, Hertfordshire, SG11 1RN

01920 822999

How much is your home worth?

Use our short form to request a valuation of your property.

Request a Valuation

Mortgage Calculator

Amount Borrowed: £
Total Amount Repayable: £
Total Monthly Payment: £
©2026 The Guild of Property Professionals. All rights reserved. Terms and Conditions | Privacy Policy | Cookie Policy | Complaints Policy | Members Login
The Guild of Property Professionals Trading Address: 121 Park Lane, London W1K 7AG. GPEA Limited. Registered in England & Wales.  Company No: 02819824.  Registered Office Address: 2 St. Stephen's Court, St. Stephen's Road, Bournemouth, Dorset, England, BH2 6LA.  VAT Registration No: 576 8795 61
Book a Property Valuation Update Cookies Preferences