Callington

Guide Price
£390,000
SSTC
This property listing is now SSTC

3 Bedroom Bungalow for sale in Callington

1 3 2

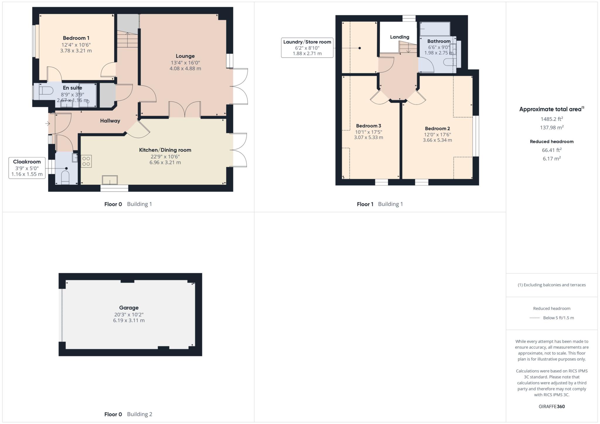
Immaculately presented modern property that could suit a variety of purchasers especially those wanting a downstairs Master Bedroom with En suite on the ground floor. In addition the property includes Entrance Hall, Cloakroom, Kitchen/Dining room with some built in appliances and spacious Lounge on the ground floor. On the first floor there is a shaped Landing, 2 FURTHER DOUBLE Bedrooms, Family Bathroom and a Store/Laundry room. Outside there are Attractive level sited Gardens, Garage and Parking for 2/3 vehicles. The property is warmed via Gas central heating has uPVC double glazing, enjoys views from the rear and is still covered by the NHBC guarantee. A viewing is highly recommended.

Situation:-
Callington is a small town with a population of around 6,500 people and is situated in the heart of South East Cornwall, around 15 miles from the City of Plymouth. It has Infant and Junior Schools, along with a Community College with an enviable reputation which specialises in Sports and Music. The town has a Tesco store, B&M, range of local shops, Gym, Doctors and Dentist surgeries and Bus Service. There are many recreational pursuits nearby that can be enjoyed.

Hallway:-
Composite front door with eyespy, and letter box with a frosted glass panel to the side.
Access to the cloakroom, kitchen/dining room, lounge and master bedroom. Useful storage cupboard housing the consumer units and power, stairs rising to the first floor, radiator, karndean flooring.

Cloakroom:- - 3'9" (1.14m) x 5'0" (1.52m)
Comprises of low level WC, wash hand basin with tiled splashback, radiator, uPVC frosted window to the front elevation, blinds, karndean flooring.

Kitchen/Dining room:- - 22'9" (6.93m) x 10'6" (3.2m)
Ftted with a range of modern wall and base units, square edged worktop surfaces with matching upstands, drawer space, pan drawers, pull out space saver cabinets, 4 ring induction hob with stainless steel and glass canopy above, glass splashback, plumbing and space for a washing machine, eye level oven/grill, built in fridge/freezer, stainless steel sink unit with 1.5 bowl and drainer with a swan neck tap over, uPVC double glazed window to the side elevation, blinds, spotlighting, breakfast bar, with seating area beneath, usb points.
Area for dining room table and chairs and further reception furniture if required, uPVC double glazed French doors giving access to the rear patio and garden, radiator and karndean flooring.

Lounge:- - 13'4" (4.06m) x 16'0" (4.88m)
This room can be accessed via the hallway, or via internal french doors with inset glass panels from the dining area. Spacious lounge with ample room for reception furniture, under stairs storage cupboard, radiator, uPVC double glazed window to the rear elevation and uPVC double glazed French doors again giving access to the patio and garden with views across Caradon and the countryside.

Master Bedroom:- - 12'4" (3.76m) x 10'6" (3.2m)
Good sized double bedroom with uPVC double glazed window to the front elevation, blinds, radiator, internal door to:-

En-suite:- - 8'9" (2.67m) x 3'9" (1.14m)
Comprising of encased system low level WC, large wash hand basin, over sized shower cubicle housing the waterfall shower head, control system, tray and sliding door with screen. Heated towel rail, part tiling to the walls, shaver point, uPVC double glazed frosted window with blinds to the front elevation and karndean flooring.

Landing:-
Shaped landing with uPVC double glazed window to the side elevation. Access through to the bedrooms, bathroom and store/laundry room. Radiator and loft access.

Bedroom Two:- - 12'0" (3.66m) x 17'6" (5.33m)
Large double bedroom with uPVC double glazed windows to the side and rear elevations enjoying views across woodlands, nearby and far reaching countryside across to Caradon. Recessed area ideal for wardrobe and bedroom furniture, radiator.

Bedroom Three:- - 10'1" (3.07m) x 17'5" (5.31m)
Double bedroom with a velux window to the front elevation with views to the countryside. uPVC double glazed window to the side elevation again enjoying views. Radiator.

Laundry Room/Store:- - 6'2" (1.88m) x 8'10" (2.69m)
Housing the central heating and hot water boiler. This room is versatile and could be adapted for individual preferences.

Bathroom:- - 6'6" (1.98m) x 9'0" (2.74m)
Suite comprising of encased system low level WC, large wash hand basin, bath with waterfall and half height shower heads, Karndean flooring, part tiling to the walls. Shaver point, heated towel rail and extractor.

Outside:-
To the front a paved pathway leads up to the front entrance to a storm porch. The front gardens include lawns with bark finished sections and natural hedges.To the side there is also barked finished shrub beds. To the left hand side of the property there is a driveway suitable for approximately two/three vehicles leading up to the garage.
To the rear of the property there is a paved patio ideal for alfresco dining and entertaining. The garden is mainly laid to lawn with shaped flower and shrub beds. Pebble finished area ideal for bin stoarage etc..
The garden is enclosed with walling and there is an access gate to the side. Outside tap.

Garage:-
Comprising of an up and over door, power and light.

Services:-
Gas, electric, water and drainage.

Council Tax:-
According to Cornwall Council the council tax band is D.

Service Charge:-
The current service charge is £258.00 per annum paid by each property.

Notice
Please note we have not tested any apparatus, fixtures, fittings, or services. Interested parties must undertake their own investigation into the working order of these items. All measurements are approximate and photographs provided for guidance only.

Utilities
Electric: Mains Supply
Gas: Mains Supply
Water: Mains Supply
Sewerage: Mains Supply
Broadband: Unknown
Telephone: Landline

Other Items
Heating: Gas Central Heating
Garden/Outside Space: Yes
Parking: Yes
Garage: Yes

Important Information

  • This is a Freehold property.

Property Ref: 1468

Share:

Similar Properties

Liskeard Road, Callington

3 Bedroom Bungalow | Guide Price £380,000

*AN OPPORTUNITY TO PURCHASE A DETACHED LEVEL SITED BUNGALOW WITHIN WALKING DISTANCE OF THE TOWN* Versatile accommodation...

St Dominick, Saltash.

4 Bedroom Bungalow | Guide Price £380,000

The thriving village of St Dominick has a pub/restaurant, community shop, primary school, sports field, village hall and...

Kelly Bray. Callington

3 Bedroom Detached Bungalow | £375,000

Dawson Nott are pleased to offer this 2/3 bedroom detached bungalow set in a popular location. Occupying a generous plot...

Callington

3 Bedroom House | £410,000

*SITUATED IN ONE OF THE MOST FAVOURED LOCATIONS OF THE TOWN* Is this large detached house close to amenities which could...

Kelly Bray, Callington

3 Bedroom Bungalow | £420,000

*AN OPPORTUNITY TO PURCHASE THIS DETACHED PROPERTY SET IN APPROX 0.28 OF AN ACRE WHICH IS BEING SOLD WITH NO ONWARD CHAI...

Millbrook.Torpoint.PL10

5 Bedroom House | £425,000

This impressive detached family home is located in a quiet cul-de-sac and boasts 5 bedrooms with the master being en sui...

Dawson Nott Estate Agents (Callington)

Callington, Cornwall, PL17 7AQ

01579 550590

How much is your home worth?

Use our short form to request a valuation of your property.

Request a Valuation

Mortgage Calculator

Amount Borrowed: £
Total Amount Repayable: £
Total Monthly Payment: £
©2026 The Guild of Property Professionals. All rights reserved. Terms and Conditions | Privacy Policy | Cookie Policy | Complaints Policy | Members Login
The Guild of Property Professionals Trading Address: 121 Park Lane, London W1K 7AG. GPEA Limited. Registered in England & Wales.  Company No: 02819824.  Registered Office Address: 2 St. Stephen's Court, St. Stephen's Road, Bournemouth, Dorset, England, BH2 6LA.  VAT Registration No: 576 8795 61
Book a Property Valuation Update Cookies Preferences