Carwynnen, Versatile home with large garden, paddocks and woodland area

Guide Price
£735,000
SSTC
This property listing is now SSTC

5 Bedroom Cottage for sale in Camborne

1 5 3
  • DETACHED STONE FRONTED COTTAGE
  • FIVE/SIX BEDROOM DOUBLE BEDROOMS, ONE ENHANCED BY AN EN-SUITE
  • FLEXIBLE LIVING ACCOMMODATION
  • LARGE OPEN PLAN KITCHEN/DINER
  • LARGE GARDEN AND WOODLAND AREA APPROX 1.9 ACRES
  • CABIN AND STUDIO PROVIDING ADDITIONAL ACCOMMODATION
  • LOTS OF OFF ROAD PARKING
  • FREEHOLD
  • EPC-C-73
  • COUNCIL TAX BAND-D

Situated in the rural hamlet of Carwynnen, on the outskirts of Camborne, this charming and versatile home enjoys a peaceful countryside setting while remaining conveniently accessible to local amenities. Surrounded by rolling fields and tranquil scenery, the property offers the perfect blend of rural lifestyle and modern comfort, incorporating original features that add character and charm while being thoughtfully finished to a modern standard to ensure comfortable contemporary living.
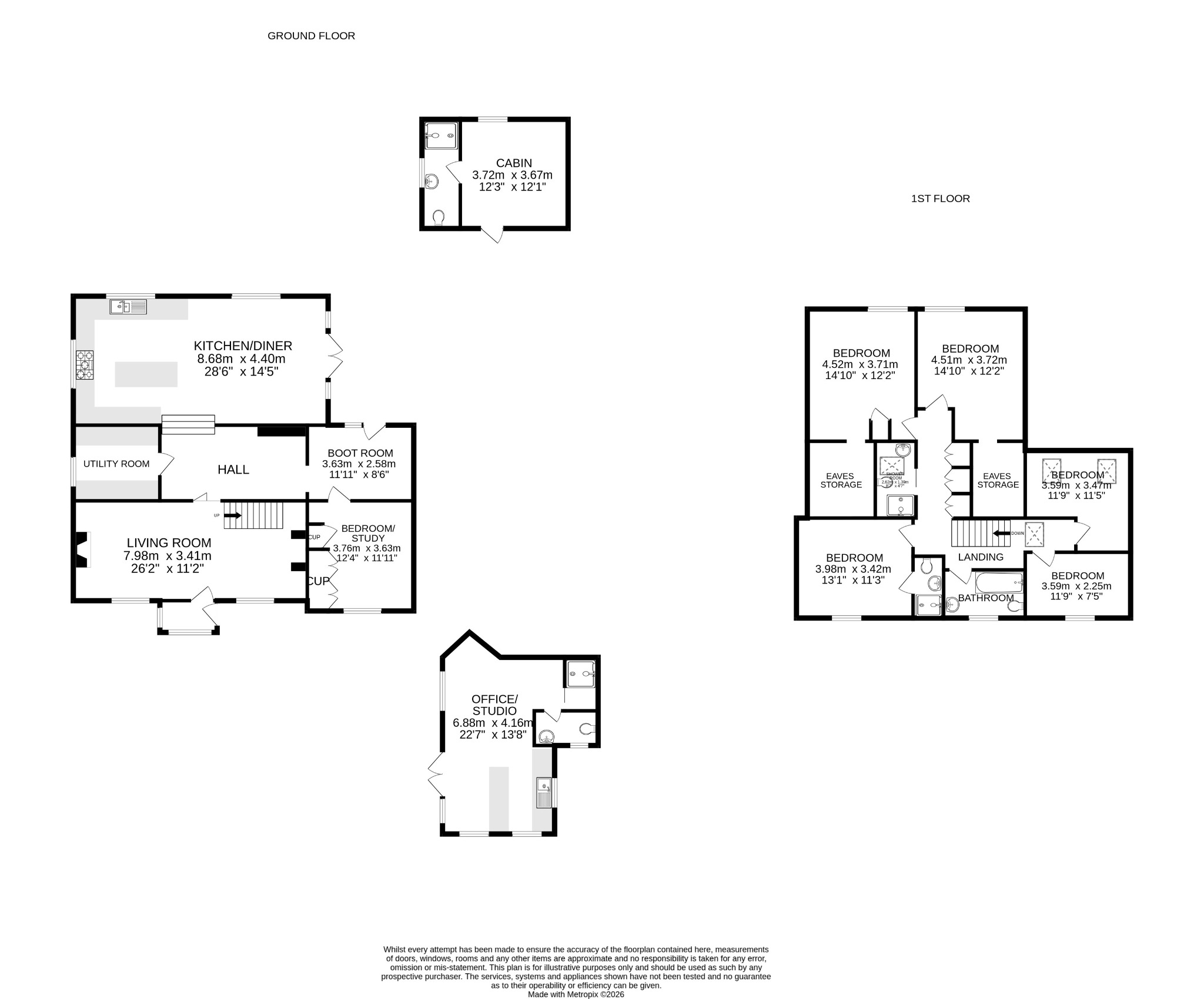
The accommodation is both generous and flexible, ideal for growing families or those seeking multi-functional living space. The ground floor is centred around an impressive open plan kitchen/diner, creating a superb heart of the home with ample space for cooking, dining and entertaining. A separate utility room and boot room enhance practicality for country living. The spacious living room provides a welcoming retreat, while an additional bedroom/study offers flexibility for home working or ground floor accommodation. A central hall with staircase leads to the first floor landing. Upstairs, there is a master bedroom which enjoys an en-suite, providing both comfort and convenience, along with two further well-proportioned bedrooms and a contemporary family bathroom. The landing continues around to a further bathroom and two additional double bedrooms, both benefiting from useful eaves storage.
In addition to the main house, the property benefits from a detached cabin and a substantial office/studio building complete with facilities, offering excellent potential for home business use, creative studio space, guest accommodation (subject to any necessary consents), or additional leisure space.
Location – Carwynnen is a small rural hamlet situated on the outskirts of Camborne in Cornwall, offering a peaceful setting surrounded by open countryside. Known for its historic landmark, the beautifully restored Carwynnen Quoit, the area blends natural beauty with a strong sense of heritage. Despite its tranquil feel, Carwynnen is conveniently located for access to the amenities of Camborne, including shops, schools and transport links, as well as the A30 for commuting across the county. The stunning north coast beaches and scenic coastal paths are also within easy reach, making it an appealing location for those seeking countryside living with excellent connectivity.
Accommodation –
BootroomBedroom/StudyInner HallwayUtility RoomKitchen/DinerLiving RoomSTAIRS TO LANDINGBedroom Two Bedroom FiveBathroomBedroom One with EnsuiteShower RoomBedroom Three with eaves storageBedroom Four with eaves storage
Studio – A fantastic space providing additional accommodation which could be perfect for an older child that is requiring their own domain to entertain and relax in or further work space and also is enhanced by a shower room.
Cabin- A useful cabin providing a great space for storage/office/hobbies room and practical toilet and shower room meaning it is a self sufficent space.
Parking – Gravelled off road parking for several vehicles.
Outside – The gardens are a truly outstanding feature of the property, offering exceptional space, privacy and versatility. Bordered by mature trees, the grounds, which extend to approximately 1.9 acres, enjoy a wonderful sense of seclusion while remaining predominantly laid to lawn, creating a blank canvas for landscaping enthusiasts to design and shape to their own vision.
A pathway gently leads you to the foot of the garden where a paddock area provides further flexibility, ideal for a variety of uses such as recreational space, hobby farming or a children’s play area. Adding to the charm and character, a bridge crosses over a stream to a delightful woodland area beyond, a magical setting perfect for outdoor adventures, or simply enjoying the tranquillity of the surroundings. To the front of the property there is an additional lawned area, along with three traditional stone barns which offer excellent external storage or potential for alternative uses, subject to the relevant permissions. To the rear of the property, in one of the small paddocks, is a large field shelter, originally used to house a pony, and presently utilised for the storage for garden equipment
Services – Mains water, electricity. Gas heating. Private sewerage treatment plant. The log burner has a back boiler aswell.

Rights of Way – Our client has informed us that they have pedestrian and vehicular right of access over the lane to and from their property.

Solar Panels – The solar panel are owned and also control the water. There is a seven year feeding tariff.

Council Tax Band – D

What3Words – ///triangles.cards.grants

Anti Money Laundering Regulations – Purchasers- It is a legal requirement that we receive verified ID from all buyers before a sale can be instructed. We will inform you of the process once your offer has been accepted.
Proof of Finances- Before agreeing a sale, we will require proof of your financial ability to purchase. We will inform you of what we require prior to agreeing a sale.
Broadband & Mobile Phone Coverage- To check the broadband coverage for this property please visit https://www.openreach.com/fibre-broadband. To check mobile phone coverage please visit https://checker.ofcom.org.uk/

Important Information

  • This is a Freehold property.
  • This Council Tax band for this property is: D

Property Ref: 489995

Share:

Similar Properties

Farmhouse with Land, Sithney, Helston

5 Bedroom Detached House | Guide Price £730,000

Nestled in a picturesque countryside setting, this detached four/five bedroom farmhouse offers a wonderful blend of rura...

Tregarne, Beautiful barn conversion in a delightful rural setting

3 Bedroom Cottage | Guide Price £720,000

This exceptional property offers a unique blend of character, charm, and versatility. The main house features three spac...

Stunning lodge close to the beach, Sandyacres, Hayle

3 Bedroom Chalet | From £700,000

Nestled in the tranquil setting of Sandyacres, this exquisite detached lodge presents an exceptional opportunity for tho...

Exquisite detached home with views, Ludgvan

3 Bedroom Detached House | Guide Price £750,000

Positioned in a quiet location near the charming hamlet of Ludgvan, this exquisite detached Grade II listed home is a sp...

Flexible country residence with annex, Gilly Gabben

6 Bedroom Barn Conversion | Guide Price £750,000

This stunning country residence has so much to offer and is the perfect combination of style, comfort, and convenience h...

Balwest, Spacious home and glamping pods

4 Bedroom Bungalow | Offers in excess of £750,000

This impressive home and income opportunity occupies a slightly elevated position, taking full advantage of panoramic co...

The Mather Partnership (Helston)

Helston, Cornwall, TR13 8AA

01326 565016

How much is your home worth?

Use our short form to request a valuation of your property.

Request a Valuation

Mortgage Calculator

Amount Borrowed: £
Total Amount Repayable: £
Total Monthly Payment: £
©2026 The Guild of Property Professionals. All rights reserved. Terms and Conditions | Privacy Policy | Cookie Policy | Complaints Policy | Members Login
The Guild of Property Professionals Trading Address: 121 Park Lane, London W1K 7AG. GPEA Limited. Registered in England & Wales.  Company No: 02819824.  Registered Office Address: 2 St. Stephen's Court, St. Stephen's Road, Bournemouth, Dorset, England, BH2 6LA.  VAT Registration No: 576 8795 61
Book a Property Valuation Update Cookies Preferences