Tregarne, Beautiful barn conversion in a delightful rural setting

Guide Price
£720,000
SSTC
This property listing is now SSTC

3 Bedroom Cottage for sale in Manaccan

2 3 2
  • WELL PRESENTED DETACHED BARN CONVERSION
  • BEAUTIFUL RURAL POSITION
  • TWO ADDITIONAL ACCOMMODATION UNITS
  • GENEROUS SIZE PLOT
  • WILD MEADOW AND MANICURED GARDENS
  • WEALTH OF CHARACTER
  • SOLAR PANELS AND TESLA BATTERY
  • COUNCIL TAX - BAND D
  • EPC - D63
  • FREEHOLD TENURE

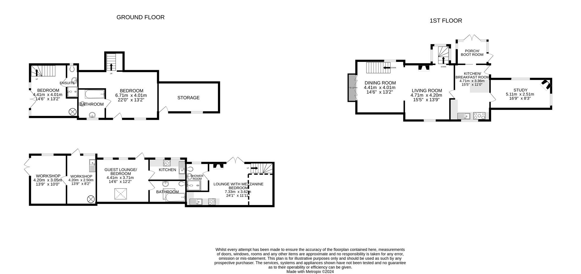
This exceptional property offers a unique blend of character, charm, and versatility. The main house features three spacious bedrooms and boasts a stunning lounge with a Contura log burner that flows into the dining area with balcony offering an attractive outlook with distant coastal views. The kitchen, equipped with a range style oven, has an adjacent breakfast room that opens onto the garden, perfect for morning coffees. Completing the main floor accommodation is the third bedroom, which can easily serve as a home office or playroom if not needed for sleeping quarters.The ground floor hosts two bedroom suites, each with its own private staircase. The master with a stable door to the garden, is ideal for enjoying a tranquil morning with the sounds of nature and features a full en-suite bathroom. The second bedroom suite is equally charming, with a wet room and double doors to a private patio area, perfect for guests or family members. For those looking to generate additional income or accommodate extended family, the property includes two self-contained cottages. These cottages provide a fantastic opportunity for holiday letting or multi-generational living. Approaching 1.75 acres, the outdoor space is a true highlight. The main house and cottages are centred around a gorgeous garden, offering a sheltered and private communal area for relaxation and socialising. The grounds include a sheltered kitchen garden, and a large pond with a produce area. Beyond the immediate gardens, a meadow invites exploration with mowed paths meandering through partially wild areas, a haven for birds and bees. There are a selection of fruit trees, a poly tunnel with grapevine, and a solar panel rack, benefitting from Solar PV for energy efficiency. This property is a rare find, offering a blend of rustic charm and modern convenience, with endless possibilities for living arrangements and income potential. Don't miss out on this fantastic opportunity to own a slice of paradise.
Location - Tregarne is an idyllic hamlet located approximately one mile from the traditional fishing village of Porthallow and within easy reach of the renowned sailing waters of the Helford river and the Lizard Peninsula.
Hen House - The main property is a substantial and versatile dwelling. Step inside and find yourself in a spacious kitchen with range style oven, leading off of this room is the pretty breakfast room with small log burner overlooking the garden. Also adjacent is bedroom three which is used by the present vendors as a home office. The lounge is a wonderfully light and spacious yet cosy room with a Contura log burner, this leads into the dining room with doors to the balcony overlooking the pond and enjoying rural and distant coastal views. Two sets of stairs lead down to both of the individual and private bedroom suites. Throughout the property are lovely touches including feature handmade wood sills. The master bedroom is a large room with stable door to the central garden area and a full en-suite bathroom. The second bedroom suite is another generous room with useful storage and an en-suite wetroom with double doors accessing a patio seating area.
Mopani - Featuring completely self contained accomodation with a spacious and light bedroom and sitting area, an adjacent kitchen which is modern and well equipped and bathroom with shower.
The Bantams Roost - A spacious yet still cosy self contained property featuring a sitting and dining area with log burner with an adjacent shaker style kitchen. There is a shower room with a large walk in shower and a mezanine sleeping area.
Outside - The outside space is a huge highlight offering endless scope and potential for keen gardeners or those seeking to live 'the good life' with grounds extending in total to 1.75. The properties are arranged around a gorgeous sheltered and secluded garden where family and guests can relax and socialise and dine in nature's embrace. There is kitchen garden perfect for soaking up the sun as well as to the other side of the property a large duck pond with adjacent produce garden area. Beyond the property is the meadow, stocked with a variety of fruit trees there is a poly tunnel with an established grape vine. Much of this area is designated as a wildflower meadow designed to encourage the birds and bees - meander through the mowed paths with plenty of spots in which to sit and relax. There is also a summerhouse, large shed and woodshed and many mature trees. There is a further separate vehicular access at the top of the meadow and a solar panel rack. There is an area off off road parking for several vehicles as well as a garage/workshop with a utility/laundry area.
Council Tax - Band D -
Services - Oil fired central heating, private drainage, mains water and electricity. The two barns have air source heating.
Agents Note - The property benefits from solar panels to the roof, with solar thermal and tesla battery storage. There are also further solar panels located in the meadow.
Anti Money Laundering Regulations – Purchasers - It is a legal requirement that we receive verified ID from all buyers before a sale can be instructed. We will inform you of the process once your offer has been accepted.
Proof Of Finances - Before agreeing a sale, we will require proof of your financial ability to purchase. We will inform you of what we require prior to agreeing a sale.
Broadband & Mobile Phone Coverage - To check the broadband coverage for this property please visit check mobile phone coverage please visit

Property Ref: 496345

Share:

Similar Properties

Stunning lodge close to the beach, Sandyacres, Hayle

3 Bedroom Chalet | From £700,000

Nestled in the tranquil setting of Sandyacres, this exquisite detached lodge presents an exceptional opportunity for tho...

Kuggar, Four bed house and two one bed cottages

4 Bedroom Detached House | Guide Price £699,950

This beautifully presented and thoughtfully upgraded four-bedroom home is full of character and charm. Each of the four...

Gorgeous property with 5 acres of land, Kehelland

4 Bedroom Detached House | Guide Price £699,750

Set in the heart of an Area of Outstanding Natural Beauty, Nancemellin Farm offers a unique chance to enjoy countryside...

Farmhouse with Land, Sithney, Helston

5 Bedroom Detached House | Guide Price £730,000

Nestled in a picturesque countryside setting, this detached four/five bedroom farmhouse offers a wonderful blend of rura...

Carwynnen, Versatile home with large garden, paddocks and woodland area

5 Bedroom Cottage | Guide Price £735,000

Situated in the rural hamlet of Carwynnen, on the outskirts of Camborne, this charming and versatile home enjoys a peace...

Exquisite detached home with views, Ludgvan

3 Bedroom Detached House | Guide Price £750,000

Positioned in a quiet location near the charming hamlet of Ludgvan, this exquisite detached Grade II listed home is a sp...

The Mather Partnership (Helston)

Helston, Cornwall, TR13 8AA

01326 565016

How much is your home worth?

Use our short form to request a valuation of your property.

Request a Valuation

Mortgage Calculator

Amount Borrowed: £
Total Amount Repayable: £
Total Monthly Payment: £
©2026 The Guild of Property Professionals. All rights reserved. Terms and Conditions | Privacy Policy | Cookie Policy | Complaints Policy | Members Login
The Guild of Property Professionals Trading Address: 121 Park Lane, London W1K 7AG. GPEA Limited. Registered in England & Wales.  Company No: 02819824.  Registered Office Address: 2 St. Stephen's Court, St. Stephen's Road, Bournemouth, Dorset, England, BH2 6LA.  VAT Registration No: 576 8795 61
Book a Property Valuation Update Cookies Preferences