Advent, Camelford, PL32

£495,000
SSTC
This property listing is now SSTC

2 Bedroom Detached House for sale in Camelford

2 2 1
  • HIGHLIGHTS:
  • Fantastic Countryside Setting
  • Superb Views
  • Close To The River Camel
  • Beautiful Large Cottage Style Gardens
  • Character Features Including Slate Flagstone Flooring
  • Beamed Ceilings
  • Double Glazed Windows Throughout
  • Beautiful Garden Room/Home Office
  • Various Outhouses * Further Area Of Land Opposite With Outbuilding

A very traditional 2 double bedroom Cornish character cottage with beautiful and generous garden enjoying a most fantastic rural setting with great countryside views.  Freehold.  R/V £2350.  EPC rating F.


 


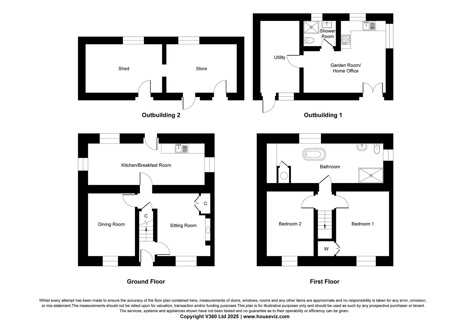
FRONT AND BACK - Kenningstock Cottage is a very traditional Cornish character cottage with beautiful and generous garden enjoying a most fantastic rural setting with great countryside views.  Arranged over 2 floors with 2 double bedrooms, 2 charming reception rooms, various outbuildings including a very useful garden room/home office, utility room and various potting sheds.  The property enjoys a glorious location close to Advent in this beautiful part of North Cornwall, close to Bodmin Moor and the town of Camelford.


 


GROUND FLOOR ACCOMMODATION


 


Entrance Door 


 


Canopy Porch


A beautiful entrance lobby with flagstone slate flooring.


 


The living room (2.8 m x 3.7 m) welcomes you with a feature fireplace recess with exposed stone and woodburning stove.  This room boasts slate flagstone flooring and recess cupboards.


 


A separate dining room/reception room 2 features a window to front enjoying lovely countryside views.  


 


The accommodation continues into the kitchen (2.7 m x 3.8 m) which enjoys a superb triple aspect with door to rear and again boasting slate flagstone flooring, open beamed ceiling, feature woodburning stove with former cloam oven to side.  The kitchen area comprises a deep sink with slate worktops and drainer to side with fitted shelving above and below.


 


FIRST FLOOR ACCOMMODATION


 


Master Bedroom - 3.72 m x 3.08 m


Once again enjoying magnificent views to the front over the countryside with attractive window seat.  Deep built in wardrobe with hanging and shelving space.  


 


Bedroom 2

Former feature fireplace with surround and slate hearth.


 


The property enjoys a large dual aspect bathroom (6.74 m x 2.2 m) with slate window sill enjoying great views over the fields to the rear.   Free standing bath, walk in glazed shower enclosure with slate steps, shower tray and walls.  Low level w.c.  Wash hand basin with attractive splashback.  


 


GARDENS AND OUTBUILDINGS


The grounds here have plenty to offer and are perfect for those keen gardeners.  Laid out in traditional style the gardens have large areas laid to lawn with various tree, shrub and flower borders and a beautiful range of flowers, fruit trees, fruit bushes and a productive fruit and veg garden.  The variety of outbuildings includes 2 potting sheds, log store and 2 further useful sheds.


 


Workshop - 3.4 m x 1.98 m


With concrete floor, shelving, light and power.  


 


Further outbuilding in 2 sections measuring approximately 8.8 m x 2.87 m


This further outbuilding and area of garden is immediately in front of the cottage with a gate leading to the lane.  Across this lane you will find an extremely useful further area of land owned by the cottage which is former woodland but now mainly cleared.


 


Boot/Cloakroom 


 


Utility/Storage Room - 2.3 x 4.2 m


Concrete floor.  Light and power connected.  Hot water tank.  Fitted shelving.  Space and plumbing for washing machine. 


 


Garden Room/Home Office - Overall measurement 4.3 m x 4.7 m


A superb room/home office created as a lockdown project in place of former shed by the current vendors.  Single drainer stainless steel sink with shelving over.  LP gas hob with fitted worktop to side.  Shelving.  Shower enclosure with thermostatic shower.  Low level w.c. and wash hand basin with tiled surround.  Heated towel rail.  Light, power and water connected.


 


LOCATION


Kenningstock Cottage enjoys a glorious location close to Advent in a beautiful part of North Cornwall close to Bodmin Moor and the town of Camelford with the North Cornish coastline within easy reach.  


What3Words:  ///simulator.airbag.bike


 


Outside


The property has its own well which has been used for water the gardening only.  


 


VIEWINGS HIGHLY RECOMMENDED


 


Kenningstock Cottage is a unique listing that must be experienced in person to fully appreciate its charm, position and garden.  Early viewing is strongly advised to avoid disappointment.


 


SERVICES


Mains electricity.  Mains water connected via a private service pipe.  Infrared ceiling panel heaters throughout with wifi connected thermostatic controls.  Private drainage via a septic tank.  The main hot water tank for the cottage is located in the bathroom and there is an additional hot water tank in the utility room.  Full fibre broadband connected.


 


Please contact our Camelford office for further information.

Important Information

  • This is a Freehold property.

Property Ref: 193_939880

Share:

Similar Properties

Westerlands Road, Wadebridge, PL27 7EU

4 Bedroom Detached House | £495,000

A rare opportunity to purchase this extremely spacious 4 bedroom split level property with flexible and adaptable living...

West Hill, Wadebridge PL27

5 Bedroom Detached House | £495,000

A well presented 4/5 bedroom detached family home with conservatory and large south facing rear garden.  Freehold.  Coun...

Hill Park, Wadebridge PL27

4 Bedroom Detached House | Guide Price £485,000

A spacious 4/5 bedroom detached family home with detached garage located in this popular cul de sac.  Freehold.  Council...

West Down Road, Delabole, PL33

5 Bedroom Detached House | £499,950

A large individual detached 4 bedroom home plus annexe which features a generous garden and enjoys glorious almost 180 d...

Inns Park, Camelford, PL32 9RX

4 Bedroom Detached House | £499,950

A stunning 4/5 bedroom detached contemporary modern home forming part of an exclusive development of only 3 other simila...

Middlewell Parc, Wadebridge, PL27

4 Bedroom Detached House | Offers in region of £499,950

Situated in this extremely popular and private cul-de-sac location is this superb 3/4 bedroom detached split level moder...

Cole Rayment & White (Wadebridge)

Wadebridge, Cornwall, PL27 7DG

01208 813595

How much is your home worth?

Use our short form to request a valuation of your property.

Request a Valuation

Mortgage Calculator

Amount Borrowed: £
Total Amount Repayable: £
Total Monthly Payment: £
©2026 The Guild of Property Professionals. All rights reserved. Terms and Conditions | Privacy Policy | Cookie Policy | Complaints Policy | Members Login
The Guild of Property Professionals Trading Address: 121 Park Lane, London W1K 7AG. GPEA Limited. Registered in England & Wales.  Company No: 02819824.  Registered Office Address: 2 St. Stephen's Court, St. Stephen's Road, Bournemouth, Dorset, England, BH2 6LA.  VAT Registration No: 576 8795 61
Book a Property Valuation Update Cookies Preferences