- * WATCH OUR VIDEO WALK THROUGH TOUR *
- Extended Semi-Detached Family Home
- Four Double Bedrooms
- 21ft Kitchen/Dining Room
- Principal Bedroom with Modern En-Suite
- Garage & Ample Off-Road Parking
- Sought After Location
- Early Viewing Recommended
** Guide Price - £500,000 - £525,000 **
Situated in the ever-popular village of Blean, this thoughtfully extended semi-detached family home offers spacious and versatile accommodation that is perfect for modern living. Boasting four generously sized double bedrooms including a principal bedroom with a stylish en-suite, this property is ideal for growing families or those seeking additional space.
At the heart of the home is a stunning 21ft kitchen/dining room, designed to be both functional and sociable ? perfect for everyday family life and entertaining guests. Further to this the property features a separate living room and utility/WC to the ground floor and a family bathroom to the first floor.
To the rear the well maintained garden is ideal for entertaining with its south/west facing aspect and large patio area. At the front the property benefits from a garage and ample off-road parking. 
Positioned just 525 yards from local shopping facilities with regular bus services to the Cathedral City of Canterbury (approx. 2.8 miles) and the quaint harbour town of Whitstable (approx. 3.7 miles). Two Public Houses are within walking distance (700 yards) and well-regarded schools such as Blean Primary, Kent College and St Edmund's are nearby.
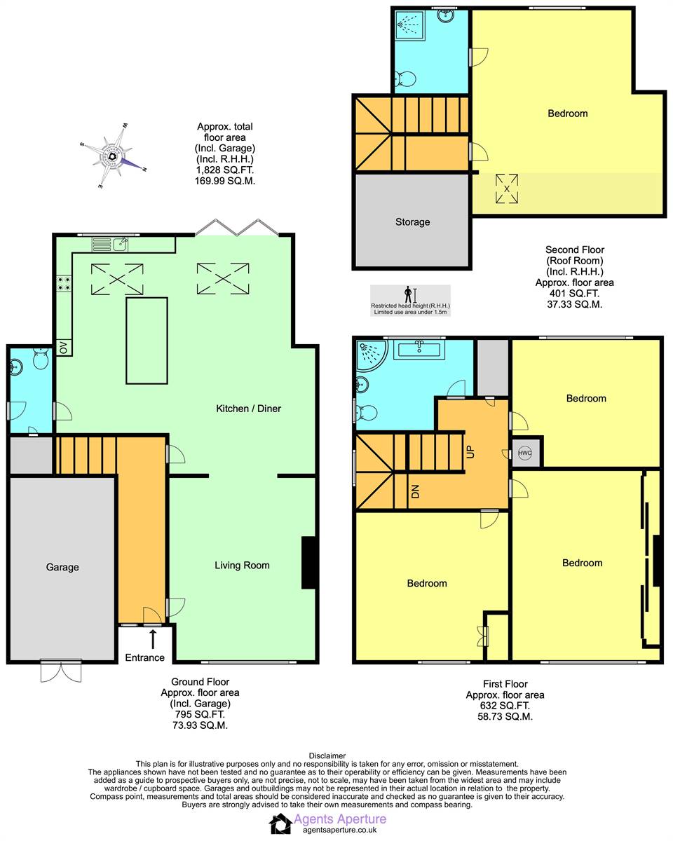
Entrance Hall   
Partially double glazed UPVC front entrance door. Radiator. Stairs leading to first floor. Tiled flooring.
Lounge   14' 11 x 11' 6 (4.55m x 3.51m)
Feature fireplace with open hearth. Window to front. Radiator. Laminate flooring.
Kitchen/Dining/Living Room   21' 2 x 19' 5 (6.46m x 5.92m)
The Kitchen is planned with a matching range of wall and base units arranged on two walls. Inset stainless steel 1.5 bowl sink unit. Partially tiled walls. Inset induction hob with extractor cooker hood above and built-in fan assisted electric oven. Integrated dishwasher, fridge freezer and microwave. Window to rear. Radiator. Laminated flooring. Bi-folding doors providing access to rear garden. Door to Utility Room.
Utility Room/WC   
Close coupled WC and wash hand basin set into vanity unit. Plumbing for washing machine. Tiled flooring. Door to side.
Storage Room   9' 5 x 7' 0 (2.88m x 2.14m)
Radiator.
Landing   
Window to side. Cupboard housing gas boiler. Radiator. Airing cupboard with shelves housing Megaflow.
Bedroom 2   15' 1 x 11' 6 (4.6m x 3.51m)
Window to front. Built-in wardrobe with shelves and hanging space. Radiator.
Bedroom 3   12' 8 x 11' 7 (3.87m x 3.54m)
Window to front. Built-in double cupboard. Radiator.
Bedroom 4   11' 8 x 10' 7 (3.56m x 3.23m)
Window to rear. Radiator.
Bathroom   9' 8 x 7' 6 (2.95m x 2.29m)
Suite in white comprising panelled bath with mixer tap and hand held shower attachment, fully tiled shower cubicle, pedestal wash hand basin and close coupled WC. Radiator. Frosted window to side and rear. Lino flooring.
Second Floor Landing   
Window to side.
Bedroom 1   16' 8 x 14' 10 (5.08m x 4.53m)
Window to front and rear. Radiator. Door to en-suite.
En-Suite   7' 4 x 6' 0 (2.24m x 1.83m)
Suite in white comprising fully tiled shower cubicle, pedestal wash hand basin and close coupled WC. Chrome heated towel rail. Window to rear. Tiled flooring. Extractor fan.
Garage   15' 1 x 8' 2 (4.6m x 2.49m)
Front Garden   31' 0 x 35' 0 (9.45m x 10.67m)
Border wall to front. Mainly laid to concrete and stone driveway extending to the front of the property providing off road parking.
Rear Garden   27' 0 x 29' 0 (8.23m x 8.84m)
Mainly laid to lawn with paved patio area. Gated pedestrian side access. Enclosed with fencing.
Main Services
The following mains services are connected to the property electricity, water, gas, drainage and a telephone line. All services will be subject to the appropriate companies transfer conditions.
Heating
Central heating is provided by a gas fired boiler situated in the landing cupboard and hot water radiators as indicated in these particulars.
Windows
The windows are generally of UPVC double glazed sealed units.
Tenure
The property is to be sold Freehold with vacant possession.
Council Tax
We are advised by the Valuation Office that the property is currently within Council Tax Band D. The amount payable under tax band D for the year 2025/2026 is £2,341.44.
Viewing
Please ring us to make an appointment. We are open from 9am to 6pm Monday to Friday, 9am to 5pm Saturdays and by appointment only on Sundays.
Agent Notes
Kent Estate Agencies gives notice for themselves and for the sellers of the property, whose agents they are that any floor plans, plans or mapping and measurements are approximate quoted in metric with imperial equivalents. All are for general guidance only and whilst every attempt has been made to ensure accuracy, they must not be relied on. The measurements are provided in accordance with the R.I.C.S. Code of Measuring Practice 6th edition. We have not carried out a structural survey and the services, appliances and specific fittings have not been tested and therefore no guarantee can be given that they are in working order. Photographs are reproduced for general information and it must not be inferred that any item shown is included with the property. Prospective purchasers or lessees should seek their own professional advice. Kent Estate Agencies retain the copyright in all advertising material used to market this property. No person in the employment of Kent Estate Agencies has any authority to make any representation or warranty whatever in relation to this property. Purchase prices, rents or other prices quoted are correct at the date of publication and, unless otherwise stated, exclusive of VAT. For a free valuation of your property contact the number on this brochure. Printed 13th October 2025.
Important Information
Property Ref: 57749_D13880
Hackington Road, Tyler Hill, Canterbury
3 Bedroom Semi-Detached House | Offers in excess of £395,000
Set in the sought-after village of Tyler Hill and just a short distance from Canterbury city centre, this beautifully ex...
Chapel Lane, Blean, Canterbury
2 Bedroom Semi-Detached Bungalow | £350,000
A delightful semi-detached bungalow in the south-after village of Blean, befitting from easy access to local amenities a...
School Lane, Blean, Canterbury
3 Bedroom Semi-Detached House | £350,000
Sought after location with this three bedroom semi-detached house, offering generous accommodation and easy access to lo...
3 Bedroom Detached House | £650,000
This extended detached family home offers generous space, versatile features and a highly desirable location. Situated o...
Manns Hill, Bossingham, Canterbury
5 Bedroom Detached House | £1,295,000
Elm Lodge offers an idyllic rural retreat nestled in the charming village of Bossingham and just a short drive from Cant...
 
                            Kent Estate Agencies (Canterbury)
6 Castle Street, Canterbury, Kent, CT1 2QF
Use our short form to request a valuation of your property.
Request a Valuation