Briggs Avenue, Castleford

£100,000
SSTC
This property listing is now SSTC

2 Bedroom Terraced House for sale in Castleford

1 2 1
  • CURRENTLY TENANTED
  • Good sized lounge space
  • Spacious Kitchen
  • Two good sized bedrooms
  • Fully fitted family bathroom
  • On Street Parking
  • EPC Grade D
  • Council Tax Band A

Currently, the house is being sold with a tenant in situ, generating a steady rental income of £550 per month. The tenant is currently on a rolling contract. This arrangement is particularly advantageous for those looking to invest in the rental market without the immediate need for vacant possession.
Briggs Avenue is conveniently located, offering easy access to local amenities, schools, and transport links, making it a desirable area for potential tenants or homeowners alike. This property is not just a house; it is a chance to create a welcoming environment in a vibrant community. Don't miss out on this promising opportunity in Castleford.

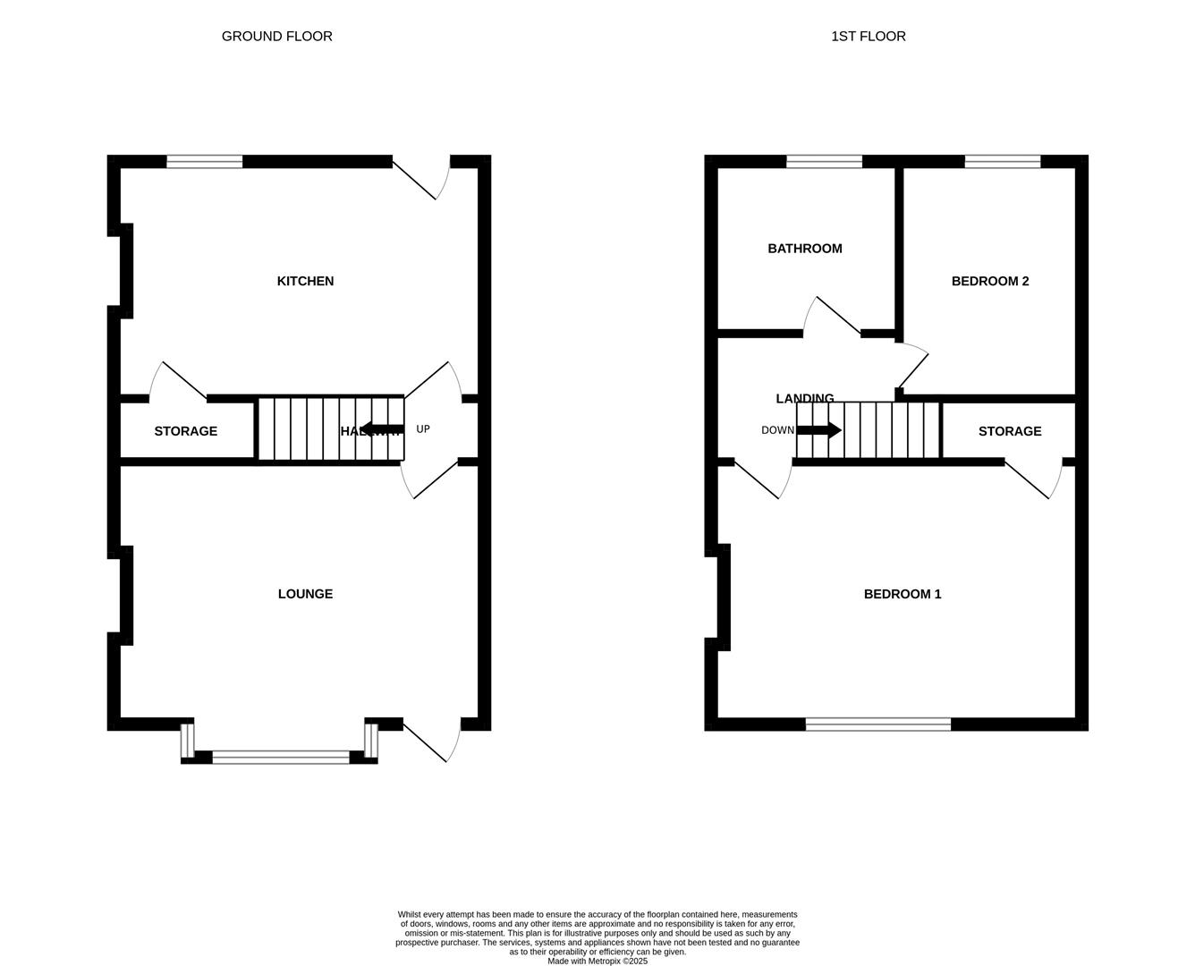
Lounge - 3.75 x 3.15 (12'3" x 10'4") - With a bay window to the front of the property and a central heating radiator.

Kitchen - 3.72 x 3.16 (12'2" x 10'4") - With wall mounted and under counter cupboards, double sink and drainer as well as a wall mounted gas boiler.

Bedroom One - 3.08 x 3.07 (10'1" x 10'0") - A good sized double bedroom with a window to the front of the property.

Bedroom Two - 1.73 x 3.18 (5'8" x 10'5") - With a window to the rear of the property and a central heating radiator.

Family Bathroom - 1.79 x 2.21 (5'10" x 7'3") - Fitted with a three piece suite including, a low flush WC, wash hand basin and a panelled bath with over bath shower.

Property Ref: 53422_33992646

Share:

Similar Properties

Leeds Road, Glasshoughton, Castleford

3 Bedroom Terraced House | £100,000

This tenanted terraced house presents an excellent opportunity for investors. The terraced design of the house not only...

Temple Street, Castleford

2 Bedroom End of Terrace House | £95,000

This house is a blank canvas, allowing you to unleash your creativity and personal style. Whether you envision a modern,...

Grafton Street, Castleford

2 Bedroom Terraced House | Offers Over £95,000

This property really is an exciting investment opportunity for those looking to make their mark in the property market....

Shakespeare Crescent, Castleford

2 Bedroom Flat | £105,000

We are delighted to present this charming ground floor apartment available for sale. Nestled in a peaceful cul-de-sac on...

Shakespeare Crescent, Castleford

2 Bedroom Flat | £105,000

We are pleased to offer for sale this two bedroom, first floor apartment situated in a quiet cul-de-sac position on the...

Roundhill Road, Castleford

2 Bedroom Terraced House | Offers in excess of £110,000

This terraced house presents an excellent opportunity for both first-time buyers and those seeking a cosy rental. The pr...

Castle Dwellings (Castleford)

22 Bank Street, Castleford, West Yorkshire, WF10 1JD

01977 285 111

How much is your home worth?

Use our short form to request a valuation of your property.

Request a Valuation

Mortgage Calculator

Amount Borrowed: £
Total Amount Repayable: £
Total Monthly Payment: £
©2025 The Guild of Property Professionals. All rights reserved. Terms and Conditions | Privacy Policy | Cookie Policy | Complaints Policy | Members Login
The Guild of Property Professionals Trading Address: 121 Park Lane, London W1K 7AG. GPEA Limited. Registered in England & Wales.  Company No: 02819824.  Registered Office Address: 2 St. Stephen's Court, St. Stephen's Road, Bournemouth, Dorset, England, BH2 6LA.  VAT Registration No: 576 8795 61
Book a Property Valuation Update Cookies Preferences