Westwood Gardens, Hiltingbury, Chandlers Ford

Offers in excess of
£500,000

4 Bedroom Detached House for sale in Chandlers Ford

1 4 2
  • Popular location in the heart of Hiltingbury
  • Four bedroom family home
  • En-suite & family bathroom
  • Modern kitchen
  • Good size garden
  • Thornden catchment

Nestled in a quiet and highly desirable cul-de-sac in the heart of Hiltingbury, this four-bedroom detached home offers the perfect blend of modern living, family-friendly layout, and an unbeatable location. Ideal for growing families, this family home is located just moments from the centre of Chandler's Ford, with its array of shops, amenities, and excellent transport links. The property sits proudly within the coveted Thornden School catchment area, making it a fantastic opportunity for families prioritising education. The surrounding area is also home to a number of reputable primary schools, parks, leisure facilities, and community centres, contributing to a warm, welcoming neighbourhood atmosphere. Inside, the home features a spacious sitting room that flows seamlessly into a generous dining area, perfect for entertaining or relaxed family meals. The modern kitchen is well-equipped with a Rangemaster cooker, and ample storage. Upstairs, you'll find four well-proportioned bedrooms, including a master bedroom with en-suite and a family bathroom. Further benefits include triple-glazed windows throughout, offering excellent energy efficiency and sound insulation, driveway for several cars and a garage and good a sized rear garden. This property presents a great opportunity to acquire a family home in a prime location that balances suburban tranquillity with everyday convenience.

Accommodation -

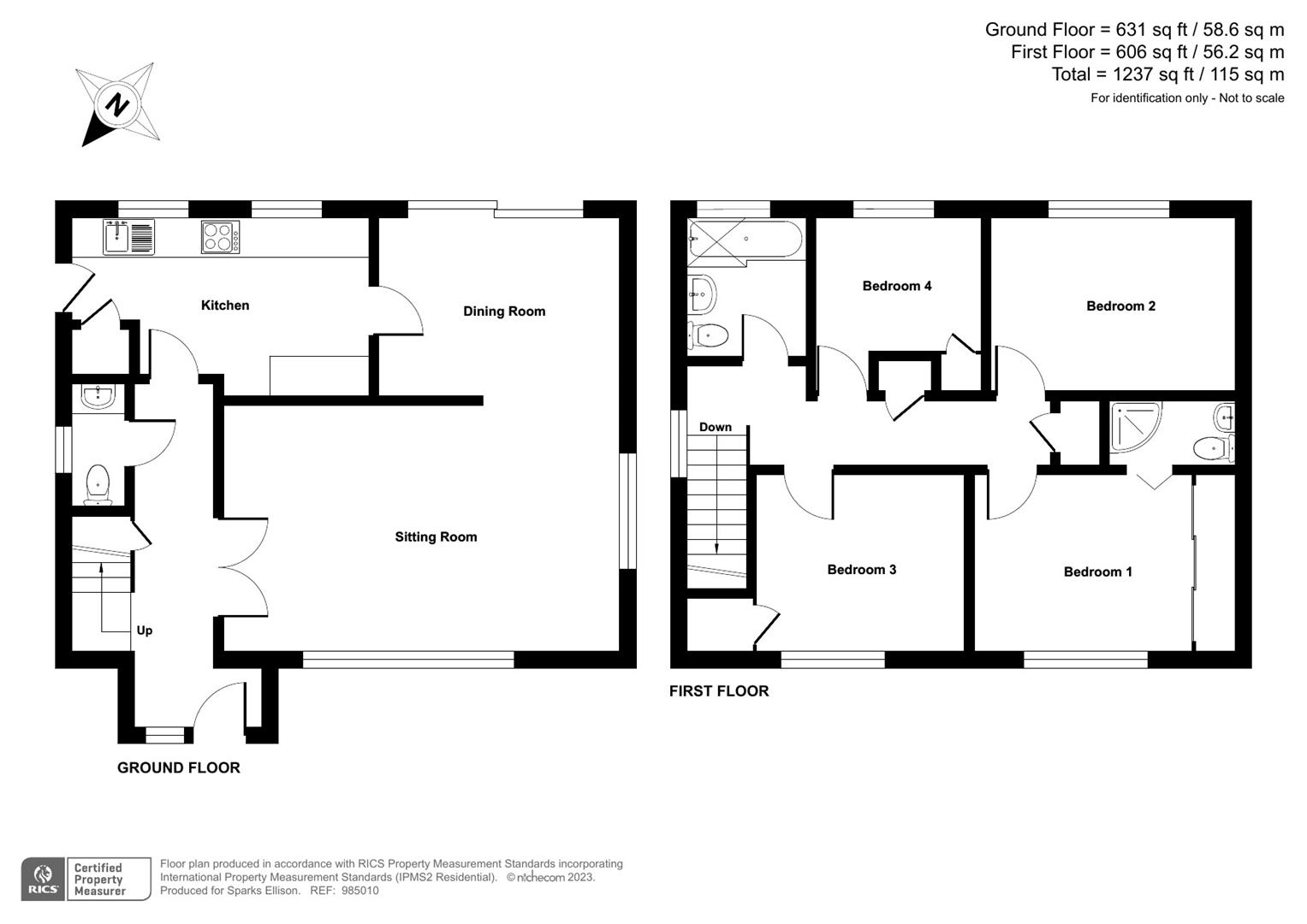
Ground Floor -

Entrance Hall: - Stairs to first floor with cupboard under.

Sitting Room: - 19'10" x 12'6" (6.05m x 3.81m) Open plan to dining area.

Dining Area: - 12'5" x 8'10" (3.78m x 2.69m) With patio doors to rear garden.

Kitchen: - 14'8" x 8'10" (4.47m x 2.69m) Range of cream gloss units, Rangemaster oven and hob with extractor hood over, integrated washing machine, integrated dishwasher, space for fridge freezer, built in larder cupboard, door to outside.

First Floor -

Landing: - Access to loft space, built in airing cupboard, built in storage cupboard.

Bedroom 1: - 11'2" x 9'2" (3.40m x 2.79m) Built in wardrobes along one wall.

En-Suite: - 6'6" x 3'10" (1.98m x 1.17m) White suite with chrome fitments comprising shower cubicle with glazed screen, wash hand basin, WC.

Bedroom 2: - 12'4" x 9' (3.76m x 2.74m)

Bedroom 3: - 10'7" x 9'2" (3.23m x 2.79m) Built in wardrobe.

Bedroom 4: - 8'7" x 7' (2.62m x 2.13m) Built in cupboard.

Bathroom: - 7'1" x 5'11" (2.16m x 1.80m) White suite with chrome fitments comprising P shaped bath with shower unit over and glazed screen, wash hand basin, WC.

Outside -

Front: - Area laid to lawn, steps to front door, driveway providing off road parking for several vehicles, mature Magnolia tree, side pedestrian access to rear garden along both sides.

Rear Garden: - Measures approximately 57' x 46' with paved patio area adjoining the house, area laid to lawn, variety of mature flower and shrub borders, enclosed by fencing, outside tap, garden shed.

Garage: - 16'9" x 15'6" (5.11m x 4.72m) Power and light connected.

Other Information -

Tenure: - Freehold

Approximate Age: - 1968

Approximate Area: - 114.8sqm/1237sqft

Sellers Position: - Looking for forward purchase

Heating: - Gas central heating

Windows: - Aluminium double glazed windows

Infant/Junior School: - Chandler's Ford Infant/Merdon Junior School

Secondary School: - Thornden Secondary School

Council Tax: - Band E

Local Council: - Eastleigh Borough Council - 02380 688000

Agents Note: - If you have an offer accepted on a property we will need to, by law, conduct Anti Money Laundering Checks. There is a charge of £60 including vat for these checks regardless of the number of buyers involved.

Property Ref: 6224678_33730627

Share:

Similar Properties

Trevose Crescent, Chandler's Ford

3 Bedroom Detached Bungalow | Offers in excess of £500,000

A beautifully appointed chalet style home situated towards the southern end of Chandler's Ford. The property has been ex...

Paulson Close, Chandler's Ford

3 Bedroom Detached House | £500,000

A charming three bedroom detached family home situated in an enviable central Chandler's Ford location offering easy acc...

Acorn Grove, Knightwood Park, Chandler's Ford

3 Bedroom Detached House | £500,000

A magnificent three bedroom detached home presented in outstanding fashion throughout which has been the subject of exte...

Wild Cherry Way, Chandler's Ford

4 Bedroom Detached House | £525,000

A wonderful four bedroom detached home presented in excellent condition throughout and located in a popular cul-de-sac w...

Park Road, Chandlers Ford

4 Bedroom Detached House | £525,000

An exceptionally well presented four bedroom detached home conveniently situated in the heart of Chandler's Ford and wit...

The Tanyards, North Millers dale Chandler's Ford

4 Bedroom Detached House | £525,000

An attractive detached family home situated on the ever popular North Millers Dale development and offered for sale with...

Sparks Ellison (Chandler's Ford)

Chandler's Ford, Hampshire, SO53 2GJ

02380 255333

How much is your home worth?

Use our short form to request a valuation of your property.

Request a Valuation

Mortgage Calculator

Amount Borrowed: £
Total Amount Repayable: £
Total Monthly Payment: £
©2025 The Guild of Property Professionals. All rights reserved. Terms and Conditions | Privacy Policy | Cookie Policy | Complaints Policy | Members Login
The Guild of Property Professionals Trading Address: 121 Park Lane, London W1K 7AG. GPEA Limited. Registered in England & Wales.  Company No: 02819824.  Registered Office Address: 2 St. Stephen's Court, St. Stephen's Road, Bournemouth, Dorset, England, BH2 6LA.  VAT Registration No: 576 8795 61
Book a Property Valuation Update Cookies Preferences