Woodlands Close, Hiltingbury, Chandler's Ford

Guide Price
£625,000
SSTC
This property listing is now SSTC

3 Bedroom Detached House for sale in Chandler's Ford

1 3 2

Situated in the heart of Hiltingbury, Chestnuts presents a fantastic opportunity to purchase a wonderful home with exciting potential within Thornden and Hiltingbury school catchment. Set within the leafy cul-de-sac of Woodlands Close, the home is within short walking distance to a long list of amenities along the main road & Ashdown Road, Hiltingbury Recreation ground, Hocombe Mead nature reserve and Hiltingbury Lakes. The property itself sits on a 0.20 acre plot and enjoys some fantastic features such as a picturesque frontage with parking for three to four vehicles with an additional space through the side gate, a single detached garage with a car pit, recently decorated spacious lounge & dining room and the charming rear garden measuring approximately 126'7" x 50'9". As many neighbouring properties have already discovered, there is much potential to expand these particular properties to the rear into large four- or five-bedroom houses which would make it very suitable for families looking to create their forever homes within the area. The property would also be suitable for downsizers in its current condition, offering one level living with the downstairs bedroom and ensuite if required. Those needing to commute further afield will find that Chestnuts is within a brief commute to junction 12 of the M3 but far enough away that you do not hear the commotion of it either.

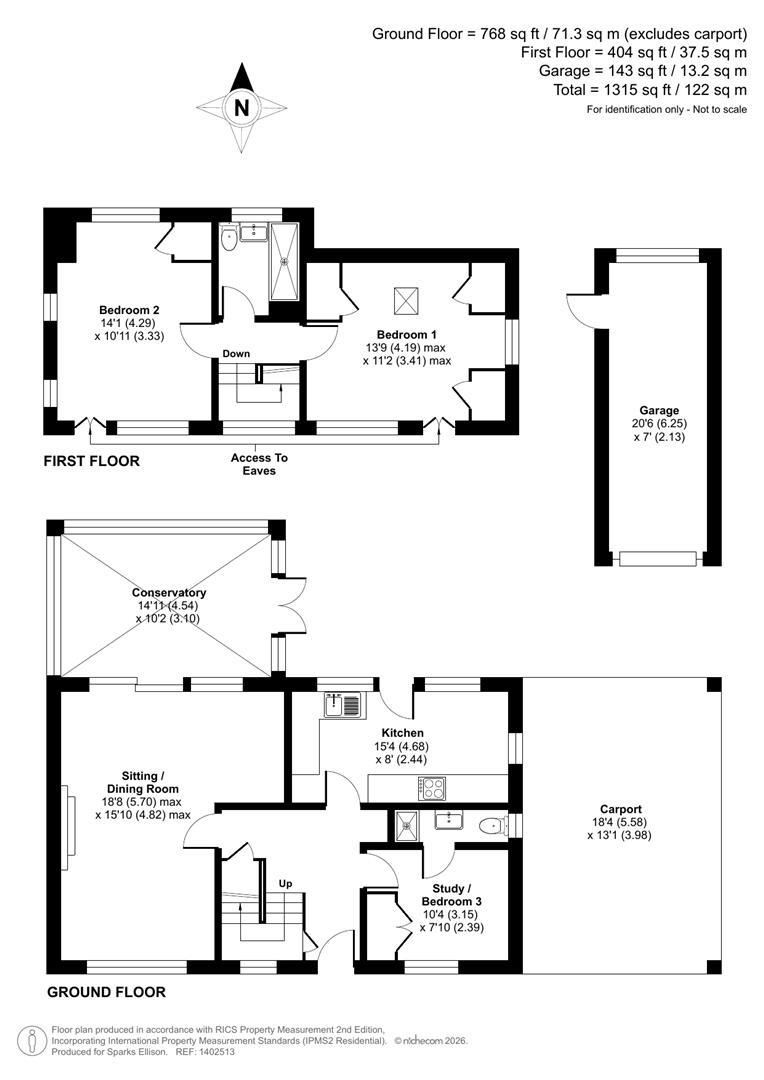
Accommodation -

Ground Floor -

Entrance Hall: - Stairs to first floor. Cloaks cupboard and additional cupboard underneath.

Bedroom 3: - 10'4" x 7'10" (3.15m x 2.39m) Built in wardrobe.

Ensuite Shower Room: - Modern suite comprising of wash basin with cupboard underneath, W.C, shower cubicle and heated towel rail.

Lounge/Dining Room: - 18'8" x 15'10" (5.70m x 4.82m) Recently decorated throughout with new flooring. Gas fire with brick built fireplace. Sliding door into conservatory. Serving hatch into kitchen.

Kitchen: - 15'4" x 8' (4.68m x 2.44m) Range of units one which is housing the boiler, integral sink, space for dishwasher, space for washing machine, space for fridge freezer, space for cooker with extractor overhead, space for a table. Serving hatch. Back door leading into rear garden.

Conservatory: - 14'11" x 10'2" (4.54m x 3.10m)

First Floor -

Bedroom 1: - 13'9" x 11'2" (4.19m x 3.41m) Airing cupboard, two built in wardrobes, access to eaves space.

Bedroom 2: - 14'1" x 10'11" (4.29m x 3.33m) Built in wardrobe, access to eaves space.

Shower Room: - Modern suite including wash basin with cupboard underneath, W.C, walk in shower and heated towel rail.

Outside -

Front: - Driveway for 3/4 cars, carport, lawned area to the front and a variety of plants and shrubs.

Rear Garden: - Measuring approximately 126'7" x 50'9". Adjoining the property is a patio area leading to the lawn with another patio area to the left of the garden. To the right hand side is a gate leading to an additional parking space Infront of the detached single garage. The garden also includes a Summer house, Greenhouse, Shed and wooded area to the north of the plot.

Other Information -

Tenure: - Freehold

Approximate Age: - 1960's

Approximate Area: - 122sqm/1315sqft (Including garage)

Sellers Position: - Looking for forward purchase

Heating: - Gas central heating

Windows: - UPVC double glazed windows

Loft Space: - Partially boarded with light connected

Infant/Junior School: - Hiltingbury Infant/Junior School

Secondary School: - Thornden Secondary School

Council Tax: - Band E

Local Council: - Eastleigh Borough Council - 02380 688000

Agents Note: - If you have an offer accepted on a property we will need to, by law, conduct Anti Money Laundering Checks. There is a charge of £60 including vat for these checks regardless of the number of buyers involved.

Agents Note: - Please be advised that this property is connected to an employee of Sparks Ellison Ltd

Property Ref: 34421965

Share:

Similar Properties

Brownhill Road, Chandler's Ford

5 Bedroom Detached House | £625,000

A substantial five bedroom detached family home conveniently situated within walking distance of the centre of Chandlers...

Leven Close, Chandler's Ford

4 Bedroom Detached House | £625,000

Located in the quiet cul-de-sac of Leven Close, Chandler's Ford, this splendid detached house presents an ideal family h...

Sandringham Close, Knightwood Park, Chandler's Ford

4 Bedroom Detached House | £625,000

Situated in a popular residential location, this impressive four bedroom detached family home enjoys an open outlook to...

Pitmore Road, Allbrook, Eastleigh

3 Bedroom Detached House | £630,000

Located on Pitmore Road in Allbrook, this stunning detached house is a true gem. Presented to an exceptionally high stan...

Oakwood Road, Chandler's Ford, Eastleigh

2 Bedroom Detached Bungalow | £635,000

Situated on the sought-after Oakwood Road, Hiltingbury, this delightful detached bungalow offers a fantastic opportunity...

Bournemouth Road, Chandler's Ford

4 Bedroom Detached House | £650,000

An older style detached character home situated towards the southern end of Chandler's Ford providing convenient access...

Sparks Ellison (Chandler's Ford)

Chandler's Ford, Hampshire, SO53 2GJ

02380 255333

How much is your home worth?

Use our short form to request a valuation of your property.

Request a Valuation

Mortgage Calculator

Amount Borrowed: £
Total Amount Repayable: £
Total Monthly Payment: £
©2026 The Guild of Property Professionals. All rights reserved. Terms and Conditions | Privacy Policy | Cookie Policy | Complaints Policy | Members Login
The Guild of Property Professionals Trading Address: 121 Park Lane, London W1K 7AG. GPEA Limited. Registered in England & Wales.  Company No: 02819824.  Registered Office Address: 2 St. Stephen's Court, St. Stephen's Road, Bournemouth, Dorset, England, BH2 6LA.  VAT Registration No: 576 8795 61
Book a Property Valuation Update Cookies Preferences