Pine Road, Chandler's Ford, Eastleigh

£625,000

4 Bedroom Detached Bungalow for sale in Chandler's Ford

1 4 2

Located on Pine Road in Hiltingbury, Chandler's Ford this delightful detached bungalow offers a perfect blend of character and modern living. Built in 1932, the property provides ample space for a comfortable lifestyle. With four well-proportioned bedrooms, one of which is on the first floor, sn en-suite and bathroom, this home is ideal for retirement, families or those seeking extra space for guests or a home office. The layout includes a generous, welcoming living room, perfect for entertaining or relaxing as well as a spacious kitchen/dining room both overlooking the rear garden. The bungalow's design allows for easy access and a single-level living experience as well as being presented to an exceptional standard. To the front is a good size driveway and to the rear a delightfully landscaped, low maintenance garden. The surrounding area is known for its friendly community and excellent local amenities, including shops, schools, to include Hiltingbury and Thornden and parks, making it a desirable location for families and professionals alike.

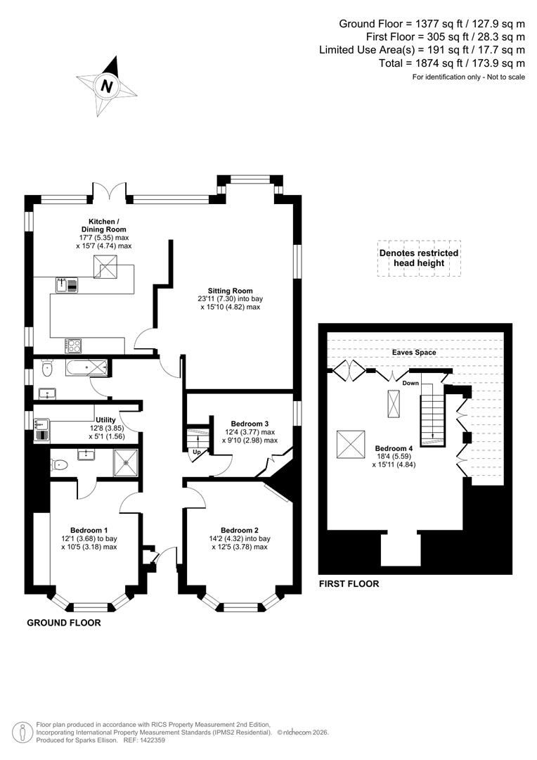
Accommodation -

Ground Floor -

Reception Hall: - Door and stairs to loft bedroom 4.

Sitting Room: - 23'11" x 15'10" (7.30m x 4.82m) Bay window with patio doors to rear garden, fireplace with inset electric fire.

Kitchen/Dining Room: - 17'7" x 15'7" (5.35m x 15'7" (5.35m x 4.74m) Fitted with a comprehensive range of units and quartz worktops, built in electric double oven, induction hob with extractor hood over, integrated dishwasher and fridge. Skylight window, space for table and chairs, double doors to rear garden.

Bedroom 1: - 12'1" x 10'5" (3.68m x 3.18m) Fitted wardrobes, bay window with window shutters.

En-Suite: - Refitted modern suite comprising shower cubicle with glazed screen, wash basin with cupboard under, WC, tiled walls and floor.

Bedroom 2/Snug: - 14'2" x 12'5" (4.32m x 3.78m) Bay window with window shutters, fireplace with electric fire.

Bedroom 3: - 12'4" x 9'10" (3.77m x 2.98m) Built in cupboard.

Bathroom: - Suite comprising bath with mixer tap, separate shower unit over and glazed screen, wash basin with cupboard under, WC, tiled walls.

Utility Room: - 12'8" x 5'1" (3.85m x 1.56m) Storage cupboards, space and plumbing for appliances, sink unit.

Bedroom 4: - 18'4" x 15'11" (5.59m x 4.84m) Built in storage cupboards.

Outside -

Front: - To the front of the property is a good sized driveway affording off street parking for several vehicles with planted borders.

Rear: - Approximately 45 ft x 40 ft. The rear garden has been delightfully landscaped with gravelled areas interspersed with well stocked borders and planting, together with patio areas enclosed by hedging, walling and fencing. Brick built shed.

Other Information -

Tenure: - Freeholld

Approximate Age: - 1930

Approximate Area: -

Sellers Position: - Looking for forward purchase

Heating: - Gas & electric heating

Windows: - UPVC Double glazing

Infant/Junior School: - Hiltingbury Infant School / Hiltingbury Junior School

Secondary School: - Thornden School

Local Council: - Eastleigh Borough Council - 02380 688000

Council Tax: - Band E

Agents Note: - If you have an offer accepted on a property we will need to, by law, conduct Anti Money Laundering Checks. There is a charge of £60 including vat for these checks regardless of the number of buyers involved.

Property Ref: 34511561

Share:

Similar Properties

Leven Close, Chandler's Ford

4 Bedroom Detached House | £625,000

Located in the quiet cul-de-sac of Leven Close, Chandler's Ford, this splendid detached house presents an ideal family h...

Woodlands Close, Hiltingbury, Chandler's Ford

3 Bedroom Detached House | Guide Price £625,000

Situated in the heart of Hiltingbury, Chestnuts presents a fantastic opportunity to purchase a wonderful home with excit...

Sandringham Close, Knightwood Park, Chandler's Ford

4 Bedroom Detached House | £625,000

Situated in a popular residential location, this impressive four bedroom detached family home enjoys an open outlook to...

Pitmore Road, Allbrook, Eastleigh

3 Bedroom Detached House | £630,000

Located on Pitmore Road in Allbrook, this stunning detached house is a true gem. Presented to an exceptionally high stan...

Oakwood Road, Chandler's Ford, Eastleigh

2 Bedroom Detached Bungalow | £635,000

Situated on the sought-after Oakwood Road, Hiltingbury, this delightful detached bungalow offers a fantastic opportunity...

Bournemouth Road, Chandler's Ford

4 Bedroom Detached House | £650,000

An older style detached character home situated towards the southern end of Chandler's Ford providing convenient access...

Sparks Ellison (Chandler's Ford)

Chandler's Ford, Hampshire, SO53 2GJ

02380 255333

How much is your home worth?

Use our short form to request a valuation of your property.

Request a Valuation

Mortgage Calculator

Amount Borrowed: £
Total Amount Repayable: £
Total Monthly Payment: £
©2026 The Guild of Property Professionals. All rights reserved. Terms and Conditions | Privacy Policy | Cookie Policy | Complaints Policy | Members Login
The Guild of Property Professionals Trading Address: 121 Park Lane, London W1K 7AG. GPEA Limited. Registered in England & Wales.  Company No: 02819824.  Registered Office Address: 2 St. Stephen's Court, St. Stephen's Road, Bournemouth, Dorset, England, BH2 6LA.  VAT Registration No: 576 8795 61
Book a Property Valuation Update Cookies Preferences